Dit huis op Funda: https://www.funda.nl/detail/koop/weesp/huis-begijnepolderweg-60/43005906/

Omschrijving
Heerlijke familiewoning gelegen in de kindvriendelijke woonwijk Aetsveld!
Op één van de beste locaties in Aetsveld gelegen, tweelaagse eengezinswoning van 104 m² voorzien van 3 slaapkamers. De ruim 7 meter diepe zonnige achtertuin op het zuidoosten is voorzien van vrijstaande stenen berging en achterom. Via het fietstunneltje bent u binnen enige minuten in het centrum of bij het NS-station.
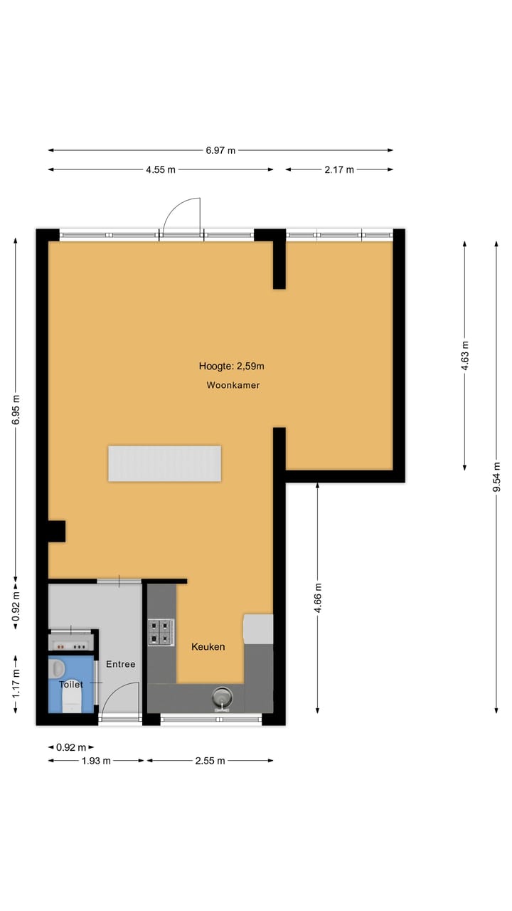
INDELING:
Begane grond: entree, hal voorzien van de meterkast en toilet met fontein, ruime living voorzien van open keuken met alle benodigde apparatuur, trap naar eerste verdieping en entree naar de zonnige tuin gesitueerd op het zonnige zuidoosten voorzien van vrijstaande stenen berging en achterom.
Eerste verdieping: overloop met ruimte voor de c.v. apparatuur, eerste slaapkamer aan de voorzijde voorzien van dakraam, badkamer voorzien van inloopdouche, wastafelmeubel en tweede toilet, tweede slaapkamer aan de achterzijde en een derde slaapkamer aan de achterzijde.
AFWERKINGSNIVEAU EN INSTALLATIES:
Deze woning bevindt zich in een goede staat van onderhoud en is uitgevoerd in een lichte en frisse kleurstelling. De meterkast is voorzien van voldoende groepen met aardlekbeveiliging en tevens bevindt zich hier de gas- en elektriciteitsmeter. De watermeter bevindt zich in het luik bij de voordeur. De combi-ketel bevindt zich op de eerste verdieping. De keuken is voorzien van alle benodigde apparatuur.
BUITENRUIMTE:
De woning is voorzien van een ruim 7 meter diepe achtertuin welke is gesitueerd op het zonnige zuidoosten en voorzien is van een vrijstaande stenen berging en achterom. Deze tuin is bereikbaar vanuit de living door middel van een loopdeur.
GEBRUIKSOPPERVLAKTEN:
- Wonen: 104,00 m²;
- Overige inpandige ruimte: niet van toepassing;
- Gebouwgebonden buitenruimte: niet van toepassing;
- Externe bergruimte: 8,00 m².
Dit object is met de grootste zorgvuldigheid ingemeten volgens de Meetinstructie Gebruiksoppervlakte Woningen (NEN 2580). Alle verstrekte gegevens zijn met zorg samengesteld en ons inziens uit betrouwbare bron afkomstig. Ten aanzien van de juistheid ervan kunnen wij echter geen aansprakelijkheid aanvaarden. Alle door ons verstrekte informatie is geheel vrijblijvend en er kunnen geen rechten aan worden ontleend.
WEESP:
Weesp, een combinatie van stadse allure en gemoedelijke gezelligheid. Goed bereikbaar met de auto, de trein en zelfs met de boot.
Deze vestingstad heeft een gezellig historisch centrum met diverse restaurants en cafés, zes jachthavens met ca. 500 ligplaatsen en een passantenhaven, authentieke winkels, een theater/bioscoop en allerlei mogelijkheden om binnen en buiten te sporten. Weesp heeft verschillende eigen evenementen, zoals Weesp Gastvrij, Weespers aan de Wand, het Sluis- en Bruggenfeest, Kitchen Roulette en het Korenfestival in de kerstperiode. U woont er perfect, langs de rivier de Vecht en omgeven door prachtige en ruime natuur. Het ligt centraal gelegen tussen ’t Gooi, Almere, Utrecht en Amsterdam. Op 10 minuten fietsafstand bent u op het treinstation van Weesp en vanaf daar staat u binnen 16 minuten op het Centraal station van Amsterdam. Deze woning bevindt zich tevens in de directe nabijheid van scholen, supermarkten, kinder(dag)opvang en uitvalswegen richting onder andere het AMC, ziekenhuis Tergooi in Hilversum en luchthaven Schiphol (20 minuten).
KORTOM:
Een fijn familiehuis in een rustige en kindvriendelijke buurt – wat wilt u nog meer? Nieuwsgierig geworden? Neem contact met ons op voor een bezichtiging en wij laten deze mooie eengezinswoning aan de Begijnepolderweg 60 graag aan u zien!
Kenmerken
Overdracht
- Laatste vraagprijs
- € 525.000 kosten koper
- Vraagprijs per m²
- € 5.048
- Status
- Verkocht
Bouw
- Soort woonhuis
- Eengezinswoning, tussenwoning
- Soort bouw
- Bestaande bouw
- Bouwjaar
- 1980
- Soort dak
- Samengesteld dak bedekt met bitumineuze dakbedekking en pannen
Oppervlakten en inhoud
- Gebruiksoppervlakten
- Wonen
- 104 m²
- Externe bergruimte
- 8 m²
- Perceel
- 111 m²
- Inhoud
- 359 m³
Indeling
- Aantal kamers
- 4 kamers (3 slaapkamers)
- Aantal badkamers
- 1 badkamer en 1 apart toilet
- Badkamervoorzieningen
- Douche, toilet, en wastafelmeubel
- Aantal woonlagen
- 2 woonlagen
- Voorzieningen
- Dakraam
Energie
- Energielabel
- Niet beschikbaar
- Verwarming
- Cv-ketel
- Warm water
- Cv-ketel
- Cv-ketel
- Gas gestookt combiketel, eigendom
Kadastrale gegevens
- WEESP B 4230
- Kadastrale kaart
- Oppervlakte
- 111 m²
- Eigendomssituatie
- Volle eigendom
Buitenruimte
- Ligging
- Aan rustige weg en in woonwijk
- Tuin
- Achtertuin
- Achtertuin
- 52 m² (7,27 meter diep en 7,19 meter breed)
- Ligging tuin
- Gelegen op het zuidoosten bereikbaar via achterom
Bergruimte
- Schuur/berging
- Vrijstaande stenen berging
Parkeergelegenheid
- Soort parkeergelegenheid
- Openbaar parkeren
Foto's 29
© 2001-2026 funda




























