Dit huis op Funda: https://www.funda.nl/detail/koop/westerbeek/huis-peelkanaalweg-1/89640588/

Peelkanaalweg 15843 AS WesterbeekOploo buitengebied
€ 600.000 k.k.
BlikvangerLandelijk wonen op royaal perceel met vrijstaand woonhuis en schuur!
Omschrijving
Gelegen in het buitengebied van Westerbeek ligt deze karakteristieke vrijstaande woning, op een royaal perceel omringd door rust, privacy en de landerijen. Deze woning heeft een panoramisch uitzicht over de tuin en omliggende velden. Met
een sfeervolle woonkamer, een woonkeuken en met twee slaapkamers op de begane grond is dit huis niet alleen comfortabel, maar ook levensloopbestendig. Op de eerste verdieping zijn twee slaapkamers aanwezig en een bergzolder. Het geheel is netjes onderhouden en biedt volop mogelijkheden om het geheel naar eigen wens te moderniseren. Een buitenkans voor wie vrij wil wonen in het buitengebied.
INDELING
Begane grond:
Via de entree aan de zijgevel, voorzien van een toiletruitme, betreedt u de ruime hal met toegang tot vrijwel alle vertrekken op de begane grond. De royale woonkamer ligt aan de tuinzijde en biedt dankzij de grote raampartijen een schitterend uitzicht op de groene omgeving. De L-vormige woonkamer is voorzien van een schuifpui naar de overkapping achter de woning en is tevens voorzien van een gashaard. De keuken is praktisch ingedeeld en voorzien van veel opbergruimte, een gaskookplaat, oven, dubbele spoelbak en een separate eethoek. De grote ramen zorgen ook hier voor een fijne connectie met de buitenomgeving. Vanuit de keuken heeft u toegang tot de bijkeuken.
De begane grond beschikt over maar liefst twee slaapkamers, waarvan één zeer ruime hoofdslaapkamer aan de achterzijde van de woning. De tweede slaapkamer biedt mogelijkheden als logeerkamer, werkkamer of hobbyruimte. De badkamer is gelegen tegenover de masterslaapkamer en voorzien van ligbad, wastafel en douche.
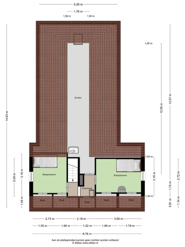
Eerste verdieping:
Via de trap in de hal bereik je de eerste verdieping. De overloop geeft toegang tot twee slaapkamers en de zolderruimte. Aan weerszijden van de overloop bevinden zich twee ruime slaapkamers, elk met een eigen charmante uitstraling dankzij de schuine daklijnen en ingebouwde kastruimtes. De kamers hebben grote ramen waardoor ook hier een fijne lichtinval aanwezig is. De zolder biedt veel bergruimte en mogelijkheden voor extra functies zoals een hobbykamer, speelruimte of zelfs uitbreiding van het woonoppervlak.
PERCEEL
De toegang tot het perceel verloopt via een prachtige, met bomen omzoomde oprijlaan. Achter de woning strekt zich een groot, groen gazon uit dat perfect is onderhouden. De ligging tussen open veld en bosrand creëert een harmonieuze balans tussen vrijheid en beschutting. Volgroeide bomen zorgen voor natuurlijke schaduw en geven het perceel een volwassen, parkachtige uitstraling. Centraal op het achterste deel van het perceel ligt een fraaie, natuurlijke vijver. Doordat het perceel rondom door groen en landschap wordt omgeven, geniet u hier volledige privacy zonder gevoel van isolatie. De open velden aan de achterzijde zorgen voor adembenemende vergezichten. Achter de woning is een terras gerealiseerd met een overkapping.
SCHUUR
Achterop het perceel staat een karakteristieke vrijstaande houten schuur, ideaal voor opslag, het houden van hobbydieren of het inrichten van een werkplaats of atelier. Deze schuur biedt dubbele openslaande deuren. De schuur biedt verrassend veel ruimte en is ingedeeld in meerdere praktische ruimtes. Dankzij de deels open zijde is de schuur ideaal voor opslag van brandhout of het droog stallen van materialen.
WESTERBEEK & OMGEVING
Westerbeek is landelijk gelegen en vormt daardoor een idyllische plek voor iedereen die rust en ontspanning zoekt. De nabijgelegen bossen rondom Oploo, Overloon en De Rips geven extra mogelijkheden voor natuurbeleving, met uitgestrekte wandelpaden, ruiterroutes en rustige fietspaden midden in het groen. Dankzij de landelijke ligging is het in Westerbeek heerlijk rustig wonen. Tegelijkertijd zorgen de goede verbindingswegen naar Oploo, De Rips en Overloon ervoor dat deze plaatsen binnen enkele autominuten bereikbaar zijn. Eindhoven ligt op ongeveer 40–45 minuten rijden.
ALGEMEEN
- De keuken beschikt over de volgende inbouwapparatuur: gasfornuis, afzuigkap, oven, magnetron en koelkast.
- De cv-ketel (1995) is van Nefit.
- Energielabel E.
- Aanvaarding in overleg.
Kenmerken
Overdracht
- Aangeboden sinds
- Aanvaarding
- In overleg
- Vraagprijs
- € 600.000 kosten koper
- Vraagprijs per m²
- € 4.255
- Status
- Beschikbaar
Bouw
- Soort woonhuis
- Woonboerderij, vrijstaande woning
- Soort bouw
- Bestaande bouw
- Bouwjaar
- 1971
- Soort dak
- Zadeldak bedekt met pannen
Oppervlakten en inhoud
- Gebruiksoppervlakten
- Wonen
- 141 m²
- Overige inpandige ruimte
- 27 m²
- Gebouwgebonden buitenruimte
- 15 m²
- Externe bergruimte
- 32 m²
- Perceel
- 4.460 m²
- Inhoud
- 623 m³
Indeling
- Aantal kamers
- 5 kamers (4 slaapkamers)
- Aantal badkamers
- 1 apart toilet
- Aantal woonlagen
- 2 woonlagen en een kelder
- Voorzieningen
- Natuurlijke ventilatie en schuifpui
Energie
- Energielabel
- E
- Isolatie
- Gedeeltelijk dubbel glas
- Verwarming
- Cv-ketel
- Warm water
- Cv-ketel
- Cv-ketel
- Nefit (gas gestookt combiketel uit 1995, eigendom)
Kadastrale gegevens
- OPLOO C 5380
- Kadastrale kaart
- Oppervlakte
- 4.460 m²
- Eigendomssituatie
- Volle eigendom
Buitenruimte
- Ligging
- Buiten bebouwde kom, landelijk gelegen, open ligging en vrij uitzicht
- Tuin
- Tuin rondom
Garage
- Soort garage
- Vrijstaande houten garage
- Capaciteit
- 1 auto
Parkeergelegenheid
- Soort parkeergelegenheid
- Op eigen terrein
Foto's 76
Plattegronden 4
© 2001-2025 funda















































































