
Hofstraat Kavel A3273 AH WestmaasWestmaas Woonkern
€ 657.900 v.o.n.
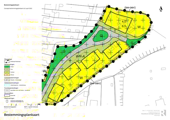
Omschrijving
Een unieke kans: op een schitterende landtong aan de Binnenmaas kun je jouw eigen droomvilla realiseren. Aan de Hofstraat in Westmaas ontstaat een kleinschalig en intiem villawijkje met slechts vijf vrijstaande villa’s. Er is nog maar één bouwkavel beschikbaar: Kavel A.
Wat een geweldige mogelijkheid om je eigen droomhuis te bouwen op een landtong aan de Binnenmaas!
Aan de Hofstraat in Westmaas zullen straks 5 vrijstaande villa’s zijn gerealiseerd in een intiem villawijkje. Stel je voor: een royale vrijstaande villa, volledig ontworpen naar jouw smaak en wensen. Een grote tuin waar je kunt genieten van lange zomeravonden, een sfeervolle woonkeuken voor gezellige diners, parkeren op eigen erf én met je sloep direct het water van de Binnenmaas op. Dit is wonen met vrijheid, luxe en natuur binnen handbereik.
Het allermooiste huis bouw je immers zelf!
De voordelen op een rij:
- Bouwkavel met een intieme waterrijke ligging
- Kavels van 773 m² eigen grond
- Voor het bouwen van een vrijstaande woning gelden er regels ten aanzien van de bouw- en goothoogte van het hoofdgebouw en het grondoppervlak van een hoofdgebouw etc.
JOUW WONING, JOUW WENSEN
Een prachtige kans om jouw woning volledig naar eigen smaak te bouwen. De artist impressions en de bijbehorende plattegronden zijn slechts ter indicatie en illustratie, passend bij hetgeen het bestemmingsplan toestaat.
Kenmerken
Overdracht
- Aangeboden sinds
- Aanvaarding
- In overleg
- Vraagprijs
- € 657.900 vrij op naam
- Status
- Beschikbaar
Bouw
- Soort object
- Bouwgrond
- Bouwrijp
- Nee
Indeling
- Perceel
- 773 m²
Buitenruimte
- Ligging
- Aan water, open ligging en vrij uitzicht
Foto's 33
© 2001-2026 funda
































