Dit huis op Funda: https://www.funda.nl/detail/koop/westzaan/huis-jj-allanstraat-253/43802276/

Omschrijving
Wat een ge-wel-di-ge locatie! Wie droomt er niet van, een huis met vrij uitzicht… Deze twee-onder-een kapwoning aan de J.J. Allanstraat heeft aan de voor- én achterzijde vrij uitzicht over een oer-Hollands polderlandschap met slootjes, waar je overigens ook kun varen en roeien. De woning, gebouwd aan het einde van de jaren 30, heeft een lichte woonkamer met erker, een keuken met bijkeuken, drie ruime slaapkamers en een badkamer op de eerste verdieping. Paneeldeuren zijn behouden, net als meerdere glas in loodramen voor een vleugje karakter.
Dit huis staat op een droomplek in Westzaan, aan de lange J.J. Allanstraat die zijn weg vindt door het polderlandschap. De oorspronkelijke naam van de buurtschap is de Krabbelbuurt en de huidige naam van de straat is afkomstig van de man die in 1915 een autobusdienst begon van Westzaan naar Koog aan de Zaan. Maar genoeg over de historie, want over de ligging is nog meer te vertellen. Met de fiets, bus en auto zijn Westzaan en Zaandam goed bereikbaar. Via de Westerpolder is het maar 10 kilometer naar de A9 en de Ring A10 Amsterdam is maar 11 kilometer rijden. Wat verder goed is om te weten dat een supermarkt, het dorpshuis en de basisschool ongeveer 5 minuten fietsen zijn.
Indeling:
Begane grond:
Wat in de hal direct opvalt zijn de ruimte, de trapopgang en de glas in loodramen. Twee van deze ramen zijn gezet in een paneeldeur, wat ook al zo’n stijlkenmerk uit de jaren 30 is. Op de plek waar vroeger het toilet was, is nu een ruime (garderobe)kast.
De woonkamer is, inclusief erker, meer dan 8.10 meter lang. De schouw met open haard en tableau is behouden en aan de voor- en achterzijde heb je prachtig uitzicht naar het uitgestrekte polderlandschap. Of je nu op de bank of aan de eettafel zit, het uitzicht is om in te lijsten!
Een brede doorgang verbindt de woonkamer met de halfopen keuken, die ook vanuit de hal te bereiken is. De meer dan 3 meter lange wandopstelling, uitgevoerd in een lichte kleur, is voorzien van diverse inbouwapparatuur: een gaskookplaat, afzuigkap, oven, koelkast en een recent vernieuwde vaatwasser.
In de aanbouw zijn de bijkeuken/wasruimte, de ruime toiletruimte met fonteintje en een berging. De berging is vanuit de tuin bereikbaar en een prima plek voor de (kinder)fietsen. Of transformeer je deze ruimte in een werkkamer, atelier of speelkamer van de kinderen?
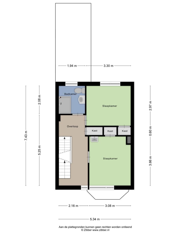
Eerste verdieping:
De overloop is heerlijk ruim en licht, dankzij het raam in de voorgevel. Er is een vaste trap naar de tweede verdieping gerealiseerd en verder zie je, net als beneden, mooie paneeldeuren.
Aan de voorzijde is de hoofdslaapkamer met een inbouwkast en wastafel. Ook de slaapkamer aan de achterzijde heeft een inbouwkast en op de overloop is kast nummer drie klaar om te
vullen met jouw spullen. Welke slaapkamer je ook kiest, het uitzicht over het polderlandschap is fantastisch!
De badkamer is in 2018 gerenoveerd, waarbij het bad is vervangen door een ruime inloopdouche met sunshower. Verder is de badkamer ingedeeld met een toilet en een wastafelmeubel, beiden uitgevoerd in een lichte kleurstelling.
Tweede verdieping:
Wat je aan de voorzijde niet ziet, is dat er aan de achterzijde een grote dakkapel is geplaatst. Het resultaat is dat er op deze verdieping een heerlijk ruime slaapkamer is, nummer drie in huis. In de L-vormige berging kun je veel spullen opbergen en het is de plek van de HR-ketel, die in 2023 is geplaatst.
Tuin:
Aan de voor- en achterzijde is de tuin, waarbij de achtertuin op het zonnige westen gesitueerd is. Erg handig is de achterom, waardoor de fiets in de berging kan staan. Het achterste deel van de tuin grenst aan een sloot, waardoor het mogelijk is om met een klein roeibootje of een kano de prachtige omgeving te verkennen.
Bijzonderheden:
- Volle eigendom
- Fundering wordt gemonitord sinds 2017 (zakkingssnelheid gekwalificeerd als klein)
- Spouwmuurisolatie, uitgevoerd in de jaren 80, en dakisolatie (datering onbekend)
- Kunststof kozijnen met HR++ glas
- Verwarming en warm water via een HR-ketel (Nefit, 2023)
- Vaste trap naar de tweede verdieping
- Drie ruime slaapkamers
- Zonnige tuin (west) met eigen achterom
- Prachtig uitzicht aan de voor- en achterzijde
- Energielabel C
Kenmerken
Overdracht
- Laatste vraagprijs
- € 495.000 kosten koper
- Vraagprijs per m²
- € 4.500
- Status
- Verkocht
Bouw
- Soort woonhuis
- Eengezinswoning, 2-onder-1-kapwoning
- Soort bouw
- Bestaande bouw
- Bouwjaar
- 1939
- Soort dak
- Dwarskap
Oppervlakten en inhoud
- Gebruiksoppervlakten
- Wonen
- 110 m²
- Overige inpandige ruimte
- 5 m²
- Gebouwgebonden buitenruimte
- 2 m²
- Perceel
- 164 m²
- Inhoud
- 407 m³
Indeling
- Aantal kamers
- 4 kamers (3 slaapkamers)
- Aantal badkamers
- 1 badkamer en 1 apart toilet
- Badkamervoorzieningen
- Douche, toilet, wastafel, en wastafelmeubel
- Aantal woonlagen
- 2 woonlagen en een zolder
- Voorzieningen
- Natuurlijke ventilatie en TV kabel
Energie
- Energielabel
- C
- Isolatie
- Gedeeltelijk dubbel glas
- Verwarming
- Cv-ketel
- Warm water
- Cv-ketel
- Cv-ketel
- Intergas (gas gestookt combiketel uit 2023, eigendom)
Kadastrale gegevens
- WESTZAAN C 1521
- Kadastrale kaart
- Oppervlakte
- 164 m²
- Eigendomssituatie
- Volle eigendom
Buitenruimte
- Ligging
- Aan water, in woonwijk, landelijk gelegen, open ligging en vrij uitzicht
- Tuin
- Achtertuin en voortuin
- Achtertuin
- 80 m² (8,00 meter diep en 10,00 meter breed)
- Ligging tuin
- Gelegen op het westen bereikbaar via achterom
Bergruimte
- Schuur/berging
- Aangebouwde stenen berging
Parkeergelegenheid
- Soort parkeergelegenheid
- Openbaar parkeren
Foto's 51
© 2001-2025 funda


















































