Dit huis op Funda: https://www.funda.nl/detail/koop/wezep/huis-ericastraat-8/43992447/

Omschrijving
Ericastraat 8, Wezep
Instapklare jaren '50 tussenwoning met stijlvolle afwerking, diepe tuin, veranda én bijkeuken
Ben je op zoek naar een instapklare woning die sfeer, comfort en functionaliteit moeiteloos combineert? Dan is deze volledig gemoderniseerde tussenwoning uit 1956 aan de Ericastraat 8 precies wat je zoekt. Met een woonoppervlakte van 89 m², drie slaapkamers, een moderne badkamer én een zolder biedt deze woning verrassend veel ruimte. De afwerking is strak en smaakvol: een stoere keuken met zwarte fronten en hoogwaardige inbouwapparatuur, een stijlvolle eetkamer met uitzicht op de tuin en een aparte bijkeuken maken het geheel helemaal af. Buiten geniet je van een onderhoudsvriendelijke tuin met kunstgras en een overkapping waar je het hele jaar door kunt loungen of borrelen. Deze woning ligt bovendien in een rustige en kindvriendelijke straat, maar wel met alle voorzieningen binnen handbereik. Kortom: dozen uitpakken en wonen maar!
De buurt
De Ericastraat ligt in een rustige woonwijk in het gezellige dorp Wezep, ideaal voor gezinnen of starters. Op loopafstand vind je supermarkten, basisscholen, sportfaciliteiten en een winkelcentrum. Ook de bereikbaarheid is uitstekend: je rijdt binnen enkele minuten de A28 of A50 op richting Zwolle, Apeldoorn of Amersfoort. Voor natuurliefhebbers ligt het Wezepsche Bos op fietsafstand, net als landgoed IJsselvliedt en het Heerderstrand. Hier woon je rustig, groen én centraal.
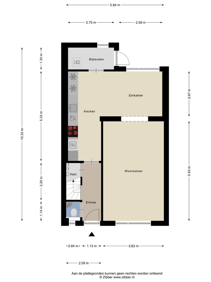
Begane grond
Je komt binnen in een strak afgewerkte hal met trapopgang, trapkast en modern toilet. Vanuit de hal loop je de ruime woonkamer binnen waar grote raampartijen zorgen voor veel lichtinval. Er is een open indeling gecreëerd, met een sfeervolle zithoek aan de voorzijde en een ruime eethoek aan de achterzijde. De donker uitgevoerde keuken in rechte opstelling is een echte eyecatcher, en voorzien van hoogwaardige inbouwapparatuur zoals een combi-oven, inductiekookplaat, afzuiging, koelkast, vriezer en een vaatwasser. Achter de keuken ligt de bijkeuken met aansluiting voor wasmachine en droger, en toegang tot de achtertuin.
Eerste verdieping
Op de eerste verdieping bevinden zich drie slaapkamers, waarvan twee royaal en één ideaal als werkkamer of kinderkamer. Alle kamers zijn voorzien van een nette laminaatvloer en strak afgewerkte wanden. De badkamer is fris en compleet met een ligbad/douchecombinatie, wastafelmeubel met waskom, verlichte spiegel en mechanische ventilatie. Ook hier zorgt het raam voor natuurlijk licht en extra comfort.
Tweede verdieping
De zolderverdieping is bereikbaar via een vlizotrap en biedt volop praktische bergruimte. Denk aan seizoensspullen, koffers of sportuitrusting.
Buitenruimte
De achtertuin is keurig aangelegd met moderne tegels, een strook kunstgras en een ruime houten overkapping waar je met gemak een lounge- of eethoek kwijt kunt. Dankzij de schuttingen rondom zit je hier lekker privé. Daarnaast staat er een ruime stenen berging, met bergzolder, in de tuin; perfect voor je fietsen, gereedschap of tuinspullen. De tuin is ook via een achterom goed bereikbaar.
Bijzonderheden
-Volledig gemoderniseerde jaren '50 gezinswoning
-Instapklaar en modern afgewerkt
-Heerlijk lichte woonkamer
-Luxe keuken met hoogwaardige inbouwapparatuur
-Bijkeuken met witgoedaansluitingen
-Drie slaapkamers en een nette badkamer
-Ruime bergzolder
-Diepe tuin met veranda en achterom
-Stenen berging met elektra en bergzolder
-Gunstige ligging nabij uitvalswegen en natuur
-Het Energielabel is aangevraagd en volgt z.s.m.
Afsluiting
Deze woning combineert het karakter van de jaren '50 met het comfort van nu. Ideaal voor wie zonder klussen wil verhuizen. Zin in een stijlvolle, instapklare woning op een rustige plek met alle voorzieningen dichtbij? Plan dan snel een bezichtiging in en kom zelf ervaren hoe fijn het hier wonen is.
Misschien loop jij straks wel elke dag dat gezellige halletje binnen en noem je dit jouw thuis.
Kenmerken
Overdracht
- Laatste vraagprijs
- € 339.000 kosten koper
- Vraagprijs per m²
- € 3.809
- Status
- Verkocht
Bouw
- Soort woonhuis
- Eengezinswoning, tussenwoning
- Soort bouw
- Bestaande bouw
- Bouwjaar
- 1956
- Soort dak
- Zadeldak bedekt met pannen
Oppervlakten en inhoud
- Gebruiksoppervlakten
- Wonen
- 89 m²
- Overige inpandige ruimte
- 3 m²
- Externe bergruimte
- 8 m²
- Perceel
- 162 m²
- Inhoud
- 327 m³
Indeling
- Aantal kamers
- 4 kamers (3 slaapkamers)
- Aantal badkamers
- 1 badkamer en 1 apart toilet
- Badkamervoorzieningen
- Douche, ligbad, en toilet
- Aantal woonlagen
- 2 woonlagen, een zolder, en een kelder
- Voorzieningen
- Mechanische ventilatie en natuurlijke ventilatie
Energie
- Energielabel
- C
- Isolatie
- Dakisolatie, dubbel glas en muurisolatie
- Verwarming
- Cv-ketel
- Warm water
- Cv-ketel
- Cv-ketel
- Remeha (gas gestookt combiketel uit 2021, eigendom)
Kadastrale gegevens
- OLDEBROEK F 4046
- Kadastrale kaart
- Oppervlakte
- 162 m²
- Eigendomssituatie
- Volle eigendom
Buitenruimte
- Ligging
- Aan rustige weg en in woonwijk
- Tuin
- Achtertuin en voortuin
- Achtertuin
- 58 m² (10,00 meter diep en 5,84 meter breed)
- Ligging tuin
- Gelegen op het zuidoosten bereikbaar via achterom
Bergruimte
- Schuur/berging
- Aangebouwde stenen berging
Parkeergelegenheid
- Soort parkeergelegenheid
- Openbaar parkeren
Foto's 43
© 2001-2025 funda










































