
Omschrijving
Op zoek naar een ruime eengezinswoning met garage, carport en fraai groen uitzicht op park Dorestadplantsoen?
Maak dan snel een afspraak voor een bezichtiging!
Deze woning met 5 (!!!) slaapkamers biedt veel leefruimte en lichtinval door de brede raampartijen, een zonnige tuin en een garage met carport. Een onderhoudsvriendelijk huis, door de kunststof kozijnen met HR++ beglazing aan voor- en achtergevel.
Zowel badkamer als toilet zijn in 2012 vernieuwd.
LICHT, VRIJ, GROEN UITZICHT en aantrekkelijk gelegen woning aan het park Dorestad in De Heul en op korte afstand van het gezellige centrum, scholen, kinderopvang, openbaar vervoer, uitvalswegen en andere voorzieningen.
Het winkelcentrum De Heul word momenteel volledig vernieuwd, deze is op 2 minuten loopafstand.
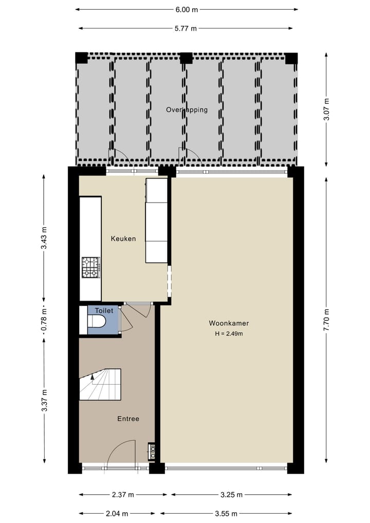
Woonoppervlakte: 116 m²;
Garage: 18 m² + carport 18 m²;
Perceelgrootte: 204 m².
Inhoud: 383 m³;
Bouwjaar woning: 1971;
Energielabel: C. (na uitvoeren energielabel zijn er omstreeks 2023 HR++ parels in de kruipruimte gelegd en is er een combiketel opgehangen)
Indeling
Begane grond:
Ruime voortuin, hal, gang, meterkast, zwevend toilet, woonkamer met tegelvloer en veel lichtinval, dichte keuken, in nette staat en neutrale kleurstelling. Hier is ook de aansluiting voor de wasmachine aanwezig. De keuken is zowel via de gang als de woonkamer te bereiken en in de keuken is loopdeur naar de heerlijke achtertuin, gelegen op het noordoosten, met overkapping, vrijstaande stenen garage, carport en achterom.
1e Verdieping:
Overloop, 3 slaapkamers, allen voorzien van vloerbedekking, betegelde badkamer (2012) ingericht met douche, toilet en wastafel.
2e Verdieping:
Via een vaste trap is de 2e verdieping bereikbaar, ruime voorzolder. 2 lichte zolderkamers vergroot middels een dakkapel.
Bijzonderheden:
- Groen en vrij uitzicht aan de voorzijde van het huis, maar door de beplanting in de voortuin, is er ook veel privacy;
- Badkamer en toilet van 2012;
- Vaatwasser 2 jaar oud, afzuigkap 1 jaar, oven 9 jaar en koelkast 9 jaar oud;
- Kunststof kozijnwerk met HR++ beglazing geplaatst;
- Airco aanwezig;
- Combiketel Intergas HRE 2024;
- Terrasoverkapping 2013;
- De dakkapel is gedeeltelijk gebouwd op het dakvlak van nummer 12;
- 8 zonnepanelen, bouwjaar 2019;
- Energielabel = C.
Kenmerken
Overdracht
- Laatste vraagprijs
- € 440.000 kosten koper
- Vraagprijs per m²
- € 3.793
- Status
- Verkocht
Bouw
- Soort woonhuis
- Eengezinswoning, tussenwoning
- Soort bouw
- Bestaande bouw
- Bouwjaar
- 1971
- Soort dak
- Zadeldak bedekt met pannen
Oppervlakten en inhoud
- Gebruiksoppervlakten
- Wonen
- 116 m²
- Gebouwgebonden buitenruimte
- 18 m²
- Externe bergruimte
- 18 m²
- Perceel
- 204 m²
- Inhoud
- 383 m³
Indeling
- Aantal kamers
- 7 kamers (5 slaapkamers)
- Aantal badkamers
- 1 badkamer en 1 apart toilet
- Badkamervoorzieningen
- Douche, toilet, en wastafel
- Aantal woonlagen
- 3 woonlagen
- Voorzieningen
- Airconditioning, glasvezelkabel, mechanische ventilatie, natuurlijke ventilatie, rolluiken, rookkanaal, TV kabel, en zonnepanelen
Energie
- Energielabel
- Isolatie
- Dakisolatie, grotendeels dubbelglas, muurisolatie en vloerisolatie
- Verwarming
- Cv-ketel
- Warm water
- Cv-ketel
- Cv-ketel
- Intergas HRE (gas gestookt combiketel uit 2024, eigendom)
Kadastrale gegevens
- WIJK BIJ DUURSTEDE D 1242
- Kadastrale kaart
- Oppervlakte
- 204 m²
- Eigendomssituatie
- Volle eigendom
Buitenruimte
- Ligging
- Aan park, aan rustige weg, in bosrijke omgeving, in woonwijk en vrij uitzicht
- Tuin
- Achtertuin en voortuin
- Achtertuin
- 99 m² (15,67 meter diep en 6,34 meter breed)
- Ligging tuin
- Gelegen op het noordoosten bereikbaar via achterom
Garage
- Soort garage
- Vrijstaande stenen garage
- Capaciteit
- 1 auto
- Voorzieningen
- Elektra
Parkeergelegenheid
- Soort parkeergelegenheid
- Op eigen terrein en openbaar parkeren
Bedrijfsruimte
- Praktijkruimte
- Niet aanwezig, wel mogelijk (vrijstaand)
Foto's 36
© 2001-2026 funda



































