
Omschrijving
Welkom bij deze hoekwoning met twee slaapkamers en een ruime zij- en achtertuin van circa 140m². De woning biedt volop mogelijkheden om geheel naar eigen inzicht te worden gerenoveerd en ingericht. Dankzij de ligging is dit een kans om een comfortabel thuis te creëren in een rustige omgeving dichtbij het centrum.
Heeft u interesse? Neem gerust contact op voor een bezichtiging.
INDELING
De entree biedt voldoende ruimte voor een garderobe en geeft toegang tot de woonkamer, het toilet en de trap naar de eerste verdieping.
De woonkamer is breed en licht door de grote ramen en de schuifpui naar de tuin. Hoewel de huidige houten vloer en houtkachel sfeer brengen, dient rekening gehouden te worden met modernisering. De tuin biedt met een ligging op het zuidwesten en noordwesten voldoende zon gedurende de dag.
De halfopen keuken is eenvoudig en voorzien van basisapparatuur, waaronder een 4-pits gasfornuis met afzuigkap en een koelkast. Het aanwezige barretje biedt een plek om snel iets te nuttigen. De bijkeuken is praktisch en biedt ruimte voor een wasmachine en extra opslag.
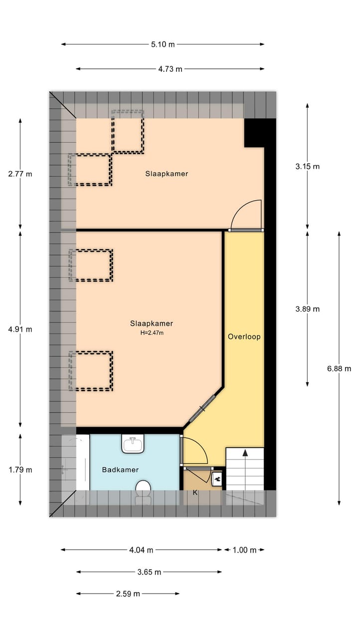
Op de eerste verdieping bevinden zich twee ruime slaapkamers en een badkamer. De badkamer beschikt over een ligbad, toilet en wastafelmeubel, maar kan mogelijk een opfrisbeurt gebruiken. De hoofdslaapkamer biedt voldoende ruimte voor een tweepersoonsbed en kasten, terwijl de tweede slaapkamer geschikt is als werk- of logeerkamer.
BIJZONDERHEDEN
- Verwarming en warm water via een Intergas HRE CV-ketel (eigendom, 2022)
- Oplevering in overleg
- Niet-zelfbewoningsclausule van toepassing
LOCATIE
Wijk bij Duurstede is een charmante plaats met een rijke geschiedenis, gelegen aan de Nederrijn. De vestingstad biedt het diverse voorzieningen voor circa 24.000 inwoners. De stad heeft een breed scala aan evenementen en activiteiten, van markten en festivals tot culturele voorstellingen en muziekoptredens. De combinatie van natuur, historie en moderne voorzieningen maakt het een ideale plek voor zowel gezinnen als jonge professionals en senioren. De stad heeft een gevarieerd woningaanbod, van charmante woningen in het historische centrum tot moderne nieuwbouwwijken aan de rand van de stad.
De goede bereikbaarheid van Wijk bij Duurstede, met uitstekende verbindingen naar de A12 maakt het ook een ideale uitvalsbasis voor wie werkzaam is in Utrecht, Amsterdam of andere steden in de regio. Ook met het openbaar vervoer is de woning goed te bereiken. Op loopafstand van de woningen liggen verschillende bushaltes.
Eveneens op loopstand ligt het winkelcentrum. Je vindt hier alles wat je dagelijks nodig hebt, van gezellige boetieks tot supermarkten en lokale markten. Ook kun je hier genieten van diverse horecagelegenheden, van gezellige cafés tot restaurants met lokale specialiteiten.
Kenmerken
Overdracht
- Laatste vraagprijs
- € 350.000 kosten koper
- Vraagprijs per m²
- € 3.684
- Status
- Verkocht
Bouw
- Soort woonhuis
- Eengezinswoning, tussenwoning
- Soort bouw
- Bestaande bouw
- Bouwjaar
- 1989
- Soort dak
- Samengesteld dak bedekt met bitumineuze dakbedekking en overig
Oppervlakten en inhoud
- Gebruiksoppervlakten
- Wonen
- 95 m²
- Perceel
- 223 m²
- Inhoud
- 335 m³
Indeling
- Aantal kamers
- 3 kamers (2 slaapkamers)
- Aantal badkamers
- 1 badkamer en 1 apart toilet
- Badkamervoorzieningen
- Ligbad, toilet, en wastafelmeubel
- Aantal woonlagen
- 2 woonlagen
- Voorzieningen
- Schuifpui
Energie
- Energielabel
- C
- Isolatie
- Volledig geïsoleerd
- Verwarming
- Cv-ketel
- Warm water
- Cv-ketel
- Cv-ketel
- Intergas HRE (gas gestookt combiketel uit 2022, eigendom)
Kadastrale gegevens
- WIJK BIJ DUURSTEDE E 2269
- Kadastrale kaart
- Oppervlakte
- 223 m²
- Eigendomssituatie
- Volle eigendom
Buitenruimte
- Ligging
- Aan rustige weg en in woonwijk
- Tuin
- Achtertuin en zijtuin
- Achtertuin
- 140 m² (19,20 meter diep en 11,22 meter breed)
- Ligging tuin
- Gelegen op het noordwesten bereikbaar via achterom
Parkeergelegenheid
- Soort parkeergelegenheid
- Openbaar parkeren
Foto's 43
© 2001-2025 funda










































