Dit huis op Funda: https://www.funda.nl/detail/koop/wijk-bij-duurstede/huis-singel-35/43822904/

Omschrijving
Charmante, gemoderniseerde woning, gelegen aan de geliefde Singel, met zicht op de historische binnenstad van Wijk bij Duurstede, nu te koop!
Deze markante tussenwoning, gebouwd rond 1870, heeft een prachtige uitstraling en is gelegen aan de Singel met zicht op de binnenstad van Wijk bij Duurstede.
Een woning welke door de huidige eigenaresse liefdevol onder handen is genomen. Een sfeervolle woonkamer met grote raampartij en uitzicht op de grote kerk, luxe leefkeuken, praktische kelder, 2 grote kamers op de verdieping en een heerlijk zonnige tuin! In de tuin is een overkapping en berging aanwezig.
Alle lusten van het centrum tezamen met het kasteelpark zijn op steenworp afstand te vinden.
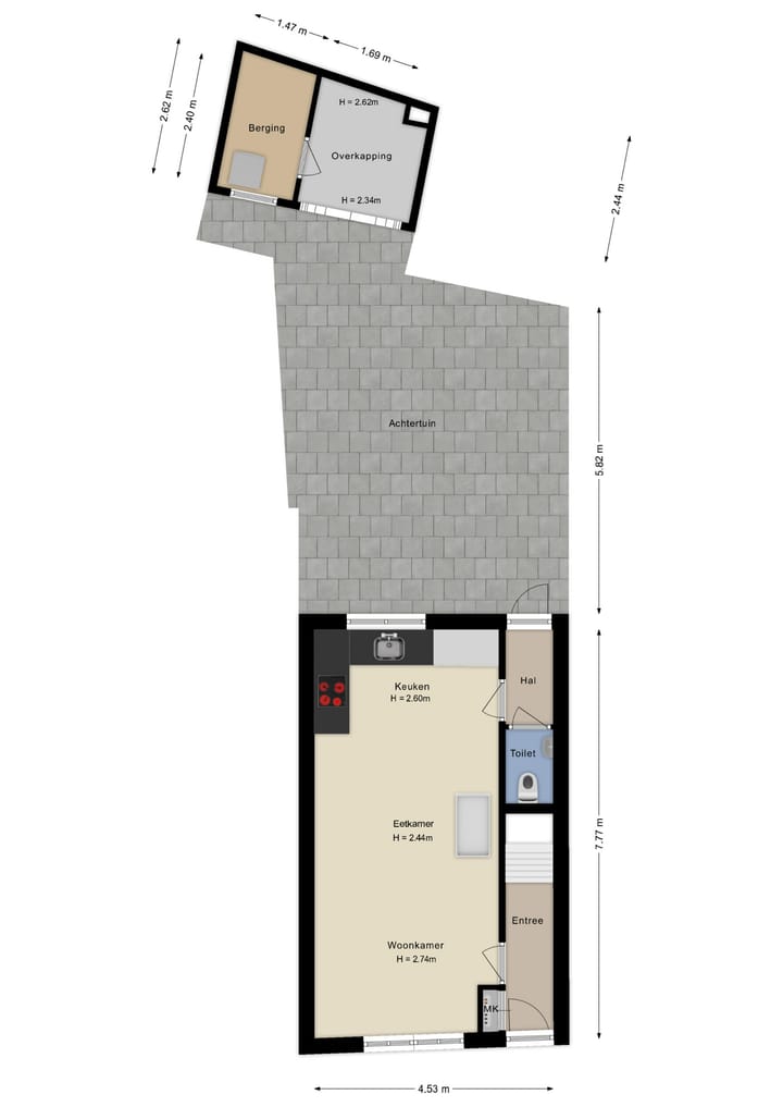
Woonoppervlakte: 61 m² + kelder: 11 m²
Externe bergruimte: 4 m²
Inhoud: 245 m³
Perceeloppervlakte: 69 m² eigen grond
Bouwjaar: omstreeks 1870
Energielabel: D.
Indeling
Begane grond:
Hal, met uitgebreide meterkast, lichte en charmante woonkamer met uitzicht op de Singel, in open verbinding de gezellige woonkeuken. Luxe L-vormige keukenopstelling (vernieuwd in 2021) ingericht met inductie kookplaat met afzuiging (Bora), combi-oven, vaatwasser, koelkast, vriezer en quooker. Toegang tot de kelder. Via de woonkamer is een 2e hal bereikbaar met toegang tot de vergrote toiletruimte en tuindeur. De tuin is niet groot maar wel gezellig van aard. Gelegen op de middag/avondzon. Er is een overkapping met open haard gerealiseerd waar u heerlijk kunt genieten. De berging is voorzien van water en elektra. Hier zijn de aansluitingen voor het witgoed gerealiseerd.
1e Verdieping:
Overloop waar de cv ketel en airco zijn opgehangen. 2 grote slaapkamers, waarvan de masterbedroom aan de Singelzijde gelegen is. Beide kamers hebben inbouwkasten. De badkamer is voorzien van ligbad, wastafel en toilet.
Kelder:
De kelder is bereikbaar middels een vaste trap (circa 1.9 mtr. hoog). Er is veel bergruimte aanwezig en hier zijn de aansluitingen voor het witgoed gerealiseerd.
Bijzonderheden:
- Boven dubbelglas, beneden HR++ glas aanwezig;
- Aan de rand van het centrum gelegen;
- karakteristieke en instapklare woning;
- Buitenschilderwerk gedeeltelijk uitgevoerd in 2021 en 2023;
- Muren en plafonds gestukadoord;
- Airco aanwezig;
- mooi uitzicht over de Singel;
- recht van overpad;
- Aanvaarding in overleg.
Dit soort objecten komen zelden te koop, van harte welkom voor een bezichtiging!
Kenmerken
Overdracht
- Laatste vraagprijs
- € 400.000 kosten koper
- Vraagprijs per m²
- € 6.557
- Status
- Verkocht
Bouw
- Soort woonhuis
- Eengezinswoning, tussenwoning
- Soort bouw
- Bestaande bouw
- Bouwjaar
- 1870
- Soort dak
- Zadeldak bedekt met pannen
Oppervlakten en inhoud
- Gebruiksoppervlakten
- Wonen
- 61 m²
- Overige inpandige ruimte
- 11 m²
- Externe bergruimte
- 4 m²
- Perceel
- 69 m²
- Inhoud
- 245 m³
Indeling
- Aantal kamers
- 3 kamers (2 slaapkamers)
- Aantal badkamers
- 1 badkamer en 1 apart toilet
- Badkamervoorzieningen
- Ligbad, toilet, wastafel, en wastafelmeubel
- Aantal woonlagen
- 2 woonlagen en een kelder
- Voorzieningen
- Airconditioning, dakraam, glasvezelkabel, mechanische ventilatie, natuurlijke ventilatie, rookkanaal, en TV kabel
Energie
- Energielabel
- D
- Isolatie
- Dakisolatie, grotendeels dubbelglas, HR-glas en vloerisolatie
- Verwarming
- Cv-ketel
- Warm water
- Cv-ketel
- Cv-ketel
- Nefit (gas gestookt combiketel uit 2013, eigendom)
Kadastrale gegevens
- WIJK BIJ DUURSTEDE C 4502
- Kadastrale kaart
- Oppervlakte
- 69 m²
- Eigendomssituatie
- Volle eigendom
Buitenruimte
- Ligging
- Aan water, in centrum en vrij uitzicht
- Tuin
- Achtertuin en voortuin
- Achtertuin
- 26 m² (5,82 meter diep en 4,53 meter breed)
- Ligging tuin
- Gelegen op het noordwesten bereikbaar via achterom
Bergruimte
- Schuur/berging
- Vrijstaande stenen berging
- Voorzieningen
- Elektra en stromend water
Parkeergelegenheid
- Soort parkeergelegenheid
- Openbaar parkeren
Foto's 50
© 2001-2025 funda

















































