
Omschrijving
Mooie 2-onder-1-kapwoning met uitbouw en keurig aangelegde tuin!
Aan de Virgilius 34 in de geliefde wijk De Geer staat deze keurig afgewerkte en uitgebouwde woning. Gelegen op een hoekperceel van 348 m2 groot en voorzien van een royale oprit, nette voortuin én een gezellige achtertuin met veel privacy, is dit een woning waar je zó in kunt.
Deze ruime woning beschikt over een moderne woonkeuken in de uitbouw, een woonkamer met sfeervolle gashaard, drie slaapkamers (voorheen 4), een badkamer, en een omgebouwde garage die nu dient als praktische kantoorruimte – ideaal voor thuiswerken of hobby.
Daarnaast ligt de woning op korte fietsafstand van de gezellige binnenstad van Wijk bij Duurstede met winkels, horeca en de Stadshaven. Ook scholen, sportverenigingen en openbaar vervoer zijn nabij.
Kenmerken
Woonoppervlakte: ca. 165 m²
Perceeloppervlakte: 348 m²
Inhoud: ca. 553 m³
Bouwjaar: 1996
Energielabel: B
Parkeergelegenheid voor meerdere auto's op eigen terrein
INDELING
Begane grond:
Overdekte entree, hal met garderobe, meterkast en toilet. Vanuit de hal kom je in de ruime U-vormige woonkamer met houten vloer en een sfeervolle gashaard. De grote raampartijen aan de voorzijde zorgen voor veel licht en mooi zicht op de voortuin. De moderne, open keuken met inbouwapparatuur is tuingericht en bevindt zich in de uitbouw met openslaande deuren naar de tuin.
Vanuit de eetkamer is er, via een loopdeur weggewerkt in de keukenkast, toegang tot de voormalige garage, die is getransformeerd tot een comfortabele kantoorruimte met daglicht en eigen toegangsdeur.
De verzorgde achtertuin biedt de hele dag door zon tot in de avonduren, is fraai aangelegd, biedt volop privacy en heeft een achterom.
Eerste verdieping:
Op de eerste verdieping zijn twee ruime slaapkamers (voorheen drie), waarvan één extra royale hoofdslaapkamer aan de voorzijde van de woning. De andere kamer is gesitueerd aan de achterzijde, voorzien van een dakraam. De badkamer is volledig betegeld en uitgerust met een inloopdouche, wastafelmeubel, ligbad en designradiator.
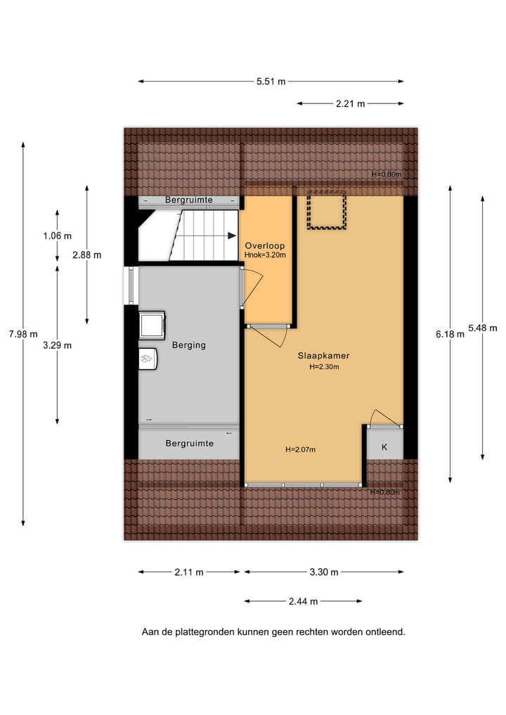
Tweede verdieping:
Via een vaste trap kom je op de zolder met ruime voorzolder met een separate ruimte met opstelplaats voor de wasmachine, droger en cv-installatie. Daarnaast bevindt zich hier een derde slaapkamer met een mooie dakkapel en voldoende bergruimte. Dankzij de dakkapel is deze kamer ruim en licht.
Bijzonderheden
- Degelijke uitbouw met vloerverwarming onder de plavuizen
- Garage omgebouwd tot multifunctionele kantoorruimte
- Ruime oprit voor meerdere auto’s
- Intergas cv-ketel geplaatst in 2025
- Garage in 2019 omgebouwd naar kantoorruimte
- Keuken geplaatst in 2016
- Nabij winkels, scholen en centrum van Wijk bij Duurstede.
Kenmerken
Overdracht
- Laatste vraagprijs
- € 795.000 kosten koper
- Vraagprijs per m²
- € 4.818
- Status
- Verkocht
Bouw
- Soort woonhuis
- Eengezinswoning, 2-onder-1-kapwoning
- Soort bouw
- Bestaande bouw
- Bouwjaar
- 1996
- Soort dak
- Zadeldak bedekt met pannen
Oppervlakten en inhoud
- Gebruiksoppervlakten
- Wonen
- 165 m²
- Externe bergruimte
- 10 m²
- Perceel
- 348 m²
- Inhoud
- 553 m³
Indeling
- Aantal kamers
- 5 kamers (3 slaapkamers)
- Aantal badkamers
- 1 badkamer en 1 apart toilet
- Badkamervoorzieningen
- Douche, dubbele wastafel, ligbad, en toilet
- Aantal woonlagen
- 3 woonlagen
- Voorzieningen
- Mechanische ventilatie
Energie
- Energielabel
- B
- Isolatie
- Volledig geïsoleerd
- Verwarming
- Cv-ketel
- Warm water
- Cv-ketel
- Cv-ketel
- Intergas (gas gestookt combiketel uit 2025, eigendom)
Kadastrale gegevens
- WIJK BIJ DUURSTEDE C 5146
- Kadastrale kaart
- Oppervlakte
- 348 m²
- Eigendomssituatie
- Volle eigendom
Buitenruimte
- Ligging
- In woonwijk
- Tuin
- Achtertuin, voortuin en zijtuin
- Achtertuin
- 110 m² (11,00 meter diep en 10,50 meter breed)
- Ligging tuin
- Gelegen op het noordoosten bereikbaar via achterom
Bergruimte
- Schuur/berging
- Vrijstaande houten berging
- Voorzieningen
- Elektra
- Isolatie
- Geen isolatie
Parkeergelegenheid
- Soort parkeergelegenheid
- Op eigen terrein
Foto's 53
© 2001-2025 funda




















































