
Omschrijving
Aan doorgaand vis- en vaarwater wordt te koop aangeboden, een verrassend ruime woonboerderij met opstallen op een perceel van maar liefst 1720 m². Het geheel is uitstekend gelegen ten opzichte van de uitvalsweg N33 waardoor Groningen en Assen binnen 25 minuten te bereiken zijn. De inpandige garage van 125 m² maakt de boerderij voor meerdere doeleinden uitermate geschikt. Wonen, wonen- en werken of zelfs dubbele bewoning behoren tot de mogelijkheden.
De indeling is als volgt: Entree/hal voorzien van de meterkast alsmede een ruime inpandige berging/garderobe. Vervolgens is vanuit de hal de ruime woonkeuken (30 m²) te bereiken. De enigszins gedateerde en eenvoudige keuken is geplaatst in hoekopstelling en voorzien van enig inbouwapparatuur. De speels ingerichte en vooral lichte woonkamer bevindt zich aan de voorzijde van het geheel. Grote raampartijen, een tuindeur naar het terras en een haardpartij worden geboden. Een tweetal slaapkamers van respectievelijk 14 m² en zijn via de woonkamer te bereiken. Aansluitend bevindt zich een toilet. Een achterhal geeft vanuit de keuken toegang tot het achterste gedeelte van de boerderij. Hier bevinden zich een viertal slaapkamers (respectievelijk 11, 11, 20 en 10 m²), de trapopgang en bijkeuken met witgoedaansluitingen. De bijkeuken geeft toegang tot de badkamer met o.a. een douchegelegenheid en dubbele wastafel alsmede tot een tweede toilet.
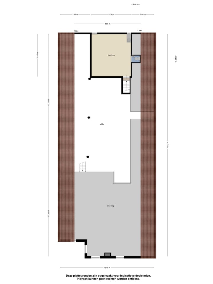
De verdieping is middels een vaste trap te bereiken en volledig in gebruik als studio, een derde toilet bevindt zich aansluitend aan de studio. Uiteraard is deze ruimte multifunctioneel te gebruiken en voor meerdere doeleinden geschikt.
Die riante inpandige garage (125 m²) is zowel vanuit de boerderij als vanaf het erf te bereiken. Een vaste trap geeft toegang tot de zolderberging (123 m²). De garage is voorzien van een elektrische garagedeur alsmede een krachtstroom aansluiting.
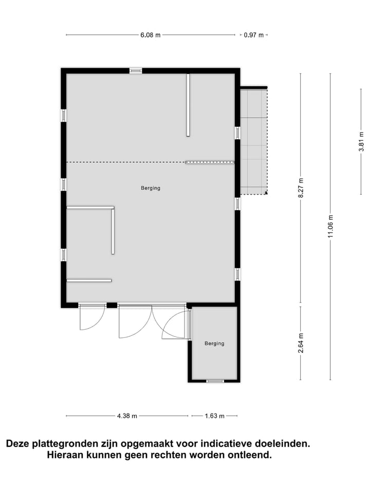
Het perceel is zowel van de Kammingastraat en de Landbouwstraat te bereiken en is onderverdeeld in een tweetal separate percelen. De voormalige stallen worden als schuurruimte in gebruik genomen en aan de achterzijde is een carport gesitueerd. Dankzij de ligging op het noordwesten wordt er voldoende zon geboden. Aan de achterzijde van het perceel geniet u optimaal van de zonsondergang over het Groninger landschap.
Het betreft hier een sfeervol en bijzonder geheel met verrassend ruime kamers en een groot perceel. Het geheel is voorzien van een nieuw dak en zonnepanelen worden reeds geboden. Daarentegen is de boerderij gedateerd en dient deze (gedeeltelijk) gemoderniseerd te worden naar de hedendaagse standaard.
Heeft het lezen van het bovenstaande uw enthousiasme gewekt? Plan dan nu uw bezichtiging!
INFO:
- Voor meerdere doeleinden geschikt
- Gesitueerd op twee percelen (Landbouwstraat en J. Kammingastraat)
- Grote inpandige schuurruimte
- Voldoende slaapkamers aanwezig
Kenmerken
Overdracht
- Laatste vraagprijs
- € 449.500 kosten koper
- Vraagprijs per m²
- € 1.529
- Status
- Verkocht
Bouw
- Soort woonhuis
- Eengezinswoning, vrijstaande woning
- Soort bouw
- Bestaande bouw
- Bouwjaar
- 1890
- Soort dak
- Samengesteld dak bedekt met overig
Oppervlakten en inhoud
- Gebruiksoppervlakten
- Wonen
- 294 m²
- Overige inpandige ruimte
- 234 m²
- Externe bergruimte
- 54 m²
- Perceel
- 1.720 m²
- Inhoud
- 1.961 m³
Indeling
- Aantal kamers
- 7 kamers (6 slaapkamers)
- Aantal badkamers
- 1 badkamer en 2 aparte toiletten
- Badkamervoorzieningen
- Dubbele wastafel en inloopdouche
- Aantal woonlagen
- 1 woonlaag en een zolder
- Voorzieningen
- TV kabel en zonnepanelen
Energie
- Energielabel
- G
- Isolatie
- Dubbel glas
- Verwarming
- Cv-ketel
- Warm water
- Cv-ketel
- Cv-ketel
- Intergas hre-48-36 cw5 (gas gestookt combiketel uit 2022, huur)
Kadastrale gegevens
- WILDERVANK F 2132
- Kadastrale kaart
- Oppervlakte
- 1.300 m²
- Eigendomssituatie
- Volle eigendom
- WILDERVANK F 2716
- Kadastrale kaart
- Oppervlakte
- 420 m²
- Eigendomssituatie
- Volle eigendom
Buitenruimte
- Ligging
- Aan vaarwater en vrij uitzicht
- Tuin
- Achtertuin
- Achtertuin
- 1.012 m² (92,00 meter diep en 11,00 meter breed)
- Ligging tuin
- Gelegen op het noordwesten bereikbaar via achterom
Bergruimte
- Schuur/berging
- Vrijstaande stenen berging
Garage
- Soort garage
- Inpandig
- Capaciteit
- 10 auto's
- Voorzieningen
- Vliering, elektra en stromend water
- Isolatie
- Geen isolatie
Parkeergelegenheid
- Soort parkeergelegenheid
- Op eigen terrein
Foto's 54
© 2001-2025 funda





















































