
Omschrijving
Een 3D beleving van deze woning vindt u onder het kopje 3D tour. Veel kijkplezier gewenst!
Wat een heerlijk huis! Qua afwerking en onderhoud precies zoals je hem zoekt, om door een ringetje te halen zeggen we dan wel eens. Deze ruime gezinswoning is lekker rustig gelegen en onderhoudsvriendelijk te noemen. Dit laatste komt mede door de aanwezigheid van kunststof kozijnen. Ook aan duurzaamheid is gedacht, het dak is namelijk geïsoleerd, de gevels en er is overal dubbele beglazing. Qua ruimte zit het eveneens wel goed, je hebt namelijk de beschikking over een ruime lichte woonkamer, luxe keuken met alles erop en eraan, vier grote slaapkamers en een volwaardige badkamer. Tel daar nog eens bij op dat je super centraal woont ten opzichte van steden zoals Rotterdam, Breda en Antwerpen en je komt tot de conclusie dat dit een buitenkansje is.
Indeling
Begane grond:
Je stapt de woning binnen in een ruime en lichte entree. Als eerste kom je een praktische hoek tegen waar je mooi de jassen kwijt kunt zonder dat ze in de weg hangen. Verder is er een geheel betegelde toiletruimte met wandcloset, trapopgang naar de eerste verdieping, een handige bergkast waar je de voorraad op kunt bergen, de meterkast (vernieuwd met 8 groepen, kookgroep en 3 aardlekschakelaars) en als laatste kun je door naar de woonkamer.
De woonkamer is een royale ruimte welke keurig afgewerkt is met lekker veel lichtinval. Deze fijne lichtinval komt door de grote hoeveelheid glas zowel aan de voor- als aan de achterzijde. Aan de voorzijde is het zitgedeelte gelegen en vanuit hier kijk je mooi vrij weg de straat in.
Aan de achterzijde, bij de openslaande deuren naar de tuin, is de plek voor de eettafel. Hier kijk je dan weer lekker weg over de strak aangelegde tuin. Aangrenzend aan het eetgedeelte is de keuken. De inrichting is recenter vernieuwd en dat is te zien, wat een schitterende keuken! De keuken is in een U-opstelling. Verder is de keuken van alle gemakken voorzien, zo heb je de beschikking over een koelkast, vriezer, combi-stoomoven, vaatwasser, inductiekookplaat en afzuigkap. Het aanrecht is uitgevoerd in Neolith, dit is een vorm van keramiek.
Eerste verdieping:
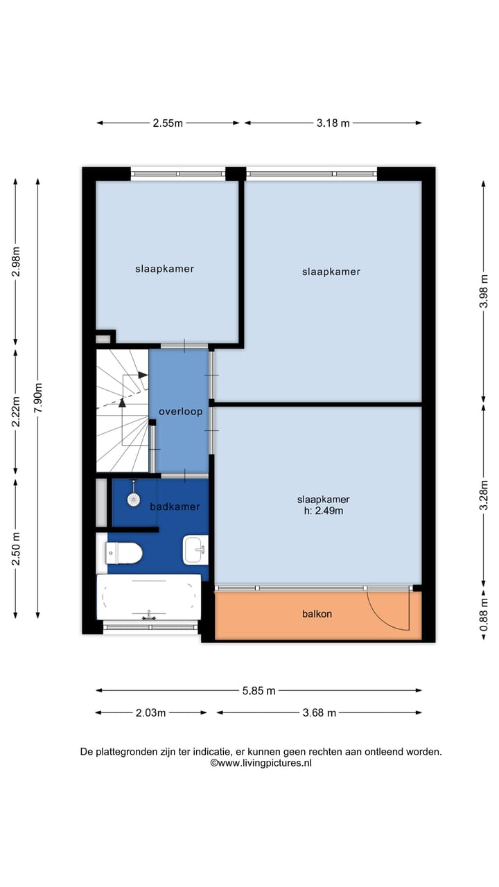
Afsluitbare overloop met toegang tot de drie slaapkamers, de badkamer en verder kun je via een vaste trap de tweede verdieping bereiken.
Één van de slaapkamers is aan de voorzijde gelegen en deze heeft toegang tot het balkon. De andere twee slaapkamers zijn aan de achterzijde gelegen. De slaapkamers hebben één ding gemeen en dat is dat ze stuk voor stuk van een goed formaat zijn.
Dan door naar de badkamer. Deze ruimte is geheel betegeld en je treft hier alles wat je nodig hebt. Zo is er een douche, ligbad, wastafel in meubel en een tweede toilet.
Tweede verdieping:
Overloop met dakkapel, vaste kast met hier de opstelplaats van de cv-ketel, bergruimte achter de knieschotten, wastafel in meubel en verder tref je hier nog de aansluitingen voor de wasapparatuur. Vanaf de overloop kun je dan als laatste nog de vierde slaapkamer bereiken.
Deze vierde slaapkamer is ook weer royaal en dit komt door de dakkapel welke over de breedte is geplaatst. Vanuit deze vierde slaapkamer is de inloopkast te bereiken welke voorzien is van een dakraam. Je zou deze ruimte ook kunnen benutten als thuiswerkplek. Achter de knieschotten op de tweede verdieping kom je nog diverse bergruimtes tegen.
Achtertuin:
Onderhoudsvriendelijk aangelegde achtertuin met grote terrassen van mooie tegels, een verhoogde border en toegang tot de stenen berging met elektra. Via de overkapping aan de berging is de achterom bereikbaar.
Algemeen:
- alle vloeren zijn van beton;
- de slaapkamer op de tweede verdieping is uitgevoerd met een airconditioning welke tevens kan verwarmen;
- In 2023 zijn de slaapkamers voorzien van rolluiken;
- Tegen de achtergevel hangt een elektrisch bedienbaar zonnescherm.
Kenmerken
Overdracht
- Laatste vraagprijs
- € 350.000 kosten koper
- Vraagprijs per m²
- € 3.043
- Status
- Verkocht
Bouw
- Soort woonhuis
- Eengezinswoning, tussenwoning
- Soort bouw
- Bestaande bouw
- Bouwjaar
- 1974
- Soort dak
- Zadeldak bedekt met pannen
Oppervlakten en inhoud
- Gebruiksoppervlakten
- Wonen
- 115 m²
- Gebouwgebonden buitenruimte
- 3 m²
- Externe bergruimte
- 8 m²
- Perceel
- 140 m²
- Inhoud
- 375 m³
Indeling
- Aantal kamers
- 5 kamers (4 slaapkamers)
- Aantal badkamers
- 1 badkamer en 1 apart toilet
- Badkamervoorzieningen
- Douche, ligbad, toilet, en wastafelmeubel
- Aantal woonlagen
- 3 woonlagen
- Voorzieningen
- Buitenzonwering, dakraam, glasvezelkabel, rolluiken, en TV kabel
Energie
- Energielabel
- C
- Isolatie
- Dakisolatie, dubbel glas, HR-glas en muurisolatie
- Verwarming
- Cv-ketel
- Warm water
- Cv-ketel
- Cv-ketel
- Nefit HR (gas gestookt combiketel uit 2006, eigendom)
Kadastrale gegevens
- WILLEMSTAD D 971
- Kadastrale kaart
- Oppervlakte
- 140 m²
- Eigendomssituatie
- Volle eigendom
Buitenruimte
- Ligging
- Aan rustige weg en in woonwijk
- Tuin
- Achtertuin en voortuin
- Achtertuin
- 54 m² (9,00 meter diep en 6,00 meter breed)
- Ligging tuin
- Gelegen op het zuidoosten bereikbaar via achterom
Bergruimte
- Schuur/berging
- Vrijstaande stenen berging
- Voorzieningen
- Elektra
Parkeergelegenheid
- Soort parkeergelegenheid
- Openbaar parkeren
Foto's 64
© 2001-2025 funda































































