Dit huis op Funda: https://www.funda.nl/detail/koop/winsum-gr/huis-jasmijnstraat-11/43993986/

Omschrijving
Omgeven door veel groen in een ruim opgezette woonwijk staat deze goed onderhouden en verzorgde woning met 3 slaapkamers en een diepe, zonnige tuin!
Gebouwd in 1973, heeft het huis aantrekkelijke houtaccenten aan zowel de voor- als achterzijde. De architectuur van het huis is bijzonder leuk! De voorgevel heeft een knusse en vriendelijke uitstraling door de lage gootlijn en een praktische luifel, terwijl de achterzijde met een hoge gootlijn juist een verrassende indruk maakt. Naast de overvloed aan natuurlijk licht biedt deze gezinswoning veel ruimte en een unieke, speelse architectuur dankzij de zogenaamde "split-level" indeling.
De woning is goed geïsoleerd met Tonzon vloerisolatie, HR++ glas op de begane grond en dubbel glas op de verdieping. Daarnaast liggen 10 zonnepanelen op het dak.
De "Bloemenbuurt", waar de woning zich bevindt, is ontstaan in de jaren zeventig en ligt op loopafstand van de mooie historische dorpskern. Winsum heeft veel voorzieningen, waaronder een uitgebreide middenstand met een supermarkt om de hoek. Verder zijn er basis- en voortgezet onderwijs en veel sportfaciliteiten aanwezig in het dorp.
Indeling:
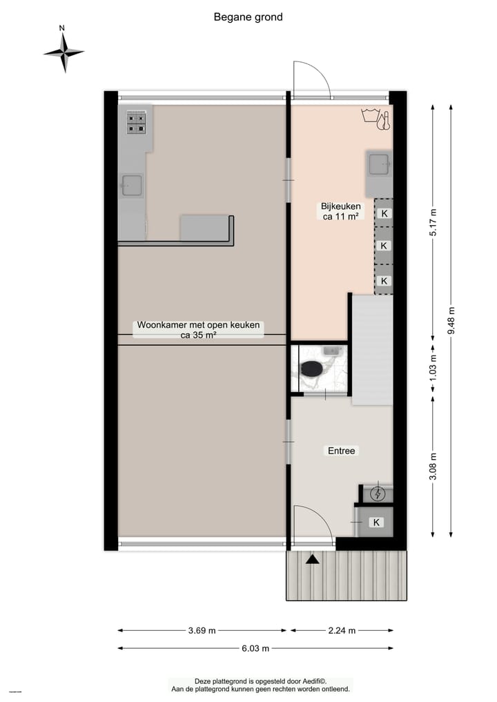
Begane grond:
De hal/entree heeft een inbouwkast, meterkast en toilet. De woonkamer heeft een speels hoogteverschil en de open keuken is voorzien van apparatuur (o.a. kookplaat, koelkast, vriezer, vaatwasser, afzuigkap en een composiet aanrechtblad). Er is toegang tot de royale bijkeuken met een deur naar de achtertuin. Aan de achterzijde van de woning bevindt zich een besloten tuin met een achterom en een vrijstaande berging.
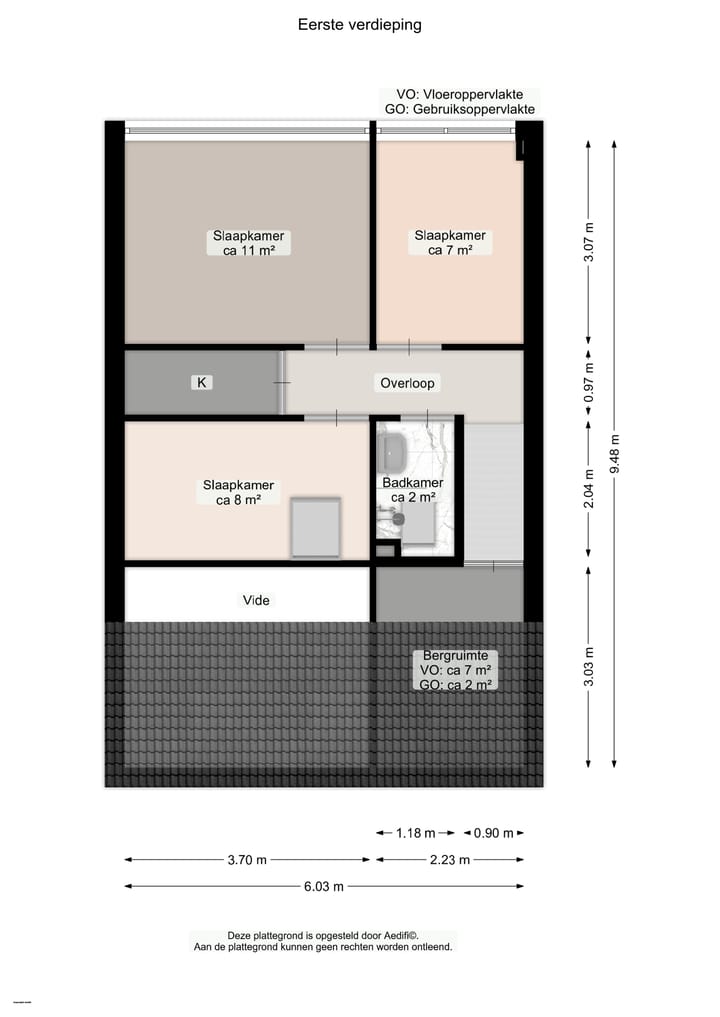
Eerste verdieping:
Overloop, ruime ouderslaapkamer, inloopkast en 2 kinderkamers (waarvan één de mogelijkheid biedt om het terug te brengen naar een vide die in verbinding staat met de woonkamer). De badkamer is voorzien van een douchehoek en wastafel, met een dakraam voor extra lichtinval. Tevens is er nog enige bergruimte aanwezig.
Sterke punten en bijzonderheden:
o Nette keuken & badkamer
o Vrij uitzicht aan de voorzijde
o Tonzon vloerisolatie, HR++ glas op de begane grond en een nieuwe CV-ketel zijn nog niet meegenomen in het huidge energielabel
o Fantastische locatie
o Gestucte muren
o Bezichtigingsaanvragen bij voorkeur via Funda of per mail.
Ontdek deze charmante woning! Vraag dan snel een bezichtiging aan en Marjet laat je graag het huis zien.
Kenmerken
Overdracht
- Laatste vraagprijs
- € 269.000 kosten koper
- Vraagprijs per m²
- € 2.745
- Status
- Verkocht
Bouw
- Soort woonhuis
- Eengezinswoning, tussenwoning
- Soort bouw
- Bestaande bouw
- Bouwjaar
- 1973
- Soort dak
- Dwarskap bedekt met pannen
Oppervlakten en inhoud
- Gebruiksoppervlakten
- Wonen
- 98 m²
- Gebouwgebonden buitenruimte
- 3 m²
- Externe bergruimte
- 8 m²
- Perceel
- 161 m²
- Inhoud
- 381 m³
Indeling
- Aantal kamers
- 4 kamers (3 slaapkamers)
- Aantal badkamers
- 1 badkamer en 1 apart toilet
- Badkamervoorzieningen
- Douche en wastafel
- Aantal woonlagen
- 2 woonlagen
- Voorzieningen
- Zonnepanelen
Energie
- Energielabel
- C
- Isolatie
- Dubbel glas, HR-glas en vloerisolatie
- Verwarming
- Cv-ketel
- Warm water
- Cv-ketel
- Cv-ketel
- Atag (gas gestookt combiketel uit 2020, eigendom)
Kadastrale gegevens
- WINSUM B 1755
- Kadastrale kaart
- Oppervlakte
- 120 m²
- Eigendomssituatie
- Volle eigendom
- WINSUM B 1870
- Kadastrale kaart
- Oppervlakte
- 41 m²
- Eigendomssituatie
- Volle eigendom
Buitenruimte
- Ligging
- Aan rustige weg, in woonwijk en vrij uitzicht
- Tuin
- Achtertuin en voortuin
- Achtertuin
- 77 m² (13,00 meter diep en 5,90 meter breed)
- Ligging tuin
- Gelegen op het noorden bereikbaar via achterom
Bergruimte
- Schuur/berging
- Vrijstaande houten berging
- Voorzieningen
- Elektra
Parkeergelegenheid
- Soort parkeergelegenheid
- Openbaar parkeren
Foto's 33
© 2001-2025 funda
































