
Plan Parkzicht (Bouwnr. P3)8471 WolvegaWolvega-Om de Noort
€ 412.000 v.o.n.
Omschrijving
Wonen in het Groene Hart van Wolvega
Het Groene Hart belooft een moderne, groene en duurzame woonwijk te worden, met oog voor kwaliteit en leefbaarheid. Fase 1 en 2 omvatten een gevarieerd woningaanbod, passend bij de behoeften van een brede doelgroep. De start verkoop markeert een belangrijke mijlpaal in de realisatie van dit langverwachte project.
Stel je voor: wonen in het bruisende centrum van Wolvega, omringd door een prachtige parkomgeving geïnspireerd op de stijl van tuinarchitect Roodbaard. Een plek waar groen en rust samenkomen, waar je kunt wandelen, ontspannen en genieten van de natuur – en dat allemaal op steenworp afstand van alle voorzieningen.
Dit Groene Hart is meer dan een woonlocatie; het is een leefomgeving die ontworpen is om te verblijven, te ontmoeten en te genieten. De harmonie tussen natuur en stadse gemakken maakt deze plek uniek. Je woont hier midden in Wolvega, maar tegelijkertijd in een groene oase waar bomen, wandelpaden en waterpartijen samen een park vormen.
Of je nu even wilt ontsnappen aan de drukte of juist wilt genieten van alles wat het centrum te bieden heeft – hier is het allemaal binnen handbereik. Wonen in het Groene Hart van Wolvega betekent het beste van twee werelden: een ontspannen, natuurlijke omgeving én de dynamiek van het centrum direct om de hoek.
Kenmerken
Overdracht
- Aangeboden sinds
- Aanvaarding
- In overleg
- Vraagprijs
- € 412.000 vrij op naam
- Vraagprijs per m²
- € 4.682
- Status
- Beschikbaar
Bouw
- Soort appartement
- Benedenwoning (appartement)
- Soort bouw
- Nieuwbouw
- Bouwjaar
- 2026
Oppervlakten en inhoud
- Gebruiksoppervlakten
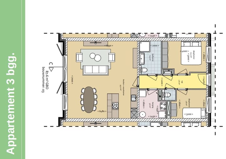
- Wonen
- 88 m²
- Gebouwgebonden buitenruimte
- 4 m²
- Inhoud
- 238 m³
Indeling
- Aantal kamers
- 3 kamers (2 slaapkamers)
- Aantal badkamers
- 1 badkamer en 1 apart toilet
- Badkamervoorzieningen
- Douche, toilet, en wastafel
- Aantal woonlagen
- 4 woonlagen
- Gelegen op
- Begane grond
Energie
- Energielabel
- Niet beschikbaar
Buitenruimte
- Ligging
- Aan park en in centrum
Parkeergelegenheid
- Soort parkeergelegenheid
- Openbaar parkeren
Foto's 2
© 2001-2026 funda

