Dit huis op Funda: https://www.funda.nl/detail/koop/wolvega/huis-bremstraat-13/43716193/

Omschrijving
NIEUW! NIEUW! NIEUW!
Zeer gunstig, op een ruim hoekperceel gelegen halfvrijstaand woonhuis met een royale achteraanbouw uit respectievelijk ca. 2000 en ca. 2010 en een vrijstaande houten garage met eigen oprit op een perceel van ca. 288 m ² eigen grond. Het geheel is gelegen aan de westzijde van Wolvega in het waterrijke plan "De Heide" met volop wandel- en fietsmogelijkheden in het zeer nabij gelegen natuurgebied "De Lindevallei".
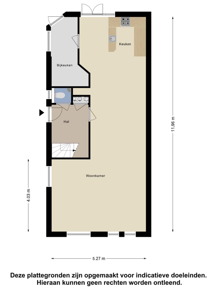
Indeling: entree/hal met meterkast, toilet met fonteintje en trapopgang, woonkamer met fraaie eiken parketvloer en een zeer fraai U-vormig keukenblok in de achteraanbouw met een natuursteen werkblad, compleet v.v. inbouwapparatuur een barretje en dubbele tuindeuren, bijkeuken met aansluitingen voor het witgoed en de achteringang.
1e verdieping: overloop met 3 slaapkamers waarvan de grootste aan de achterzijde is v.v. een dakkapel over gehele breedte van het woonhuis wat voor extra ruimte en licht zorgt, badkamer (ca. 2001) met ligbad, wastafel en designradiator.
2e verdieping: via vlizotrap naar ruime bergzolder met stahoogte en een zeer sfeervolle en kindvriendelijke bedstee, hier bevindt zich ook de cv-ketel (bjr ca. 2000).
• De vrijstaande houten garage is ca. 26 m².
• Deze halfvrijstaande woning beschikt over vloerverwarming in de keuken en de bijkeuken en is v.v. een C-label.
Kenmerken
Overdracht
- Laatste vraagprijs
- € 325.000 kosten koper
- Vraagprijs per m²
- € 3.155
- Status
- Verkocht
Bouw
- Soort woonhuis
- Eengezinswoning, 2-onder-1-kapwoning
- Soort bouw
- Bestaande bouw
- Bouwjaar
- 1989
- Specifiek
- Gedeeltelijk gestoffeerd
- Soort dak
- Zadeldak bedekt met bitumineuze dakbedekking en pannen
Oppervlakten en inhoud
- Gebruiksoppervlakten
- Wonen
- 103 m²
- Overige inpandige ruimte
- 8 m²
- Externe bergruimte
- 26 m²
- Perceel
- 288 m²
- Inhoud
- 375 m³
Indeling
- Aantal kamers
- 4 kamers (3 slaapkamers)
- Aantal badkamers
- 1 badkamer en 1 apart toilet
- Badkamervoorzieningen
- Ligbad en wastafelmeubel
- Aantal woonlagen
- 3 woonlagen
- Voorzieningen
- Buitenzonwering, glasvezelkabel, mechanische ventilatie, en TV kabel
Energie
- Energielabel
- C
- Isolatie
- Dakisolatie, gedeeltelijk dubbel glas, muurisolatie en vloerisolatie
- Verwarming
- Cv-ketel en gedeeltelijke vloerverwarming
- Warm water
- Cv-ketel
- Cv-ketel
- Nefit Ecomline (gas gestookt uit 2000, eigendom)
Kadastrale gegevens
- WOLVEGA D 8327
- Kadastrale kaart
- Oppervlakte
- 288 m²
- Eigendomssituatie
- Volle eigendom
Buitenruimte
- Ligging
- Aan rustige weg en in woonwijk
- Tuin
- Achtertuin, voortuin en zijtuin
- Achtertuin
- 110 m² (11,43 meter diep en 9,61 meter breed)
- Ligging tuin
- Gelegen op het noordoosten
Garage
- Soort garage
- Vrijstaande houten garage
- Capaciteit
- 1 auto
- Voorzieningen
- Elektra
Foto's 39
© 2001-2025 funda






































