Dit huis op Funda: https://www.funda.nl/detail/koop/wolvega/huis-de-brogge-26/43068372/

Omschrijving
In rustige woonwijk gelegen goed onderhouden vrijstaande woning met aangebouwde stenen bijkeuken en garage en heerlijke tuin op het zuidwesten op een perceel van 519m2 eigen grond.
De woning bevindt zich op loopafstand van diverse scholen, de sporthal en het NS-station. Tevens uitstekend bereikbaar door de beperkte afstand naar de A32. Vanuit de woonkamer heeft u een fraai uitzicht over de voorgelegen groenvoorziening met waterpartij!
Indeling:
Begane grond: entree, hal met trapopgang en meterkast, royale woonkamer van circa 50m2 met veel lichtinval, gashaard en schuifpui, half open keuken van circa 10m2 met royale keukenopstelling voorzien van diverse inbouwapparatuur, bijkeuken met ketelopstelling en witgoedaansluitingen, toiletruimte voorzien van closet en fontein en ruime garage van circa 30m2.
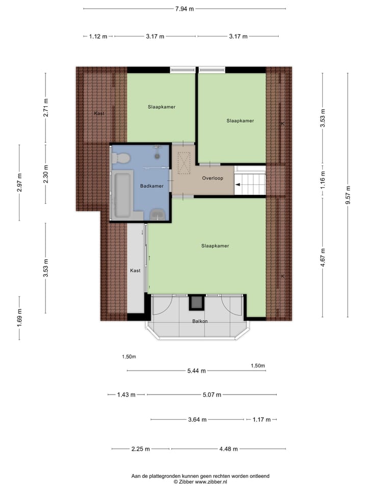
Verdieping: overloop, ouderslaapkamer van circa 20m2 aan de voorzijde met kastenwand en toegang tot het balkon, 2 slaapkamers van circa 11 en 9m2 aan de achterzijde en badkamer voorzien van ligbad, douche, toilet en wastafel.
Zolder: via vlizotrap bereikbare berging van circa 10m2.
Bijzonderheden:
- Bouwjaar 1994;
- Volledig geïsoleerd (energielabel A) en geheel voorzien van dubbele beglazing;
- Verwarming middels Atag hr-combi ketel, bouwjaar 2011;
- Aangebouwde stenen garage van circa 30m2;
- Oprit met parkeergelegenheid voor meerdere auto's op eigen terrein;
- Tuin op het zuidwesten met achterom;
- Eigen grond 519m2.
Interesse in deze woning?
Neem uw eigen NVM aankoopmakelaar mee!
Kenmerken
Overdracht
- Laatste vraagprijs
- € 525.000 kosten koper
- Vraagprijs per m²
- € 3.889
- Status
- Verkocht
Bouw
- Soort woonhuis
- Eengezinswoning, vrijstaande woning
- Soort bouw
- Bestaande bouw
- Bouwjaar
- 1994
- Soort dak
- Zadeldak bedekt met bitumineuze dakbedekking en pannen
Oppervlakten en inhoud
- Gebruiksoppervlakten
- Wonen
- 135 m²
- Overige inpandige ruimte
- 40 m²
- Gebouwgebonden buitenruimte
- 5 m²
- Perceel
- 519 m²
- Inhoud
- 640 m³
Indeling
- Aantal kamers
- 4 kamers (3 slaapkamers)
- Aantal badkamers
- 1 badkamer en 1 apart toilet
- Badkamervoorzieningen
- Douche, ligbad, toilet, en wastafel
- Aantal woonlagen
- 2 woonlagen en een zolder
- Voorzieningen
- Buitenzonwering, glasvezelkabel, mechanische ventilatie, schuifpui, en TV kabel
Energie
- Energielabel
- A
- Isolatie
- Dakisolatie, dubbel glas, muurisolatie, vloerisolatie en volledig geïsoleerd
- Verwarming
- Cv-ketel
- Warm water
- Cv-ketel
- Cv-ketel
- Atag hr-combi (gas gestookt combiketel uit 2011, eigendom)
Kadastrale gegevens
- WOLVEGA D 8607
- Kadastrale kaart
- Oppervlakte
- 519 m²
- Eigendomssituatie
- Volle eigendom
Buitenruimte
- Ligging
- Aan rustige weg en in woonwijk
- Tuin
- Achtertuin, tuin rondom, voortuin en zijtuin
- Achtertuin
- 200 m² (10,50 meter diep en 19,00 meter breed)
- Ligging tuin
- Gelegen op het zuidwesten bereikbaar via achterom
- Balkon/dakterras
- Balkon aanwezig
Garage
- Soort garage
- Aangebouwde stenen garage
- Capaciteit
- 1 auto
- Voorzieningen
- Elektra
Parkeergelegenheid
- Soort parkeergelegenheid
- Op eigen terrein en openbaar parkeren
Foto's 32
© 2001-2025 funda































