Dit huis op Funda: https://www.funda.nl/detail/koop/zaandam/huis-texelstraat-31/43225545/

Omschrijving
Een vleugje nostalgie, volop ruimte voor eigen ideeën en een fantastische ligging in de gezellige Waddenbuurt: dat is de belofte van Texelstraat 31 in Zaandam. De centrale locatie biedt een briljante mix van rust en reuring, met het treinstation op loopafstand en winkels om de hoek. Het bouwjaar 1960 staat garant voor een authentieke sfeer, terwijl de tuin op het zuidoosten voor een fijne zoninval zorgt. Deze plek nodigt uit om dromen waar te maken, en maakt het eenvoudig om te settelen of om met een frisse blik de mogelijkheden van een echte kluswoning te verkennen.
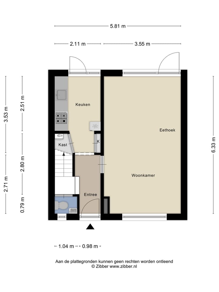
Binnen wacht een verrassend ruime en praktisch ingedeelde tussenwoning Zaandam, ideaal voor gezinnen, starters en stellen die houden van een plek met karakter. Het totale woonoppervlak van circa 90 m² voelt comfortabel aan, waarbij de vier slaapkamers voldoende privacy en flexibiliteit bieden. Een dakopbouw zorgt voor extra licht en ruimte, wat meteen de potentie aantoont om hier een ultiem familiehuis of creatieve werkplek van te maken. De perceeloppervlakte van circa 132 m² geeft meteen gelegenheid voor een lichte tuin met een breed scala aan mogelijkheden. De oriëntatie op het zuidoosten zorgt bovendien voor een heerlijke ochtend- en middagzon – de perfecte plek om van de eerste kop koffie van de dag te genieten.
Wie van klussen houdt, kan hier zijn of haar hart ophalen en het volledige potentieel van elke vierkante meter benutten. De rustige woonwijk creëert eenvoudige toegang tot allerlei faciliteiten.
BIJZONDERHEDEN
• Kluswoning met veel mogelijkheden
• Dakopbouw aanwezig voor extra ruimte en licht
• Tuinligging op het zuidoosten
• Bouwjaar 1960 met authentieke details
• Vier slaapkamers, ideaal voor gezinnen of thuiswerken
• Perceeloppervlakte van circa 132 m² en een woonoppervlakte van circa 90 m²
• Centrale ligging met treinstation op loopafstand
Een totaalplaatje dat zich uitstekend leent voor wie graag de handen uit de mouwen steekt en nog een droomhuis wil realiseren op een van de aantrekkelijkste plekken in Zaandam. Dankzij de goede verbinding met het openbaar vervoer, de korte afstand tot voorzieningen en de sfeervolle Waddenbuurt is dit een kans die niet vaak voorbijkomt. Het team van Saen Garantiemakelaars staat klaar om elke stap in het koopproces te begeleiden en kan helpen om hier echte woonwensen te vervullen.
Kenmerken
Overdracht
- Aangeboden sinds
- Aanvaarding
- In overleg
- Vraagprijs
- € 325.000 kosten koper
- Vraagprijs per m²
- € 3.611
- Status
- Beschikbaar
Bouw
- Soort woonhuis
- Eengezinswoning, tussenwoning
- Soort bouw
- Bestaande bouw
- Bouwjaar
- 1960
- Specifiek
- Gedeeltelijk gestoffeerd
- Soort dak
- Zadeldak bedekt met pannen
Oppervlakten en inhoud
- Gebruiksoppervlakten
- Wonen
- 90 m²
- Gebouwgebonden buitenruimte
- 2 m²
- Externe bergruimte
- 9 m²
- Perceel
- 115 m²
- Inhoud
- 318 m³
Indeling
- Aantal kamers
- 5 kamers (4 slaapkamers)
- Aantal badkamers
- 1 badkamer en 1 apart toilet
- Badkamervoorzieningen
- Douche, toilet, en wastafel
- Aantal woonlagen
- 3 woonlagen
- Voorzieningen
- Mechanische ventilatie en TV kabel
Energie
- Energielabel
- Isolatie
- Geen isolatie
- Verwarming
- Cv-ketel
- Warm water
- Geiser
- Cv-ketel
- Gas gestookt, eigendom
Kadastrale gegevens
- ZAANDAM H 4546
- Kadastrale kaart
- Oppervlakte
- 115 m²
- Eigendomssituatie
- Volle eigendom
Buitenruimte
- Ligging
- Aan rustige weg en in woonwijk
- Tuin
- Achtertuin en voortuin
- Achtertuin
- 54 m² (9,00 meter diep en 6,00 meter breed)
- Ligging tuin
- Gelegen op het zuidoosten bereikbaar via achterom
- Balkon/dakterras
- Balkon aanwezig
Bergruimte
- Schuur/berging
- Aangebouwde stenen berging
- Voorzieningen
- Elektra
Parkeergelegenheid
- Soort parkeergelegenheid
- Openbaar parkeren
Foto's 50
© 2001-2026 funda

















































