Dit huis op Funda: https://www.funda.nl/detail/koop/zeijen/huis-margrietstraat-33/43851881/

Omschrijving
EUBIOTIEK, de kunst om goed te leven, dat is waar deze woning voor staat. Dit woord prijkt dan ook boven de voordeur.
In het mooie brinkdorp Zeijen staat deze vrijstaande LEVENSLOOPBESTENDIGE semi bungalow. Heerlijk wonen met het gehele woonprogramma op de begane grond, daarnaast ook nog 2 ruime slaapkamers op de verdieping.
OP ZOEK NAAR EUBIOTIEK IN EEN WONING MET SLAAP- EN BADKAMER OP DE BEGANE GROND? KOM GERUST EEN KIJKJE NEMEN!
De indeling is als volgt:
Begane grond
Hal/entree met meterkast, heerlijke en lichte woonkamer met gezellige houtkachel en deur naar de tuin. Het gedeeltelijke hoge plafond (gesloten vide) in de woonkamer geeft een ruimtelijk en speels effect. De keuken is voorzien van veel bergruimte en enige inbouwapparatuur, waaronder een oven en een gasfornuis. De aansluitende bijkeuken beschikt over de opstelplaats van de Nefit CV ketel en de aansluiting voor de wasmachine.
Vanuit de hal is tevens het toilet, de badkamer met douche en wastafel en de riante slaapkamer met eigen badkamer bereikbaar. De slaapkamer is zo'n 23m² groot en biedt veel ruimte voor een groot bed en kasten. De aangrenzende badkamer is ook ruim en is voorzien van een inloopdouche, toilet en wastafel.
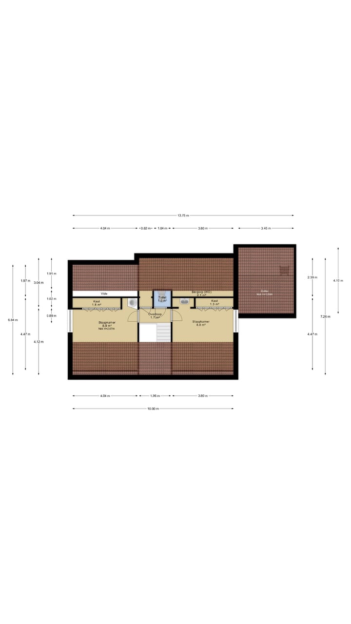
Eerste verdieping
Op deze verdieping zijn twee slaapkamers beschikbaar van elk ca. 9 m². De kamers hebben beide vaste kastruimte en een wastafel. Daarnaast is er op deze verdieping een toilet en veel bergruimte aanwezig.
Schuur/berging
Op de begane grond, aansluitend aan de bijkeuken, is een grote schuurruimte beschikbaar van ca. 19m². Vanuit deze ruimte kan je via een deur naar de tuin of naar de oprit. Ideaal dus om je fiets binnen te zetten. Deze ruimte heeft een betonnen vloer, een bergzolder en kan verwarmd worden door een houtkachel. Naast deze inpandige schuur staat er in de tuin ook nog een vrijstaande houten schuur, ideaal voor o.a. tuingereedschap.
Tuin
De heerlijk zonnige tuin is op het westen gelegen en heeft aan de achterzijde een extra stuk grond liggen wat op dit moment nog verstopt ligt door de heg aan de achterzijde van de oorspronkelijke tuin. Al met al is de kavel bijna 930m² groot waar je dan ook echt fijn in kunt zitten en tuinieren.
Dorp
Zeijen is een mooi karakteristiek en actief brinkdorp, op 8 km van Assen en 20 km van de bruisende stad Groningen. De A28 is snel te bereiken. Ook loop je zo de natuur in, o.a. de Zeijerwiek en het Bollenveen liggen binnen handbereik en prachtige heidegebieden en Nationaal Park Drentse Aa liggen op fietsafstand. In het dorp is o.a. een basisschool, vele sportmogelijkheden, een warme bakker en een horecagelegenheid. Daarnaast worden er diverse activiteiten georganiseerd, zowel voor de kinderen als voor volwassenen o.a. het jaarlijks terugkerende zomerfeest.
Goed om te weten:
- Overdracht dient plaats te vinden via notariskantoor Velema-Rijks in Roden
- De woning wordt niet door de eigenaar zelf verkocht, derhalve zal er een niet-zelfbewoningsclausule van toepassing zijn
- De vragenlijst deel B is, gezien bovenstaande, summier ingevuld
- De kavel bestaat uit twee percelen grond van 807 en 121m²
* VIRTUEEL AL TE BEZICHTIGEN! *
Voor deze vrijstaande woning is een unieke woningwebsite gemaakt met virtuele tour en ook alle overige informatie (zie voor het webadres de 1e pagina van de brochure)
Kenmerken
Overdracht
- Laatste vraagprijs
- € 450.000 kosten koper
- Vraagprijs per m²
- € 3.629
- Status
- Verkocht
Bouw
- Soort woonhuis
- Eengezinswoning, vrijstaande woning
- Soort bouw
- Bestaande bouw
- Bouwjaar
- 1973
- Specifiek
- Gedeeltelijk gestoffeerd
- Soort dak
- Zadeldak bedekt met pannen
- Toegankelijkheid
- Toegankelijk voor mensen met een beperking en toegankelijk voor ouderen
Oppervlakten en inhoud
- Gebruiksoppervlakten
- Wonen
- 124 m²
- Overige inpandige ruimte
- 20 m²
- Externe bergruimte
- 8 m²
- Perceel
- 928 m²
- Inhoud
- 483 m³
Indeling
- Aantal kamers
- 4 kamers (3 slaapkamers)
- Aantal badkamers
- 2 badkamers en 2 aparte toiletten
- Badkamervoorzieningen
- 2 douches, 2 wastafels, en toilet
- Aantal woonlagen
- 2 woonlagen
Energie
- Energielabel
- D
- Isolatie
- Grotendeels dubbelglas
- Verwarming
- Cv-ketel
- Warm water
- Cv-ketel
- Cv-ketel
- Nefit Trendline (gas gestookt combiketel uit 2022, eigendom)
Kadastrale gegevens
- VRIES U 1142
- Kadastrale kaart
- Oppervlakte
- 807 m²
- Eigendomssituatie
- Volle eigendom
- VRIES U 1635
- Kadastrale kaart
- Oppervlakte
- 121 m²
- Eigendomssituatie
- Volle eigendom
Buitenruimte
- Ligging
- Aan rustige weg en in woonwijk
- Tuin
- Achtertuin, voortuin en zijtuin
- Achtertuin
- 483 m² (21,00 meter diep en 23,00 meter breed)
- Ligging tuin
- Gelegen op het westen bereikbaar via achterom
Bergruimte
- Schuur/berging
- Vrijstaande houten berging
- Isolatie
- Geen isolatie
Parkeergelegenheid
- Soort parkeergelegenheid
- Op eigen terrein en openbaar parkeren
Foto's 64
© 2001-2025 funda































































