Dit huis op Funda: https://www.funda.nl/detail/koop/zeist/huis-de-genestetlaan-1-e/43807180/

Omschrijving
In één van de meest gewilde buurten “De Dichtersbuurt” gelegen tussenwoning. De woning heeft de beschikking over 5 slaapkamers alsmede een tuin met ruime berging, achterom welke is gelegen op het noordoosten.
De kindvriendelijke wijk wordt gekenmerkt door haar bebouwing uit de 30-er jaren. Op loop- en fietsafstand bevindt zich o.a. het centrum van Zeist met alle dagelijkse voorzieningen zoals supermarkten, restaurants, bioscoop, theater, basis- en middelbare scholen, sportverenigingen, het complex “Utrecht Science Park”, het UMC en het NS-station Driebergen-Zeist. Nabijgelegen uitvalswegen zorgen voor uitstekende autoverbindingen met o.a. Utrecht, Amsterdam, Arnhem en Den Haag.
Indeling:
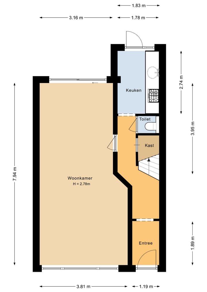
Begane grond: Entree, hal met meterkast en toilet, de woonkamer geeft middels een schuifpui toegang tot de tuin. De dichte keuken is v.v. enig inbouwapparatuur en geeft eveneens toegang tot de tuin.
Eerste verdieping : Overloop, ruime slaapkamer gelegen aan de voorzijde, ruime slaapkamer gelegen aan de achterzijde met toegang tot balkon, 3e kleine slaapkamer. De badkamer is v.v. douche en toilet.
Tweede verdieping: Voorzolder met berging en toegang tot 2 kamers. Door het plaatsen van 2 dakkapellen kunnen er 2 ruime slaapkamers gecreëerd worden.
Berging: ruime berging met stookruimte.
Tuin; De tuin is gelegen op het noordoosten.
Algemeen:
• Woonoppervlakte woning: 106 m² (meetcertificaat aanwezig).
• Energielabel: C
• Isolatie: dubbel glas, spuwmuurisolatie en dakisolatie
• Onderhoud: redelijk, de woning dient op plekken te worden gemoderniseerd.
• Perceeloppervlakte: 157 m2
• Aanvaarding in overleg.
Kadastrale gegevens:
Gemeente Zeist, sectie M , nummer 3588, totaal groot 1 are en 57 centiare.
Afmetingen (circa) in meters:
Voor de afmetingen verwijzen wij u naar de plattegronden.
Kenmerken
Overdracht
- Laatste vraagprijs
- € 589.000 kosten koper
- Vraagprijs per m²
- € 5.610
- Status
- Verkocht
Bouw
- Soort woonhuis
- Eengezinswoning, tussenwoning
- Soort bouw
- Bestaande bouw
- Bouwperiode
- 1931-1944
- Soort dak
- Dwarskap bedekt met pannen
Oppervlakten en inhoud
- Gebruiksoppervlakten
- Wonen
- 105 m²
- Gebouwgebonden buitenruimte
- 6 m²
- Externe bergruimte
- 16 m²
- Perceel
- 157 m²
- Inhoud
- 384 m³
Indeling
- Aantal kamers
- 6 kamers (5 slaapkamers)
- Aantal badkamers
- 1 badkamer en 1 apart toilet
- Badkamervoorzieningen
- Douche en toilet
- Aantal woonlagen
- 3 woonlagen
- Voorzieningen
- Natuurlijke ventilatie
Energie
- Energielabel
- Niet beschikbaar
- Isolatie
- Dakisolatie, dubbel glas en muurisolatie
- Verwarming
- Cv-ketel
- Warm water
- Elektrische boiler
- Cv-ketel
- Gas gestookt, eigendom
Kadastrale gegevens
- ZEIST M 3588
- Kadastrale kaart
- Oppervlakte
- 157 m²
- Eigendomssituatie
- Volle eigendom
Buitenruimte
- Ligging
- Aan rustige weg en in woonwijk
- Tuin
- Achtertuin en voortuin
- Achtertuin
- 50 m² (10,00 meter diep en 5,00 meter breed)
- Ligging tuin
- Gelegen op het noordoosten bereikbaar via achterom
- Balkon/dakterras
- Balkon aanwezig
Bergruimte
- Schuur/berging
- Vrijstaande stenen berging
- Voorzieningen
- Elektra
Parkeergelegenheid
- Soort parkeergelegenheid
- Openbaar parkeren
Foto's 22
© 2001-2026 funda





















