Dit huis op Funda: https://www.funda.nl/detail/koop/zoetermeer/huis-waaienberg-44/43710559/

Omschrijving
Zeer ruime, rustig gelegen eengezinswoning met 4 slaapkamers en een heerlijk zonnige achtertuin.
Deze goed onderhouden woning is perfect gelegen aan de rand van de wijk Meerzicht, op korte afstand van het Westerpark, basisscholen, openbaar vervoer, een wijkwinkelcentrum, het toekomstige Vogelpark en uitvalswegen. De woning is desgewenst te koop met een garagebox aan de nabijgelegen Wijnberg, de vraagprijs hiervoor is € 30.000,-.
Indeling
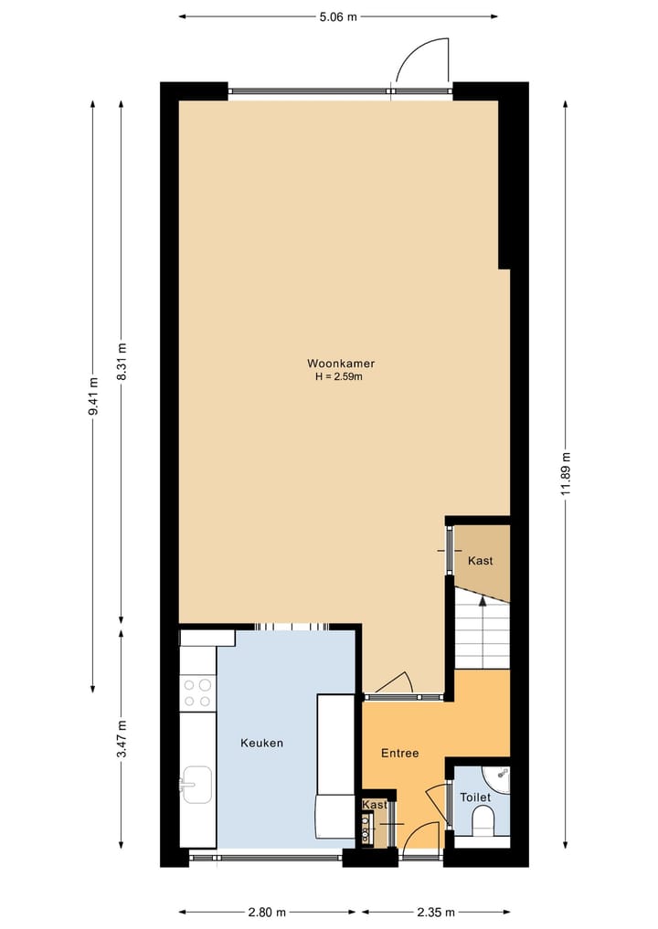
Begane grond:
Bij aankomst betreedt u de voortuin, voorzien van een ruime stenen berging. De entreehal biedt toegang tot de meterkast en een modern separaat toilet met wandcloset, hoekfonteintje en witte wandtegels. Aan de voorzijde van de woning bevindt zich de ruime keuken in rechte opstelling, die desgewenst eenvoudig bij de woonkamer betrokken kan worden voor een open leefruimte. De keuken is voorzien van diverse inbouwapparatuur, waaronder een oven, 4-pits gaskookplaat en afzuigkap. De uitgebouwde, lichte woonkamer bevindt zich aan de achterzijde en beschikt over een praktische trapkast en een deur naar de royale achtertuin met extra berging. De achtertuin is ideaal gelegen op het noordwesten, zodat u volop kunt genieten van de middag- en avondzon. Dit maakt de tuin de perfecte plek om na een lange dag te ontspannen of te genieten van lange zomeravonden met familie en vrienden. De tuin biedt voldoende ruimte voor een sfeervolle zit- of eethoek en i bereikbaar middels een achterom.
Eerste verdieping:
De ruime overloop biedt toegang tot de eenvoudige badkamer, voorzien van een douche, wastafel en toilet. Aan de voorzijde van de woning bevindt zich een royale slaapkamer over de volledige breedte van het huis (ca. 5.22 x 3.25 m), wat zorgt voor een comfortabel en licht vertrek. Aan de achterzijde liggen nog twee slaapkamers van respectievelijk ca. 4.06 x 2.96 m en 4.06 x 2.18 m. Deze indeling maakt de eerste verdieping bijzonder functioneel en geschikt voor diverse woonwensen.
Tweede verdieping:
De tweede verdieping is een lichte en ruime zolderverdieping met talloze mogelijkheden. Aan de achterzijde bevindt zich een royale slaapkamer die is uitgebreid met een onderhoudsarme kunststof dakkapel, wat zorgt voor extra ruimte en daglicht. Aan de voorzijde ligt een ruime voorzolder, uitgerust met wasmachineaansluiting en de opstelplaats voor de CV-ketel (Vaillant, 2012). Bovendien biedt de voorzolder voldoende ruimte voor extra opbergruimte, waardoor deze verdieping zowel praktisch als veelzijdig is.
Bijzonderheden
• Goed onderhouden woning
• Ca. 140 m² woonoppervlakte.
• Ruime voortuin met stenen berging.
• Royale woonkamer met toegang tot de achtertuin.
• Keuken voorzien van inbouwapparatuur (oven, 4-pits gaskookplaat, afzuigkap).
• Riante achtertuin op het noordwesten, ideaal voor middag- en avondzon, met extra berging.
• Tweede etage met royale slaapkamer met kunststof dakkapel aan de achterzijde.
• Niet bewoningsclausule van toepassing
• Eventueel te koop met garagebox voorzien van kanteldeur, aan de nabijgelegen Wijnberg voor € 30.000,-.
• Oplevering in overleg (kan snel).
Kenmerken
Overdracht
- Laatste vraagprijs
- € 459.000 kosten koper
- Vraagprijs per m²
- € 3.255
- Status
- Verkocht
Bouw
- Soort woonhuis
- Eengezinswoning, tussenwoning
- Soort bouw
- Bestaande bouw
- Bouwjaar
- 1974
- Soort dak
- Zadeldak bedekt met pannen
- Keurmerken
- Energie Prestatie Advies
Oppervlakten en inhoud
- Gebruiksoppervlakten
- Wonen
- 141 m²
- Externe bergruimte
- 13 m²
- Perceel
- 157 m²
- Inhoud
- 475 m³
Indeling
- Aantal kamers
- 6 kamers (5 slaapkamers)
- Aantal badkamers
- 1 badkamer en 1 apart toilet
- Aantal woonlagen
- 3 woonlagen
- Voorzieningen
- Buitenzonwering
Energie
- Energielabel
- B
- Isolatie
- Dakisolatie, dubbel glas, HR-glas en muurisolatie
- Verwarming
- Cv-ketel
- Warm water
- Cv-ketel
- Cv-ketel
- Vaillant (gas gestookt combiketel uit 2012, eigendom)
Kadastrale gegevens
- ZOETERMEER F 1
- Kadastrale kaart
- Oppervlakte
- 157 m²
- Eigendomssituatie
- Volle eigendom
Buitenruimte
- Tuin
- Achtertuin
- Achtertuin
- 68 m² (12,63 meter diep en 5,38 meter breed)
- Ligging tuin
- Gelegen op het noordwesten bereikbaar via achterom
Bergruimte
- Schuur/berging
- Vrijstaande stenen berging
- Voorzieningen
- Elektra
Garage
- Soort garage
- Garagebox
- Capaciteit
- 1 auto
Parkeergelegenheid
- Soort parkeergelegenheid
- Openbaar parkeren
Foto's 51
© 2001-2025 funda


















































