Dit huis op Funda: https://www.funda.nl/detail/koop/zoeterwoude/huis-zwaan-40/43801957/

Omschrijving
Te koop: ruim bemeten tussenwoning met veel potentie!
Deze verrassend grote tussenwoning biedt een unieke kans om je droomwoning te creëren, geheel naar eigen wens in te richten. Met een woonoppervlak van maar liefst 137m², 4 slaapkamers, ruim bemeten badkamer, biedt deze woning volop ruimte voor een gezin.
Gelegen op 2 percelen van in totaal 166m² met parkeergelegenheid op eigen perceel, ervaar je hier zowel rust als gemak. De woning ligt aan het water, wat zorgt voor een gevarieerd uitzicht en een rustige sfeer.
Dankzij de ligging op het westen geniet je van veel natuurlijk licht en heerlijke zonuren in zowel de tuin als het huis. Hoewel het interieur dient te worden opgefrist, is dit de perfecte kans om je eigen stempel te drukken op deze bijzondere woning en het om te toveren tot een moderne en comfortabele gezinswoning.
Winkels, sportfaciliteiten en een nieuwe brede school met o.a. kinderopvang liggen op loop- en fietsafstand. De A4 richting Amsterdam en Den Haag en de N11 richting Alphen a/d Rijn en Utrecht zijn bovendien snel bereikbaar en Leiden ligt op slechts een kwartiertje ‘verkeersluw’ fietsen.
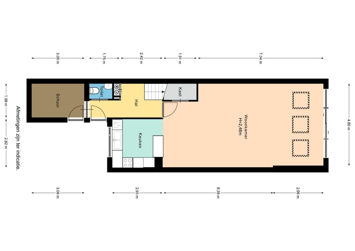
Indeling begane grond:
Hal met toegang naar berging binnendoor, toiletruimte, meterkast en trapopgang; uitgebouwde tuinwoonkamer ca. 31m² met trapkast, 3 automatisch bedienbare dakvensters in de uitbouw voor extra lichtinval, 97% privacy en toegang via schuifpui naar de bijna 14m diepe, speelse en aan het water grenzende tuin op het westen; open keuken aan de straatzijde met diverse inbouwapparatuur.
Indeling 1e verdieping:
Aangenaam brede overloop met vaste kast; riante badkamer 2.54x2.31m met wastafelmeubel, inloopdouche, ligbad en 2e toilet; 3 (voorheen 2) slaapkamers, waarvan de grootste met vaste garderobekast. De oppervlakte van het oorspronkelijke balkon is bij de slaapkamers getrokken.
Indeling 2e verdieping:
Vaste trap naar riante overloop met bergruimten; stookruimte met CV-combiketel en aansluiting voor wasmachine; slaapkamer aan de tuinzijde met dakkapel.
Kenmerken kort samengevat:
- gebruikersoppervlakte woonruimte 137m²
- percelen totaal 166m²
- parkeergelegenheid op eigen perceel
- 4 slaapkamers
- woonkamer ca. 45m²
- uitbouw met 3 automatisch bedienbare dakvensters
- tuin met zonneterras en vijver op het westen grenzend aan water
- ouderdoms-, asbest- en niet-bewoningsclausule van toepassing
- CV-combiketel (2023)
- energielabel B
Deze woning BEZICHTIGEN?.........
- klik dan op funda.nl in de rechter kolom op "Plan een bezichtiging" of
- schakel direct je eigen NVM-aankoopmakelaar in. Jou NVM-aankoopmakelaar komt op voor jou belang en bespaart je tijd, geld en zorgen. Adressen van collega NVM-aankoopmakelaars in de regio vindt je op Funda. Jij en je aankoopmakelaar zijn van harte welkom.
Kenmerken
Overdracht
- Laatste vraagprijs
- € 525.000 kosten koper
- Vraagprijs per m²
- € 3.832
- Status
- Verkocht
Bouw
- Soort woonhuis
- Eengezinswoning, tussenwoning
- Soort bouw
- Bestaande bouw
- Bouwjaar
- 1980
- Soort dak
- Lessenaardak bedekt met pannen
Oppervlakten en inhoud
- Gebruiksoppervlakten
- Wonen
- 137 m²
- Overige inpandige ruimte
- 6 m²
- Externe bergruimte
- 7 m²
- Perceel
- 166 m²
- Inhoud
- 444 m³
Indeling
- Aantal kamers
- 5 kamers (4 slaapkamers)
- Aantal badkamers
- 1 badkamer
- Badkamervoorzieningen
- Dubbele wastafel, inloopdouche, ligbad, toilet, en wastafelmeubel
- Aantal woonlagen
- 3 woonlagen
- Voorzieningen
- Dakraam, mechanische ventilatie, schuifpui, en TV kabel
Energie
- Energielabel
- Isolatie
- Dubbel glas
- Verwarming
- Cv-ketel
- Warm water
- Cv-ketel
- Cv-ketel
- Nefit ( combiketel uit 2023, eigendom)
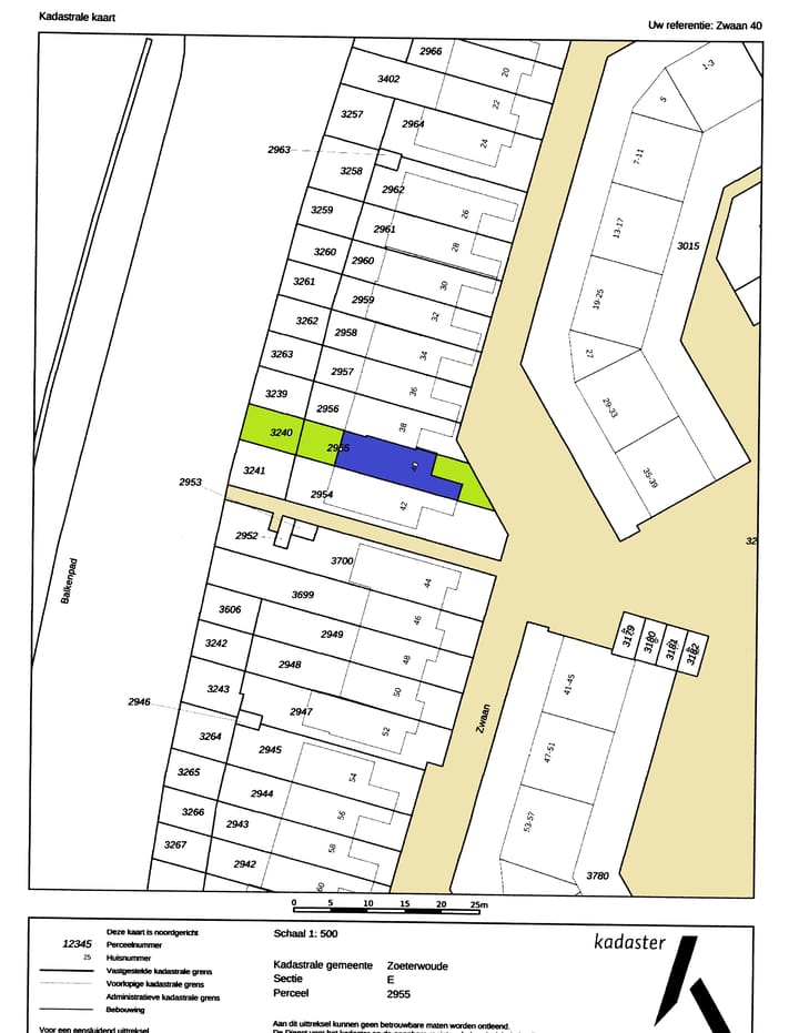
Kadastrale gegevens
- ZOETERWOUDE E 2955
- Kadastrale kaart
- Oppervlakte
- 129 m²
- Eigendomssituatie
- Volle eigendom
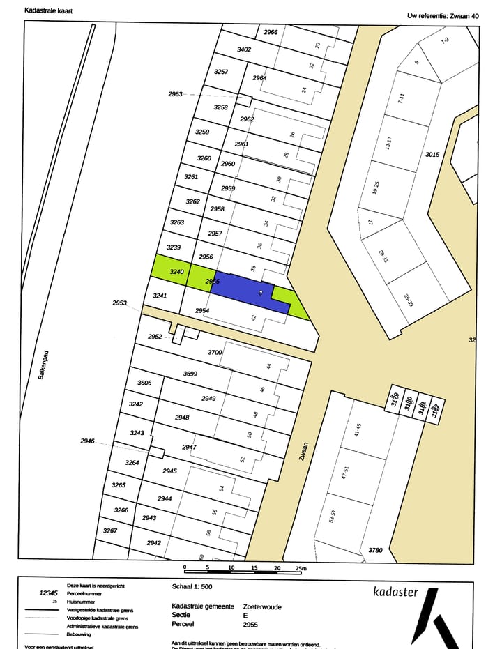
- ZOETERWOUDE E 3240
- Kadastrale kaart
- Oppervlakte
- 37 m²
- Eigendomssituatie
- Volle eigendom
Buitenruimte
- Ligging
- Aan rustige weg, aan water en in woonwijk
- Tuin
- Achtertuin en voortuin
- Achtertuin
- 68 m² (13,59 meter diep en 5,00 meter breed)
- Ligging tuin
- Gelegen op het westen
Bergruimte
- Schuur/berging
- Aangebouwde houten berging
- Voorzieningen
- Elektra
Garage
- Soort garage
- Parkeerplaats
Parkeergelegenheid
- Soort parkeergelegenheid
- Openbaar parkeren
Foto's 36
© 2001-2026 funda



































