Dit huis op Funda: https://www.funda.nl/detail/koop/zorgvlied/huis-de-gavere-1-a/43628389/

De Gavere 1-A8437 PE ZorgvliedVerspreide huizen Zorgvlied
€ 1.299.700 k.k.
Omschrijving
Unieke Woonkans: Wonen met je Paarden in Zorgvlied
Droom je ervan om te wonen in een prachtige, natuurlijke omgeving, met volop ruimte voor je paarden? Dan is De Gavere 1a in Zorgvlied jouw droomplek. Dit bijzondere object biedt een royale woning, uitgebreide paardensportfaciliteiten en talloze mogelijkheden voor buitenliefhebbers.
Woning en Faciliteiten
De charmante woning, gebouwd in 1995, biedt een royaal woonoppervlak van 205 m². Gelegen op loopafstand van het gezellige centrum van Zorgvlied en grenzend aan het prachtige Drents-Friese Wold, vind je hier de rust en ruimte die je zoekt, met de natuur letterlijk in je achtertuin.
De manege beschikt over 37 stallen en ongeveer 4,2 hectare grond, waarvan circa 3 hectare weiland. De faciliteiten omvatten:
- Dubbele paardenstal nabij de woning
- Paardenstal met 10 stallen/boxen en een werktuigenloods
- Hoofdgebouw met 27 stallen/boxen
- Overdekte wasplaats en stapmolen
- Mestplaats en twee buitenbakken
- Een ruimte die voorheen werd gebruikt als honden trimsalon
Paradijs voor Paardenliefhebbers
Met meer dan 175 kilometer aan ruiterpaden in het Drents-Friese Wold, is deze locatie een paradijs voor paardenliefhebbers. Je kunt heerlijke tochten maken door de bossen, over de heide en langs vennen. Bovendien is er een speciale spartelvijver voor paarden en honden op steenworp afstand, perfect voor afkoeling tijdens warme zomerdagen.
Het naastgelegen vakantiepark biedt een gezellige sfeer en voorzieningen zoals een zwembad, sportvelden en een campingwinkel. Op de Gavere 1a kun je genieten van de rust en de natuur, terwijl je toch de gezelligheid (en de voorzieningen) van het vakantiepark naast je hebt.
Woonmogelijkheden en Voorzieningen
Hoewel het terrein een recreatieve bestemming heeft, mag je hier permanent wonen, mits het terrein dienstbaar is aan het naastgelegen vakantiepark door (een deel van) de paardenfaciliteiten beschikbaar te stellen voor het naastgelegen vakantiepark. Dit kan jou als eigenaar extra inkomsten opleveren zonder dat dit veel werk met zich mee hoeft te brengen. Het park regelt momenteel het onderhoud en de zorg voor de (pension)gasten, waardoor jij je kunt richten op je eigen paarden en hobby’s. Ben je juist iemand die graag de handen uit de mouwen steekt en zelf voor de stallen wil zorgen? In overleg met het park kan de gewenste samenwerking worden bepaald.
Combineer Woongenot met Slimme Ontwikkelingskansen
Naast de prachtige woonmogelijkheden, biedt deze locatie ook interessante ontwikkelingsperspectieven. Wil je enkel genieten van de woning en de uitgebreide paardenfaciliteiten? Dan geldt de vraagprijs van € 1.299.700 k.k. voor de woonboerderij, paardenstallen, faciliteiten, weiland en horeca.
Maar ben je op zoek naar meer mogelijkheden? Dan kun je aanvullend circa 5.000 m² recreatieve ontwikkelgrond bijkopen (exacte oppervlakte wordt nog kadastraal ingemeten en gesplitst). Deze extra grond biedt ruimte voor het realiseren van ongeveer 18 - 22 kavels, met een geschatte opbrengst van circa € 700.000,-. Hiermee kun je niet alleen een droomlocatie voor jezelf creëren, maar ook een slimme investering realiseren.
Met deze optie, waarvoor de totale vraagprijs op € 1.699.700 k.k. ligt, heb je de unieke kans om je woonplek verder te ontwikkelen én te profiteren van de financiële voordelen van deze extra mogelijkheden.
Hierin schuilt de unieke kans om te genieten van een luxe woonomgeving, terwijl je tegelijkertijd waarde toevoegt door middel van ontwikkeling en eventuele (aanvullende) exploitatie.
Vakantie met je Paard
Voor de echte paardenliefhebber is dit de ideale plek. Naast de ruime mogelijkheden voor paardrijden en genieten van de natuur, biedt het terrein opties voor recreatieverhuur. Het plaatsen van chalets of mobiele eenheden biedt interessante kansen, zoals het creëren van een vakantiepark en het genereren van extra inkomsten.
Het ontwikkelen van het terrein is echter geen verplichting. Als je meer houdt van rust, ruimte en groen, kun je er ook voor kiezen om de serene omgeving en de vrijheid van het buitenleven te omarmen, zonder verdere ontwikkeling. Hier bepaal jij hoe je wilt wonen en genieten.
Contact
Ben je op zoek naar een bijzondere woonplek met tal van mogelijkheden? Een plek waar je jouw droom om te wonen in een prachtige, natuurlijke omgeving met volop ruimte voor je paarden kunt verwezenlijken? Neem dan contact met ons op voor meer informatie en een bezichtiging. Wij staan klaar om je te helpen bij het realiseren van jouw droomproject!
Kenmerken
Overdracht
- Oorspronkelijke vraagprijs
- € 1.699.700 kosten koper
- Aangeboden sinds
- Aanvaarding
- In overleg
- Vraagprijs
- € 1.299.700 kosten koper
- Vraagprijs per m²
- € 2.218
- Status
- Beschikbaar
Bouw
- Soort woonhuis
- Eengezinswoning, vrijstaande woning
- Soort bouw
- Bestaande bouw
- Bouwjaar
- 1995
Oppervlakten en inhoud
- Gebruiksoppervlakten
- Wonen
- 586 m²
- Overige inpandige ruimte
- 452 m²
- Gebouwgebonden buitenruimte
- 78 m²
- Externe bergruimte
- 557 m²
- Perceel
- 47.392 m²
- Inhoud
- 3.848 m³
Indeling
- Aantal kamers
- 7 kamers (6 slaapkamers)
- Aantal woonlagen
- 2 woonlagen
Energie
- Energielabel
- Verwarming
- Cv-ketel
- Warm water
- Cv-ketel
- Cv-ketel
- Gas gestookt, eigendom
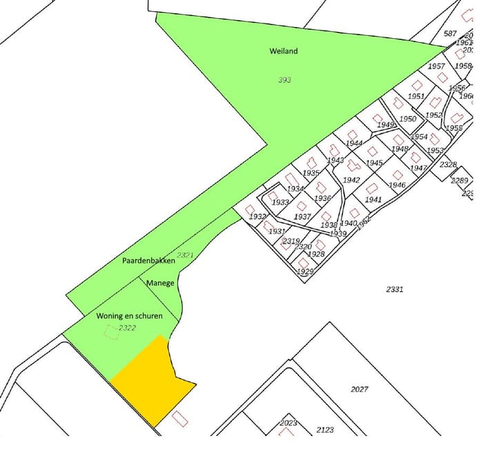
Kadastrale gegevens
- DIEVER A 2321
- Kadastrale kaart
- Oppervlakte
- 3.205 m²
- Eigendomssituatie
- Volle eigendom
- DIEVER A 2322
- Kadastrale kaart
- Oppervlakte
- 11.357 m²
- Eigendomssituatie
- Volle eigendom
- MAKKINGA F 393
- Kadastrale kaart
- Oppervlakte
- 32.830 m²
- Eigendomssituatie
- Volle eigendom
Buitenruimte
- Ligging
- Aan bosrand, buiten bebouwde kom, in woonwijk en vrij uitzicht
- Tuin
- Tuin rondom
Garage
- Soort garage
- Inpandig en parkeerplaats
- Capaciteit
- 1 auto
Bedrijfsruimte
- Bedrijfsruimte
- (vrijstaand)
Foto's 73
© 2001-2026 funda








































































