Dit huis op Funda: https://www.funda.nl/detail/koop/zuid-beijerland/huis-kraagweg-7/43572936/

Kraagweg 73284 KK Zuid-BeijerlandZuid-Beijerland Buitengebied
€ 2.450.000 k.k.
Omschrijving
Welkom! Want dat voel je zodra je de oprit op gaat van deze geweldig verbouwde boerderij.
Unieke kans om jouw droomwoning te bemachtigen in het prachtige landschap van de Hoeksche Waard! Deze volledig gerenoveerde boerderij, gelegen op een van de meest betoverende locaties langs het rustgevende water van Vissersvliet, biedt een combinatie van charme, comfort en speelse indeling die je zelden tegenkomt.
Bij het betreden van deze woning wordt je meteen omarmd door een sfeer van warmte en authenticiteit. De fraaie treurwilg bij de oprit geeft een welkom gevoel en nodigt uit om verder te verkennen.
Stap binnen in de schitterende hal die toegang biedt tot de lichte en bijzonder ruime woonkamer, waar de originele balkenplafonds en karakteristieke details prachtig samenkomen met moderne voorzieningen. De brede open(gas)haard zorgt voor gezellige avonden, terwijl de grote ramen een adembenemend uitzicht bieden op de groene omgeving.
De keuken, voorzien van hoogwaardige apparatuur en een stijlvol kookeiland, is een ware oase voor kookliefhebbers. Met voldoende ruimte om te dineren en te entertainen, wordt hier koken een waar plezier.
Het oorspronkelijke woonhuis is momenteel ingericht als kantoor met eigen keuken, toilet en entree. Wat een heerlijke plek om te werken; dat gun je toch iedereen!
De speelse indeling van deze boerderij zorgt voor verrassende ontdekkingen in elke hoek. Van gezellige hoekjes om te lezen tot inspirerende werkruimtes, deze woning biedt veel mogelijkheden om jouw eigen stempel te drukken.
Buiten nodigt de prachtige tuin uit tot ontspanning en genieten van de natuurlijke schoonheid van de omgeving. Met een eigen aanlegsteiger langs het water, is dit de perfecte plek voor liefhebbers van varen en hengelsport.
Kortom, deze compleet verbouwde boerderij op een van de mooiste locaties in de Hoeksche Waard is een unieke kans die je niet mag missen. Neem vandaag nog contact met ons op voor meer informatie en maak jouw droom van het leven aan het water werkelijkheid!
Bijzonderheden:
- Bouwjaar 1930;
- Woonoppervlakte ca 735 m2;
- Perceeloppervlakte 18.290 m2 eigen grond;
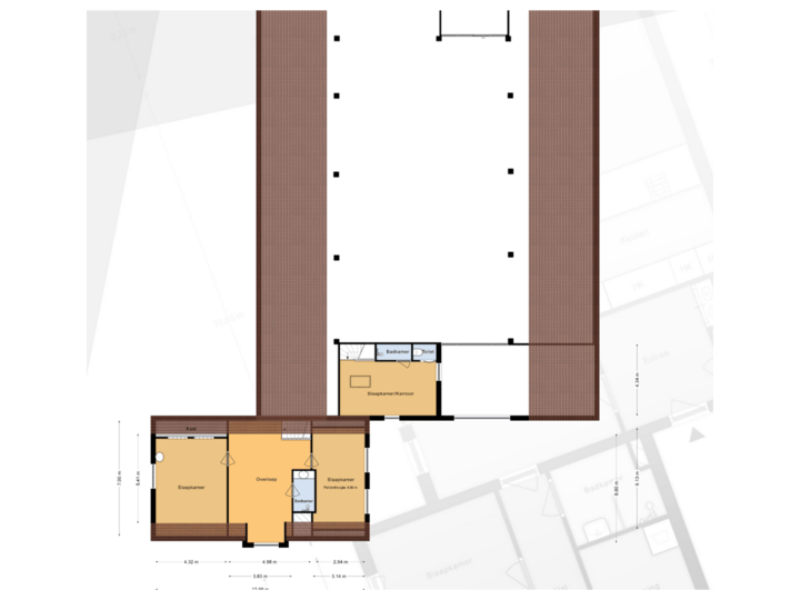
- 4 slaapkamers, 3 badkamers;
- Vloerverwarming, muurverwarming en brede gashaard;
- Beveiligingssysteem met camerabewaking;
- Energielabel C;
- Vrij uitzicht over het polderlandschap;
- Groot historisch bijgebouw, in gebruik als schuur;
- Oplevering: in overleg.
Nadrukkelijk moet er worden vermeld dat deze informatieverstrekking niet als aanbieding of offerte mag worden beschouwd. Deze dient slechts als uitnodiging tot het doen van een bod. Aan deze gegevens kunnen geen rechten worden ontleend. De makelaar kan op generlei wijze aansprakelijk worden gesteld voor de over het object verstrekte informatie.
Toelichtingsclausule meetinstructie
De Meetinstructie is gebaseerd op de NEN2580. De Meetinstructie is bedoeld om een meer eenduidige manier van meten toe te passen voor het geven van een indicatie van de gebruiksoppervlakte. De Meetinstructie sluit verschillen in meetuitkomsten niet volledig uit, door bijvoorbeeld interpretatieverschillen, afrondingen of beperkingen bij het uitvoeren van de meting.
Wilmer & Van Twist Makelaardij treedt op als verkopend makelaar voor deze woning in Zuid-Beijerland, gemeente Hoeksche Waard. Wij behartigen de belangen van de verkopende partij. Neem uw eigen NVM aankoopmakelaar mee!
Kenmerken
Overdracht
- Oorspronkelijke vraagprijs
- € 2.595.000 kosten koper
- Aangeboden sinds
- Aanvaarding
- In overleg
- Vraagprijs
- € 2.450.000 kosten koper
- Vraagprijs per m²
- € 3.333
- Status
- Beschikbaar
Bouw
- Soort woonhuis
- Woonboerderij, vrijstaande woning
- Soort bouw
- Bestaande bouw
- Bouwjaar
- 1931
- Specifiek
- Monumentaal pand
- Soort dak
- Samengesteld dak bedekt met pannen
- Toegankelijkheid
- Toegankelijk voor mensen met een beperking en toegankelijk voor ouderen
Oppervlakten en inhoud
- Gebruiksoppervlakten
- Wonen
- 735 m²
- Gebouwgebonden buitenruimte
- 38 m²
- Externe bergruimte
- 104 m²
- Perceel
- 18.290 m²
- Inhoud
- 5.135 m³
Indeling
- Aantal kamers
- 7 kamers (4 slaapkamers)
- Aantal badkamers
- 3 badkamers en 2 aparte toiletten
- Badkamervoorzieningen
- 3 douches, ligbad, toilet, en 2 wastafelmeubels
- Aantal woonlagen
- 2 woonlagen en een vliering
- Voorzieningen
- Natuurlijke ventilatie, rookkanaal, en schuifpui
Energie
- Energielabel
- C
- Isolatie
- Gedeeltelijk dubbel glas, muurisolatie en vloerisolatie
- Verwarming
- Cv-ketel, gashaard, houtkachel, muurverwarming en gedeeltelijke vloerverwarming
- Warm water
- Cv-ketel
- Cv-ketel
- Nefit HR (gas gestookt combiketel uit 2007, eigendom)
Kadastrale gegevens
- ZUID-BEIJERLAND H 747
- Kadastrale kaart
- Oppervlakte
- 18.290 m²
- Eigendomssituatie
- Volle eigendom
Buitenruimte
- Ligging
- Aan rustige weg, aan water, buiten bebouwde kom, landelijk gelegen en vrij uitzicht
- Tuin
- Tuin rondom
Garage
- Soort garage
- Vrijstaande stenen garage
- Capaciteit
- 10 auto's
- Voorzieningen
- Elektra
- Isolatie
- Geen isolatie
Parkeergelegenheid
- Soort parkeergelegenheid
- Op eigen terrein
Foto's 60
Plattegronden 3
© 2001-2025 funda






























































