
Omschrijving
In het mooie landelijke dorp Zuidlaarderveen gelegen, vrijstaande woning met aangebouwde garage, vrijstaande schuur, bergingen en ruime diepe achtertuin met weids uitzicht over de landerijen. Totale perceeloppervlakte 1448 m².
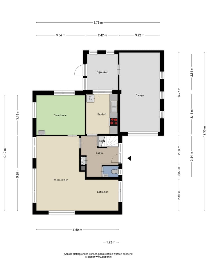
Begane grond: entree/hal met trapopgang, trapkast, toilet met fonteintje; L- woonkamer (29 m²) met parketvloer en elektrische screens; slaapkamer (12 m²) met parketvloer en wastafelmeubel; gesloten eenvoudige keuken (8 m²) met wasmachineaansluiting; aangebouwde bijkeuken met achterdeur; garage (20 m²) met combiketel, smeerkelder en elektrische segmentdeur.
Verdieping: overloop met vaste kasten; 2 slaapkamers met vaste kasten; eenvoudige badkamer voorzien van douche, wastafel en dakkapel.
Info:
-vanuit de achtertuin zicht op Zuidlaren en Tusschenwateren;
-ruimte voor het houden van dieren;
-grote schuur met zolder;
-spouwmuur isolatie 2019;
-SNN Subsidie Verduurzaming en Verbetering Groningen € 10.000,- nog niet besteed.
De directe leefomgeving wordt gekenmerkt door natuur, rust, ruimte en veel vrijheid.
In de dorpskern van Zuidlaarderveen bevinden zich een openbare basisschool, een recreatie(sport)hal, voetbalclub, dorpshuis, een rijk verenigingsleven en een in 2008 aangelegd wandelgebied. Zuidlaarderveen heeft een gunstige ligging t.o.v. Zuidlaren (5 autominuten) en Hoogezand (10 min.).
Kenmerken
Overdracht
- Laatste vraagprijs
- € 375.000 kosten koper
- Vraagprijs per m²
- € 3.827
- Status
- Verkocht
Bouw
- Soort woonhuis
- Eengezinswoning, vrijstaande woning
- Soort bouw
- Bestaande bouw
- Bouwjaar
- 1969
- Soort dak
- Zadeldak bedekt met pannen
Oppervlakten en inhoud
- Gebruiksoppervlakten
- Wonen
- 98 m²
- Overige inpandige ruimte
- 20 m²
- Externe bergruimte
- 51 m²
- Perceel
- 1.448 m²
- Inhoud
- 438 m³
Indeling
- Aantal kamers
- 4 kamers (3 slaapkamers)
- Aantal badkamers
- 1 badkamer en 1 apart toilet
- Badkamervoorzieningen
- Inloopdouche en wastafel
- Aantal woonlagen
- 2 woonlagen
- Voorzieningen
- Buitenzonwering
Energie
- Energielabel
- Isolatie
- Dubbel glas en muurisolatie
- Verwarming
- Cv-ketel
- Warm water
- Cv-ketel
- Cv-ketel
- Intergas (gas gestookt combiketel uit 2016, eigendom)
Kadastrale gegevens
- ZUIDLAREN C 1942
- Kadastrale kaart
- Oppervlakte
- 568 m²
- Eigendomssituatie
- Volle eigendom
- ZUIDLAREN C 2029
- Kadastrale kaart
- Oppervlakte
- 880 m²
- Eigendomssituatie
- Volle eigendom
Buitenruimte
- Ligging
- Landelijk gelegen en vrij uitzicht
- Tuin
- Achtertuin, voortuin en zijtuin
- Achtertuin
- 1.040 m² (65,00 meter diep en 16,00 meter breed)
- Ligging tuin
- Gelegen op het westen
Bergruimte
- Schuur/berging
- Vrijstaande stenen berging
- Voorzieningen
- Vliering
Garage
- Soort garage
- Aangebouwde stenen garage
- Capaciteit
- 1 auto
- Voorzieningen
- Elektrische deur, elektra en stromend water
Parkeergelegenheid
- Soort parkeergelegenheid
- Op eigen terrein en openbaar parkeren
Foto's 45
© 2001-2026 funda












































