Dit huis op Funda: https://www.funda.nl/detail/koop/zuidland/huis-dorpsstraat-22/89471876/

Dorpsstraat 223214 AG ZuidlandKern Zuidland
€ 365.000 k.k.
Omschrijving
Bent u op zoek naar een unieke woning met karakter, ruimte en een centrale ligging? Dit voormalig woon-winkelpand met een comfortabele oppervlakte van 125 m2 ligt in het hart van Zuidland.
Dit charmante pand is jarenlang in gebruik geweest als twee afzonderlijke adressen – nummer 22 op de begane grond en nummer 24 als bovenwoning. Inmiddels is het samengevoegd tot één ruim pand, waarbij zowel de indeling als het volume vele mogelijkheden biedt. Denk aan dubbele bewoning, kantoor aan huis, praktijkruimte, of een gezinswoning met extra leefruimte.
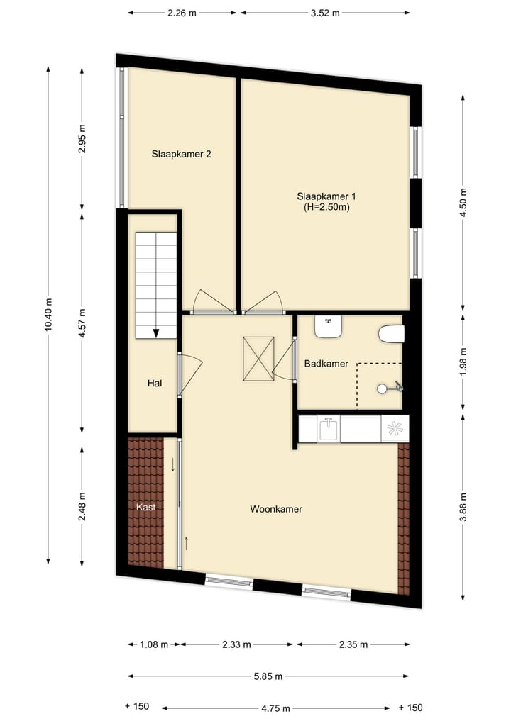
Indeling;
Bij binnenkomst in het pand komt u in de lichte voormalig winkelruimte, aan de achterzijde een royale keuken met trapopgang naar de eerste verdieping en afzonderlijke veelzijdig tweede vertrek.
Eerste verdieping;
Gesloten trapopgang met toegang tot de woonkamer aan de straatzijde met open keuken, voorzien van keukenblok in rechte opstelling en lichte kleurstelling. Inpandige badkamer, volledig betegeld met douchecabine, toilet en wastafel.
Twee ruime slaapkamers en de dakkapel aan weerszijde van de kap zorgt voor veel ruimte en een prettige lichtinval.
Bergvliering;
Praktische bergruimte over 2/3 van het pand, bereikbaar middels een vlizotrap.
Bijzonderheden:
- Dubbele bewoning mogelijk
- Karakteristiek pand
- Dak vernieuwd in 2015
- Gevel volledig gerenoveerd in 1990
- Goed geïsoleerd!
Kenmerken
Overdracht
- Aangeboden sinds
- Aanvaarding
- In overleg
- Vraagprijs
- € 365.000 kosten koper
- Vraagprijs per m²
- € 2.920
- Status
- Beschikbaar
Bouw
- Soort woonhuis
- Eengezinswoning, geschakelde woning (bedrijfs- of dienstwoning)
- Soort bouw
- Bestaande bouw
- Bouwjaar
- 1750
- Specifiek
- Gedeeltelijk gestoffeerd
- Soort dak
- Zadeldak bedekt met pannen
Oppervlakten en inhoud
- Gebruiksoppervlakten
- Wonen
- 125 m²
- Perceel
- 98 m²
- Inhoud
- 479 m³
Indeling
- Aantal kamers
- 3 kamers
- Aantal woonlagen
- 1 woonlaag
- Voorzieningen
- Natuurlijke ventilatie
Energie
- Energielabel
- Niet beschikbaar
- Verwarming
- Cv-ketel
- Warm water
- Cv-ketel
- Cv-ketel
- Gas gestookt combiketel
Kadastrale gegevens
- ZUIDLAND B 2347
- Kadastrale kaart
- Oppervlakte
- 98 m²
- Eigendomssituatie
- Volle eigendom
Buitenruimte
- Ligging
- In centrum
Bergruimte
- Schuur/berging
- Inpandig
Parkeergelegenheid
- Soort parkeergelegenheid
- Openbaar parkeren
Foto's 13
Plattegronden 3
© 2001-2025 funda















