Dit huis op Funda: https://www.funda.nl/detail/koop/zutphen/appartement-zwaanpark-143/43957551/

Omschrijving
Prachtig wonen in PRACHT; een stijlvol appartementengebouw aan de oever van de IJssel waar rust, ruimte en uitzicht voor een geweldige woonbeleving zorgen. Er zijn drie appartementengebouwen gerealiseerd, waarbij u de kans krijgt om de eerste bewoner te worden van dit gasloze energiezuinige driekamerappartement (A+++) in het meest noordelijke gebouw met een fraai, royaal balkon en adembenemend uitzicht vanaf de vijfde verdieping. U kijkt uit over de IJssel, de Houthaven en het prachtige landschap richting Voorst, Gorssel en Bussloo.
Noorderhaven is een fantastische, nieuw ontwikkelde buurt in Zutphen met een eigen jachthaven die in verbinding staat met de IJssel. De historische panden ‘Het Koelhuis’, ‘Het Pakhuis’ en ‘Zutphense Broodfabriek’ in de wijk Noorderhaven hebben een nieuw leven gekregen. Verder woont u op loopafstand van het treinstation en de binnenstad van Zutphen met vele winkels, speciaalzaken, restaurants en uitgaansgelegenheden.
Indeling:
Appartementengebouw:
De entree van het gebouw is fraai, met een overkapping en ronde vormen bij de gemetselde buitengevels. Aan de buitenzijde zijn de brievenbussen, het bellentableau en de video-intercom. Vanuit de centrale hal kunt u de parkeerkelder, de bergingen en de bovengelegen woonetages bereiken. Dit appartement, type D, is gesitueerd op de vijfde verdieping.
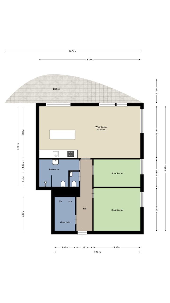
Appartement:
Vlak naast de lift is de entree van dit fraaie, splinternieuwe appartement. De royale, lange hal biedt toegang tot alle ruimtes, waaronder de woonkamer met open keuken. Met een oppervlakte van circa 45 m2 heeft u de beschikking over een aangename leefruimte, met grote ramen tot vloerhoogte en een schuifpui naar het terras. Hier geniet u volop van het uitzicht, bij het zit- en het eetgedeelte, en de lichtinval.
Er is een moderne, luxe keuken geplaatst met een groot eiland en een lange wandopstelling, dat ruimte biedt aan het kook- en het spoelgedeelte. De keuken biedt veel bergruimte en de inductie kookplaat, afzuigkap, vaatwasser, Quooker, combi-oven en koel-/vriescombinatie zijn ingebouwd. De apparatuur is van Siemens, met uitzondering van de heetwaterkraan.
Dit fantastische appartement heeft twee slaapkamers aan de oostkant van het gebouw. Ook hier zorgen ramen tot vloerhoogte voor een uitstekende verbinding met de omgeving en uitzicht over een deel van Noorderhaven en de vele torens in de stad. Aan de andere kant van de hal zijn de toiletruimte met fonteintje, de inpandige berging en badkamer. In de berging is de opstelling van de technische installaties en is onder andere ruimte voor de wasapparatuur. De badkamer is heel ruimtelijk ingedeeld met een inloopdouche, tweede toilet en een wastafelmeubel met spiegelkast.
Terras:
Vanuit de woonkamer is het fantastische terras te bereiken, waar een 180 graden zicht van ongekende schoonheid zich ontvouwt. U ziet een deel van de stad, de IJssel, de havens met pleziervaart en het groene landschap rondom Zutphen. Hier is wonen genieten… iedere dag!
Bijzonderheden:
- Betreft bouwnummer 72 (type D) in gebouw 3 van PRACHT;
- Vaste parkeerplek in de parkeerkelder (voorbereid voor laden elektrische auto);
- Duurzaam energiesysteem (gasloos) door middel van een warmtepomp (in eigendom);
- Prettig woonklimaat gedurende het hele jaar dankzij vloerverwarming en -koeling;
- Inclusief een luxe keuken, badkamer en toiletruimte;
- VvE bijdrage € 202,-- per maand;
- Energielabel A+++
Kenmerken
Overdracht
- Laatste vraagprijs
- € 625.000 kosten koper
- Vraagprijs per m²
- € 6.250
- Status
- Verkocht
- Bijdrage VvE
- € 202,00 per maand
Bouw
- Soort appartement
- Portiekflat (appartement)
- Soort bouw
- Nieuwbouw
- Bouwjaar
- 2024
- Soort dak
- Plat dak
- Keurmerken
- SWK Garantiecertificaat
- Toegankelijkheid
- Toegankelijk voor mensen met een beperking en toegankelijk voor ouderen
Oppervlakten en inhoud
- Gebruiksoppervlakten
- Wonen
- 100 m²
- Gebouwgebonden buitenruimte
- 18 m²
- Externe bergruimte
- 5 m²
- Inhoud
- 260 m³
Indeling
- Aantal kamers
- 3 kamers (2 slaapkamers)
- Aantal badkamers
- 1 apart toilet
- Aantal woonlagen
- 8 woonlagen
- Voorzieningen
- Balansventilatie, glasvezelkabel, lift, en schuifpui
- Gelegen op
- 5e woonlaag
Energie
- Energielabel
- A+++
- Isolatie
- Volledig geïsoleerd
- Verwarming
- Gehele vloerverwarming, warmte terugwininstallatie en warmtepomp
- Warm water
- Elektrische boiler
Kadastrale gegevens
- ZUTPHEN K 2088
- Kadastrale kaart
- Eigendomssituatie
- Volle eigendom
Buitenruimte
- Ligging
- Aan park, aan rustige weg, aan vaarwater, aan water, in bosrijke omgeving, in centrum en vrij uitzicht
- Balkon/dakterras
- Balkon aanwezig
Bergruimte
- Schuur/berging
- Inpandig
- Voorzieningen
- Elektra
Garage
- Soort garage
- Parkeerkelder en parkeerplaats
Parkeergelegenheid
- Soort parkeergelegenheid
- Parkeergarage
VvE checklist
- Inschrijving KvK
- Ja
- Jaarlijkse vergadering
- Ja
- Periodieke bijdrage
- Ja (€ 202,00 per maand)
- Reservefonds aanwezig
- Ja
- Onderhoudsplan
- Ja
- Opstalverzekering
- Ja
Foto's 45
© 2001-2025 funda












































