
Omschrijving
Goed onderhouden hoekwoning met vrijstaande stenen garage en veranda nabij historische binnenstad van Zutphen.
Bent u op zoek naar een sfeervolle, goed onderhouden hoekwoning met moderne voorzieningen en een ideale ligging? Deze prachtige woning aan de Paulus Potterstraat biedt alles wat u zoekt! Gelegen op loopafstand van de historische binnenstad van Zutphen, nabij scholen, winkels en openbaar vervoer, is dit de perfecte plek om thuis te komen.
Indeling van de woning
Begane grond:
Entree/hal met trapkast voorzien van een wasmachine-aansluiting. Moderne toiletruimte met hangcloset. L-vormige woonkamer met een tuindeur naar de veranda.
Uitgebouwde keuken met tuindeur naar de veranda, voorzien van een natuurstenen werkblad, inductiekookplaat, combi-oven, vaatwasser en een vrijstaande Amerikaanse koel-/vriescombinatie.
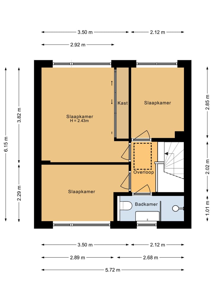
Eerste verdieping:
Overloop. Drie slaapkamers, waarvan één met een vaste kastenwand met schuifdeuren. Fraaie, moderne badkamer met inloopdouche, wastafelmeubel en hangcloset.
Tweede verdieping:
Via een vlizotrap bereikbare vliering, ideaal voor extra opslagruimte.
Waarom deze woning bijzonder is:
Uitgebouwde keuken en veranda: De woning beschikt over een moderne aangebouwde keuken in hoekopstelling met natuurstenen werkblad, uitgerust met hoogwaardige inbouwapparatuur zoals een inductiekookplaat, combi-oven en vaatwasser. Via de keuken en de L-vormige woonkamer bereikt u de sfeervolle veranda, ideaal om te ontspannen.
Vrijstaande stenen garage: Perfect voor uw auto, opslag of hobby's, er is voldoende parkeergelegenheid voor 2 auto's op eigen terrein.
Comfort en isolatie: De woning is goed geïsoleerd en voorzien van airconditioning voor een optimaal binnenklimaat.
Gezellige, besloten tuin: Geniet van uw privacy in de onderhoudsvriendelijke tuin met diverse zitjes en een praktische achterom.
Toekomstige vergroening: In het voorjaar van 2025 wordt de Paulus Potterstraat heringericht met meer groen, wat de buurt nog aantrekkelijker maakt.
Kortom:
Uw nieuwe thuis in een rustige, groene omgeving.
Met de herinrichting van de Paulus Potterstraat in het vooruitzicht, geniet u binnenkort van een groenere, kindvriendelijke omgeving. Combineer dit met de nabijheid van de historische binnenstad en uitstekende voorzieningen, en u heeft de perfecte balans tussen rust en reuring.
Maak snel een afspraak voor een bezichtiging en ontdek zelf waarom deze woning uw ideale thuis is!
Aan deze objectinformatie kunnen geen rechten worden ontleend en deze informatie kan niet als aanbieding of offerte worden beschouwd. Indien u een aanbieding wenst, kan de makelaar deze, na goedkeuring door de opdrachtgever, op basis van specifieke gegevens verzorgen.
Kenmerken
Overdracht
- Laatste vraagprijs
- € 335.000 kosten koper
- Vraagprijs per m²
- € 4.408
- Status
- Verkocht
Bouw
- Soort woonhuis
- Eengezinswoning, hoekwoning
- Soort bouw
- Bestaande bouw
- Bouwjaar
- 1960
- Soort dak
- Dwarskap bedekt met pannen
Oppervlakten en inhoud
- Gebruiksoppervlakten
- Wonen
- 76 m²
- Gebouwgebonden buitenruimte
- 8 m²
- Externe bergruimte
- 18 m²
- Perceel
- 214 m²
- Inhoud
- 311 m³
Indeling
- Aantal kamers
- 4 kamers (3 slaapkamers)
- Aantal badkamers
- 1 badkamer en 1 apart toilet
- Badkamervoorzieningen
- Inloopdouche, toilet, en wastafelmeubel
- Aantal woonlagen
- 2 woonlagen en een zolder
- Voorzieningen
- Airconditioning, buitenzonwering, dakraam, glasvezelkabel, mechanische ventilatie, en natuurlijke ventilatie
Energie
- Energielabel
- Isolatie
- Gedeeltelijk dubbel glas, HR-glas, muurisolatie en vloerisolatie
- Verwarming
- Cv-ketel
- Warm water
- Cv-ketel
- Cv-ketel
- HR (gas gestookt combiketel uit 2009, eigendom)
Kadastrale gegevens
- ZUTPHEN C 2235
- Kadastrale kaart
- Oppervlakte
- 214 m²
- Eigendomssituatie
- Volle eigendom
Buitenruimte
- Ligging
- In woonwijk
- Tuin
- Achtertuin, voortuin en zijtuin
- Achtertuin
- 104 m² (11,58 meter diep en 8,98 meter breed)
- Ligging tuin
- Gelegen op het noorden bereikbaar via achterom
Garage
- Soort garage
- Vrijstaande stenen garage
- Capaciteit
- 1 auto
- Voorzieningen
- Elektra
- Isolatie
- Geen isolatie
Parkeergelegenheid
- Soort parkeergelegenheid
- Op eigen terrein en openbaar parkeren
Foto's 28
© 2001-2026 funda



























