Dit huis op Funda: https://www.funda.nl/detail/koop/zwaag/huis-dijkgraaf-167/43198442/

Omschrijving
Wat een ruimte, wat een licht, wat een heerlijke plek!
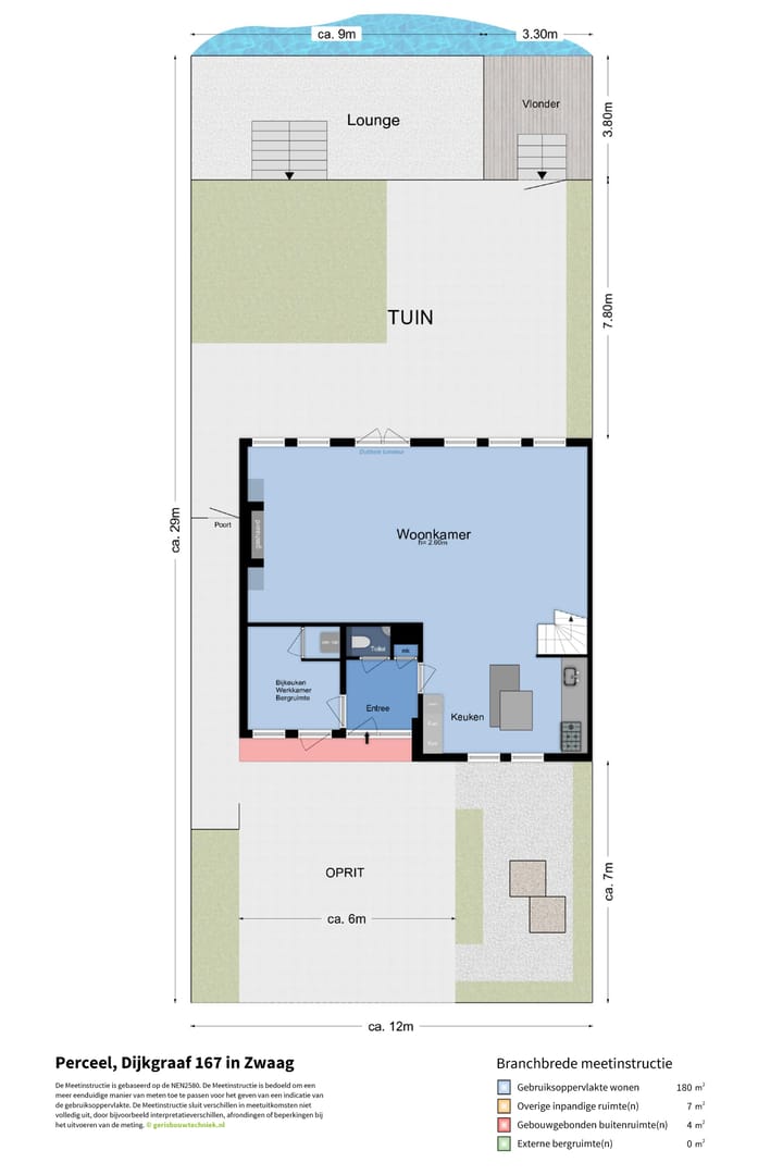
Welkom aan Dijkgraaf 167 in Zwaag – een verrassend ruime half vrijstaande woning met een woonoppervlakte van maar liefst 180 m², een zonnige tuin aan het vaarwater en volop wooncomfort. Met 4 slaapkamers, een royale tuingerichte woonkamer, een keuken met eiland én openslaande tuindeuren is dit echt een huis om verliefd op te worden.
Wat kun je verwachten:
- tuingerichte woonkamer met eiken vloer, openslaande tuindeuren en sfeervolle gashaard;
- moderne keuken met kookeiland, bar, natuurstenen blad en gewrapte frontjes voor een frisse uitstraling;
- praktische bijkeuken/berging voor o.a. de wasmachine en de droger;
- 4 slaapkamers met mogelijkheid tot uitbreiding of aanpassing;
- een fijne badkamer met ligbad, douchecabine, toilet en wastafelmeubel;
- tweede verdieping met voorzolder, dakramen en volop licht;
- cv-ketel uit 2024 (Intergas) en balansventilatie;
- energielabel A;
- heerlijke tuin op het westen aan vaarwater met sierbestrating, borders, walbeschoeiing en eigen achterom;
- parkeren voor de deur of in de straat is geen probleem!
De begane grond is ruim opgezet met een gezellige, lichte woonkamer die dankzij de openslaande tuindeuren perfect in verbinding staat met de fraai aangelegde achtertuin. De keuken is slim gemoderniseerd, heeft een stoer kookeiland, bar en volop werk- en opbergruimte. Handig: de bijkeuken biedt plek voor extra apparatuur en voorraad.
Op de eerste verdieping tref je drie ruime slaapkamers waarvan één met handige inbouwkast. Daarnaast is er een verzorgde badkamer in neutrale tinten met ligbad, aparte douche, wastafelmeubel en toilet. Aan de achterzijde is een extra kamer gecreëerd – ideaal als inloopkast, werkkamer of kinderkamer.
De tweede verdieping is verrassend ruim en licht dankzij de Velux dakramen. De voorzolder en beide slaapkamers zijn netjes afgewerkt. De technische installaties zijn modern en duurzaam, met onder andere een nieuwe cv-ketel en balansventilatie.
De tuin op het westen is een pareltje: volop zon, mooi aangelegd met borders, beplanting, sierbestrating en gelegen aan (vaar)water. Hier geniet je van lange zomeravonden met zicht op de ondergaande zon.
Nieuwsgierig geworden? Bel ons op 0229 27 96 97 voor een bezichtiging. We laten je dit fijne huis graag zien!
De richtprijs is € 649.500,- k.k. Neem gerust contact op voor meer informatie.
Heb je behoefte aan een professional die je adviseert? Schakel dan je eigen NVM-aankoopmakelaar in. Jouw NVM-aankoopmakelaar komt op voor jouw belang en bespaart je tijd, geld en zorgen. Adressen van collega NVM-aankoopmakelaars vind je op Funda.
Kenmerken
Overdracht
- Laatste vraagprijs
- € 649.500 kosten koper
- Vraagprijs per m²
- € 3.608
- Status
- Verkocht
Bouw
- Soort woonhuis
- Eengezinswoning, halfvrijstaande woning
- Soort bouw
- Bestaande bouw
- Bouwjaar
- 2007
- Soort dak
- Zadeldak bedekt met pannen
Oppervlakten en inhoud
- Gebruiksoppervlakten
- Wonen
- 180 m²
- Overige inpandige ruimte
- 7 m²
- Gebouwgebonden buitenruimte
- 4 m²
- Perceel
- 355 m²
- Inhoud
- 676 m³
Indeling
- Aantal kamers
- 6 kamers (5 slaapkamers)
- Aantal badkamers
- 1 badkamer en 2 aparte toiletten
- Badkamervoorzieningen
- Douche, ligbad, toilet, en wastafelmeubel
- Aantal woonlagen
- 3 woonlagen
- Voorzieningen
- Dakraam, glasvezelkabel, mechanische ventilatie, rookkanaal, en TV kabel
Energie
- Energielabel
- A
- Isolatie
- Dakisolatie, dubbel glas, muurisolatie en vloerisolatie
- Verwarming
- Cv-ketel
- Warm water
- Cv-ketel
- Cv-ketel
- Hr combi (gas gestookt combiketel uit 2024, eigendom)
Kadastrale gegevens
- HOORN I 10005
- Kadastrale kaart
- Oppervlakte
- 355 m²
- Eigendomssituatie
- Volle eigendom
Buitenruimte
- Ligging
- Aan rustige weg, aan vaarwater, beschutte ligging en in woonwijk
- Tuin
- Achtertuin, voortuin en zijtuin
- Achtertuin
- 132 m² (11,00 meter diep en 12,00 meter breed)
- Ligging tuin
- Gelegen op het westen bereikbaar via achterom
Parkeergelegenheid
- Soort parkeergelegenheid
- Op eigen terrein en openbaar parkeren
Foto's 48
© 2001-2025 funda















































