Dit huis op Funda: https://www.funda.nl/detail/koop/zwaag/huis-wierdijk-55/43985619/

Omschrijving
Comfortabel wonen in het gezellige Bangert en Oosterpolder? Lees dan vooral even verder....
want aan de Wierdijk 55 in Zwaag tref je een heerlijk huis (type hoekwoning) in een rustige, groene wijk met alle voorzieningen binnen handbereik. En het mooiste? Binnen 10 minuten fiets je zo het bruisende centrum van Hoorn in!
Parkeren? Dat doe je gewoon voor de deur. Lekker makkelijk!
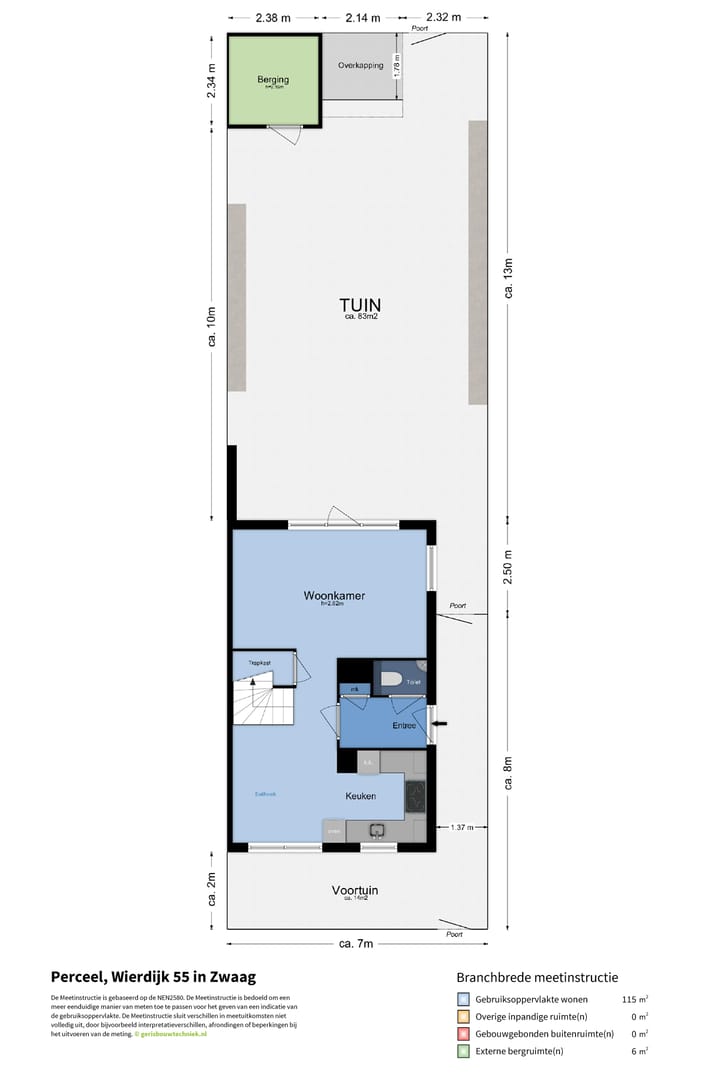
Ook al zo leuk, in de voortuin kun je heerlijk in privacy genieten van het zonnetje dankzij een leuk zitje/terrasje!
We nemen je graag mee in deze moderne en goed onderhouden woning waar het zorgeloos wonen is.
Binnen voelt het meteen als thuis! De lichte woonkamer, de moderne keuken en de fijne (riante) tuin maken dit een plek waar je heerlijk kunt ontspannen. Klinkt dat als jouw droomwoning? Lees dan snel verder...
Hoogtepunten van deze woning:
- Bouwjaar 2008, relatief jong en goed onderhouden;
- 14 zonnepanelen en energielabel A++, lage energiekosten!
- Tuingerichte woonkamer, plavuizen vloer, loopdeur naar de tuin;
- Ruime trapkast;
- Moderne keuken met inductiekookplaat (2024), Quooker, vaatwasser (2022), heteluchtoven (2022) en
koel/vriescombinatie;
- Badkamer met ligbad en douche, compact en zeer compleet;
- Erg praktisch een separaat 2e toilet op de eerste verdieping;
- 5 slaap-/werk-/hobbykamers, inclusief handige kastwanden en laminaatvloeren;
- Zolder met bergzolder en vlizotrap, genoeg opbergruimte dus!
- Ruime tuin inclusief houten berging en dubbele achterom;
- Horren in de woonkamer en in alle slaap-/werk-/hobbykamers, handig voor frisse lucht zonder insecten;
- De gehele 1e en 2e verdieping zijn in 2023 voorzien van elektrische bedienbare rolluiken;
- De palen voor een eventuele aanbouw zijn reeds geslagen;
- Het buitenwerk is in 2023 volledig opnieuw geschilderd;
- Het dak van de berging is in 2024 vervangen.
Hier woon je niet alleen comfortabel, maar ook in een fijne, levendige buurt met volop speelgelegenheid, scholen en winkels om de hoek. Een heerlijke plek voor jong en oud!
Zie jij jezelf hier al helemaal settelen? Dat begrijpen we! Kom het zelf ervaren en plan een bezichtiging via 0229 27 96 97. We laten je deze fijne woning graag zien. De bieden vanaf prijs is € 395.000,- k.k. en de oplevering is in overleg.
Heb je behoefte aan een professional die je adviseert? Schakel dan je eigen NVM-aankoopmakelaar in. Jouw NVM-aankoopmakelaar komt op voor jouw belang en bespaart je tijd, geld en zorgen. Adressen van collega NVM-aankoopmakelaars vind je op Funda.
Kenmerken
Overdracht
- Laatste vraagprijs
- € 395.000 kosten koper
- Vraagprijs per m²
- € 3.435
- Status
- Verkocht
Bouw
- Soort woonhuis
- Eengezinswoning, hoekwoning
- Soort bouw
- Bestaande bouw
- Bouwjaar
- 2008
- Soort dak
- Zadeldak bedekt met pannen
Oppervlakten en inhoud
- Gebruiksoppervlakten
- Wonen
- 115 m²
- Externe bergruimte
- 6 m²
- Perceel
- 176 m²
- Inhoud
- 409 m³
Indeling
- Aantal kamers
- 6 kamers (5 slaapkamers)
- Aantal badkamers
- 1 badkamer en 2 aparte toiletten
- Badkamervoorzieningen
- Douche, ligbad, en wastafelmeubel
- Aantal woonlagen
- 3 woonlagen
- Voorzieningen
- Glasvezelkabel, mechanische ventilatie, en TV kabel
Energie
- Energielabel
- Isolatie
- Dakisolatie, dubbel glas, muurisolatie en vloerisolatie
- Verwarming
- Cv-ketel en heteluchtverwarming
- Warm water
- Cv-ketel
- Cv-ketel
- Hr combi (gas gestookt uit 2008, eigendom)
Kadastrale gegevens
- HOORN I 10577
- Kadastrale kaart
- Oppervlakte
- 176 m²
- Eigendomssituatie
- Volle eigendom
Buitenruimte
- Ligging
- Aan rustige weg en in woonwijk
- Tuin
- Achtertuin, voortuin en zijtuin
- Achtertuin
- 89 m² (13,00 meter diep en 6,84 meter breed)
- Ligging tuin
- Gelegen op het oosten bereikbaar via achterom
Bergruimte
- Schuur/berging
- Vrijstaande houten berging
- Voorzieningen
- Elektra
Parkeergelegenheid
- Soort parkeergelegenheid
- Openbaar parkeren
Foto's 35
© 2001-2026 funda


































