Dit huis op Funda: https://www.funda.nl/detail/koop/zwanenburg/huis-lindenlaan-72-a/43183913/

Lindenlaan 72-A1161 VL ZwanenburgZwanenburg Noordwest
€ 619.000 k.k.
Blikvanger"Instapklare luxe hoekwoning met tuin en 2 parkeerplaatsen!"
Omschrijving
--- English translation below---
Midden in het oude centrum, op de plek van een oude appelboomgaard, is in 2017 een kleinschalig nieuwbouwhofje gerealiseerd met privé parkeerterrein. Op deze toplocatie komt nu een supergave hoekwoning met ruime tuin op het zuidwesten beschikbaar! Vanaf 2022 is er nog eens uitgebreid verbouwd en is ook de indeling aangepast. Ben je op zoek naar een bijzonder smaakvolle, eigentijdse, tot in de puntjes afgewerkte, volledig instapklare woning met onder meer een grote woonkamer + keuken (met gietvloer + vloerverwarming), grote masterbedroom, tweede slaapkamer, twee privé parkeerplaatsen, energielabel A, airco’s, kunststof kozijnen en zonnepanelen? Dan zien we je graag hier op de Lindenlaan!
Indeling:
Begane grond: voortuin met berging, entree, hal met meterkast, toilet met fonteintje, woonkamer met openslaande deuren naar de tuin en open keuken aan voorzijde.
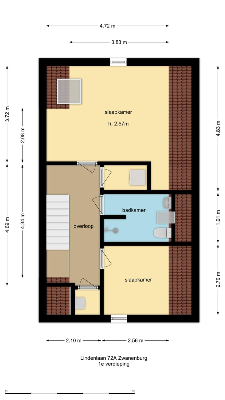
Eerste verdieping: overloop met luik naar grote bergvliering, slaapkamer aan voorzijde, masterbedroom aan achterzijde, badkamer, wasruimte met aansluiting wasmachine/-droger, stookruimte met opstelling cv-ketel, unit mechanische ventilatie + unit zonnepanelen.
Bijzonderheden:
• Kleinschalig nieuwbouwproject “In de Boomgaard” (2017) gelegen in het oude centrum van Zwanenburg;
• Hoekwoning met circa 95 m² woonoppervlakte;
• Vanaf 2022 grotendeels verbouwd en opnieuw ingedeeld;
• Tot in de puntjes afgewerkt, luxe en eigentijds;
• Gehele woning glad stucwerk;
• Begane grond gietvloer + vloerverwarming;
• Grote woonkamer met “GewoonGers” deur, openslaande deuren naar de tuin en open keuken aan voorzijde;
• Grote open keuken voorzien van inbouwapparatuur waaronder: Bora (inductiekookplaat met afzuigsysteem), combi oven, vaatwasser en heetwaterkraan;
• Badkamer met inloopdouche, wastafelmeubel, toilet en elektrische radiator;
• Perceeloppervlakte 149 m² eigen grond;
• Voortuin met grote berging, voorzien van elektra;
• Ruime en zongerichte achtertuin op het zuidwesten met deur naar het parkeerterrein;
• Twee genummerde privé parkeerplaatsen op eigen terrein (dit terrein is gezamenlijk eigendom van alle eigenaren; aan de Vereniging van Eigenaren wordt een maandelijkse bijdrage van € 25,= betaald);
• Grote bergvliering;
• Verwarming en warmwatervoorziening geschiedt middels een “Atag” cv-ketel (2016);
• Zonnepanelen (6 stuks);
• Airco’s;
• Energielabel A;
• Kunststof kozijnen (op de bovenverdieping met screens);
• Elektrisch bedienbaar zonnescherm;
• Centraal gelegen in het oude centrum, vlakbij het winkelcentrum van Zwanenburg met een ruim winkelaanbod en gezellige horecagelegenheden, speeltuin, park, school, openbaar vervoervoorzieningen waaronder NS-station Halfweg-Zwanenburg, buslijn 161 (Zwanenburg-Halfweg-Hoofddorp) en buslijn 80 (Zandvoort-Haarlem-Halfweg-Amsterdam centrum), “Sugarcity” met Outlets “The Style”, recreatiegebied “Spaarnwoude” en uitvalswegen richting Schiphol, Amsterdam en Haarlem.
---English translation---
In the heart of the old town, on the site of an old apple orchard, a small, newly built courtyard with private parking was created in 2017. A fantastic corner house with a spacious southwest-facing garden is now available in this prime location! Extensive renovations will be completed in 2022, and the layout will also be updated. Are you looking for a remarkably tasteful, contemporary, meticulously finished, and fully move-in ready home featuring a large living room and kitchen (with cast flooring and underfloor heating), a large master bedroom, a second bedroom, two private parking spaces, energy label A, air conditioning, uPVC window frames, and solar panels? Then we look forward to seeing you here at Lindenlaan!
Layout:
Ground floor: front garden with storage shed, entrance, hallway with meter cupboard, toilet with hand basin, living room with French doors to the garden, and an open-plan kitchen at the front.
First floor: landing with hatch to large attic storage, bedroom at the front, master bedroom at the rear, bathroom, laundry room with washer/dryer connections, boiler room with central heating boiler, mechanical ventilation unit, and solar panel unit.
Details:
• Small-scale new-build project "In de Boomgaard" (2017) located in the historic center of Zwanenburg;
• Corner house with approximately 95 m² of living space;
• Largely renovated and redesigned from 2022 onwards;
• Finished to perfection, luxurious, and contemporary;
• Smooth plasterwork throughout the house;
• Ground floor with cast flooring and underfloor heating;
• Large living room with "GewoonGers" door, French doors leading to the garden, and an open-plan kitchen at the front;
• Large open-plan kitchen equipped with built-in appliances, including: Bora (induction cooktop with extractor fan), combination oven, dishwasher, and hot water tap;
• Bathroom with walk-in shower, vanity, toilet, and electric radiator;
• Plot size: 149 m² freehold;
• Front garden with a large shed, equipped with electricity;
• Spacious, sunny southwest-facing backyard with a door to the parking lot;
• Two numbered private parking spaces on the property (this property is jointly owned by all owners; a monthly fee of €25 is paid to the Homeowners' Association);
• Large attic storage space;
• Heating and hot water are provided by an "Atag" central heating boiler (2016);
• Six solar panels;
• Air conditioning units;
• Energy label A;
• Plastic window frames (with screens on the upper floor);
• Electrically operated awning;
• Centrally located in the historic city center, near the Zwanenburg shopping center with a wide range of shops and cozy restaurants, a playground, park, school, public transport facilities including the Halfweg-Zwanenburg train station, bus line 161 (Zwanenburg-Halfweg-Hoofddorp) and bus line 80 (Zandvoort-Haarlem-Halfweg-Amsterdam city center), "Sugarcity" with "The Style" outlets, the "Spaarnwoude" recreation area, and arterial roads to Schiphol Airport, Amsterdam, and Haarlem.
Kenmerken
Overdracht
- Aangeboden sinds
- Aanvaarding
- In overleg
- Vraagprijs
- € 619.000 kosten koper
- Vraagprijs per m²
- € 6.516
- Status
- Beschikbaar
Bouw
- Soort woonhuis
- Eengezinswoning, hoekwoning
- Soort bouw
- Bestaande bouw
- Bouwperiode
- 2011-2020
- Soort dak
- Zadeldak bedekt met pannen
Oppervlakten en inhoud
- Gebruiksoppervlakten
- Wonen
- 95 m²
- Externe bergruimte
- 5 m²
- Perceel
- 149 m²
- Inhoud
- 362 m³
Indeling
- Aantal kamers
- 3 kamers (2 slaapkamers)
- Aantal badkamers
- 1 badkamer en 1 apart toilet
- Badkamervoorzieningen
- Inloopdouche, toilet, en wastafelmeubel
- Aantal woonlagen
- 2 woonlagen
- Voorzieningen
- Airconditioning, buitenzonwering, glasvezelkabel, mechanische ventilatie, en TV kabel
Energie
- Energielabel
- A
- Isolatie
- Dubbel glas en volledig geïsoleerd
- Verwarming
- Cv-ketel
- Warm water
- Cv-ketel
- Cv-ketel
- Atag (gas gestookt combiketel uit 2017, eigendom)
Kadastrale gegevens
- HAARLEMMERMEER A 10947
- Kadastrale kaart
- Oppervlakte
- 149 m²
- Eigendomssituatie
- Volle eigendom
- HAARLEMMERMEER A 10952
- Kadastrale kaart
- Eigendomssituatie
- Zie akte
- HAARLEMMERMEER A 10952
- Kadastrale kaart
- Eigendomssituatie
- Zie akte
Buitenruimte
- Ligging
- In woonwijk en vrij uitzicht
- Tuin
- Achtertuin, voortuin en zijtuin
- Achtertuin
- 60 m² (9,00 meter diep en 6,70 meter breed)
- Ligging tuin
- Gelegen op het zuidwesten
Bergruimte
- Schuur/berging
- Vrijstaande houten berging
Parkeergelegenheid
- Soort parkeergelegenheid
- Openbaar parkeren
Foto's 36
Plattegronden 4
© 2001-2025 funda







































