
Omschrijving
Wonen aan de rivier de Oude Maas in een royaal HOEK-appartement van 120 m2 met een uniek groot DAKTERRAS van 45 m2!
APPARTEMENT:
Dit mooie appartement is gelegen op de 4e woonlaag in een keurig verzorgd appartementencomplex met lift aan rivier de Oude Maas in de wijk Westkeethaven. Niet alleen het uitzicht op rivier met de drukke scheepvaart is fantastisch, maar ook het riante dakterras van 45 m2 aan de zonzijde en rivierzicht is uniek te noemen. Bovendien beschikt het appartement over een afgesloten privé berging en een overdekte privé parkeerplaats.
LOCATIE:
Vanuit dit ruime appartement van 120 m2 heeft u vanaf de 4e woonlaag een prachtig uitzicht op de rivier en Dordrecht. Gesitueerd in een luxe appartementencomplex uit 2003 in de wijk Westkeethaven. Een droom appartement op een droom locatie. Zo mag je dit appartement zeker beschrijven. Zowel vanuit de zitkamer als ook vanuit de eetkamer met de aangrenzende serre-/loggia en het unieke dakterras van 45 m2 heeft u een prachtig zich op de rivier met de levendige scheepvaart. Maar ook het zicht op de fraaie monumentale herenhuizen en de grote kerk van Dordrecht mag genoemd worden. Op loopafstand bevinden zich de gezellige restaurantjes bij het Veerplein. Maar ook nabij zijn gelegen; winkelcentrum Walburg, het NS station, waterbus naar Dordrecht/Papendrecht en uitvalswegen.
PRIVE PARKEERPLAATS:
Onder het appartementencomplex is een ruime parkeergarage. In deze parkeergarage heeft u uw eigen privé parkeerplaats. Deze parkeerplaats is bij de prijs inbegrepen.
DAKTERRAS:
Normaliter hebben deze appartementen een loggia balkon aan de waterzijde. Dit appartement heeft behalve dit loggia balkon ook een XXL dakterras van 45 m2 aan de zijkant van het gebouw. Dit is de zonnige zijde op het zuidwesten. Vanaf dit dakterras heeft u wederom zicht op de rivier en voldoende ruimte voor ligstoelen en eettafel met meerdere stoelen. Het dakterras is zowel vanuit de woonkamer bereikbaar, maar ook vanuit de masterbedroom toegankelijk.
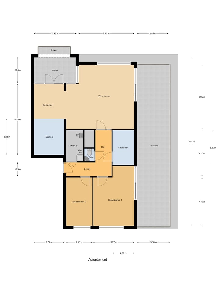
INDELING:
Centrale afgesloten entree met videofoon en lift.
4e Woonlaag:
Op de vierde woonlaag heeft u slechts twee buur appartementen, kleinschalige opzet!
Entree appartement, hal met toiletruimte en was-/cv ruimte.
Riante woonkamer van circa 9,00 x 6,00 met een inpandige loggia/serre. Vanuit de woonkamer en loggia/serre heeft een formidabel uitzicht op de levendige rivier met de vele scheepvaart. Vanaf de 4e woonlaag kijkt u volledig vrij weg op de rivier (over de boten aan de kade heen) en heeft u nog een mooi contact met de begane grond.
De keuken staat in open verbinding met de woonkamer. Voorzien van een L-vorm inbouwkeuken met diverse apparatuur.
1e Slaapkamer:
Ruime hoofdslaapkamer (4,48 x 3,25) met toegang tot het dakterras.
2e Slaapkamer:
De voormalige tweede slaapkamer (4,48 x 2,43) is opgedeeld in een werkkamer en een walk-in closet. Indien gewenst kan de tweede slaapkamer, door verkoper voor de oplevering, weer in originele staat worden teruggebracht.
De badkamer is voorzien van een wastafelmeubel, ligbad en douchecabine.
BiJZONDERHEDEN:
- Loggia/serre aan voorzijde en een groot dakterras van 45 m2 aan de zijkant
- CV combiketel 2014 en WTW (warmte terugwin installatie)
- Airconditioning in de woonkamer
- Privé parkeerplaats in de ondergronds parkeerkelder
- Privé berging (10 m2) en een ruime gemeenschappelijke fietsen berging
- Actieve en gezonde vereniging van eigenaren
- Servicekosten appartement € 248,18 per maand
- Servicekosten parkeerplaats in garage € 29,43 per maand
- Oplevering in overleg
Kenmerken
Overdracht
- Laatste vraagprijs
- € 580.000 kosten koper
- Vraagprijs per m²
- € 4.833
- Status
- Verkocht
- Bijdrage VvE
- € 269,28 per maand
Bouw
- Soort appartement
- Portiekflat
- Soort bouw
- Bestaande bouw
- Bouwjaar
- 2003
- Soort dak
- Plat dak bedekt met bitumineuze dakbedekking
Oppervlakten en inhoud
- Gebruiksoppervlakten
- Wonen
- 120 m²
- Gebouwgebonden buitenruimte
- 57 m²
- Externe bergruimte
- 10 m²
- Inhoud
- 360 m³
Indeling
- Aantal kamers
- 3 kamers (2 slaapkamers)
- Aantal badkamers
- 1 apart toilet
- Aantal woonlagen
- 1 woonlaag
- Voorzieningen
- Airconditioning, buitenzonwering, lift, schuifpui, en TV kabel
- Gelegen op
- 4e woonlaag
Energie
- Energielabel
- Isolatie
- Dakisolatie, dubbel glas, muurisolatie en vloerisolatie
- Verwarming
- Cv-ketel en warmte terugwininstallatie
- Warm water
- Cv-ketel
- Cv-ketel
- Ferroli ( combiketel uit 2014, eigendom)
Kadastrale gegevens
- ZWIJNDRECHT B 6095
- Kadastrale kaart
- Eigendomssituatie
- Volle eigendom
Buitenruimte
- Ligging
- Aan vaarwater en in woonwijk
- Tuin
- Zonneterras
- Zonneterras
- 45 m² (15,00 meter diep en 3,00 meter breed)
- Ligging tuin
- Gelegen op het zuidwesten
- Balkon/dakterras
- Dakterras aanwezig en balkon aanwezig
Bergruimte
- Schuur/berging
- Inpandig
Parkeergelegenheid
- Soort parkeergelegenheid
- Parkeergarage
VvE checklist
- Inschrijving KvK
- Ja
- Jaarlijkse vergadering
- Ja
- Periodieke bijdrage
- Ja (€ 269,28 per maand)
- Reservefonds aanwezig
- Ja
- Onderhoudsplan
- Ja
- Opstalverzekering
- Ja
Foto's 50
© 2001-2026 funda

















































