Dit huis op Funda: https://www.funda.nl/detail/koop/zwolle/huis-eendrachtstraat-82/43887618/

Omschrijving
In de vriendelijke en populaire woonwijk Assendorp ligt deze bijzonder ruime (116 m²) tussenwoning met tuin, op eigen grond.
De wijk Assendorp kenmerkt zich door vooroorlogse woningbouw met veelal kleine karakteristieke rijwoningen in twee lagen, met en zonder kap. Het is een dichtbevolkte wijk met alle primaire voorzieningen binnen handbereik en een levendige wijkvereniging die zorgt voor veel activiteiten en voor het welzijn van de wijk. In Assendorp zijn veel dagwinkels, een supermarkt, lagere scholen, kinderopvang, restaurants, een park en speelterreinen. Daarnaast is de woonwijk zeer gunstig gelegen ten opzichte van het station Zwolle centraal, de authentieke binnenstad en verschillende uitvalswegen.
De woning heeft dankzij een uitbouw aan de achterzijde maarliefst 116m² gebruiksoppervlakte wonen! Het interieur van de woning is verouderd en behoeft renovatie. De keuken en het sanitair zijn eenvoudig maar doelmatig. De woning heeft zowel houten als kunststof kozijnen met dubbel glas.
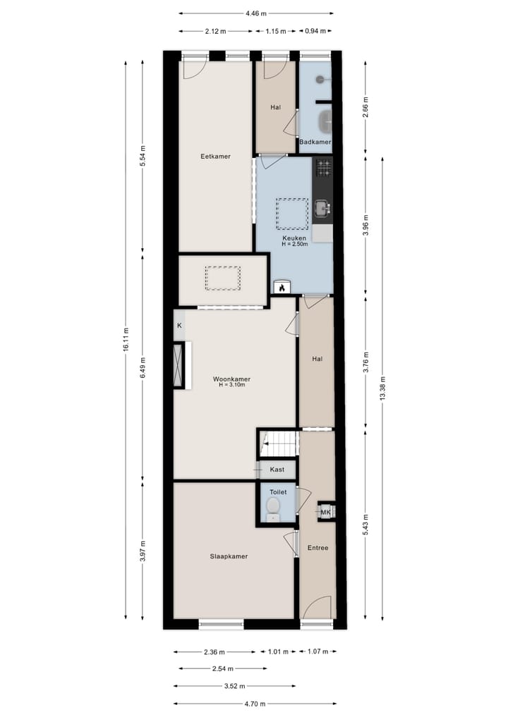
De indeling is als volgt:
Begane grond:
Hal/ entree met meterkast en trapopgang naar de eerste verdieping, slaapkamer aan de voorzijde van de woning, eenvoudig toilet, woonkamer met schouw.
In de uitbouw van de woning vinden we de keuken met ingebouwde koelkast, gaskookplaat en magnetron, eetkamer, hal, badkamer met inloopdouche en wastafel.
Eerste verdieping:
Overloop met wastafel, twee slaapkamers. De slaapkamer aan de achterzijde van de woning geeft middels een deur toegang tot het dak van de uitbouw.
Vliering:
Bergzolder met een maximale hoogte van circa 1,80 meter.
Algemeen:
* Maar liefst 116m² gebruiksoppervlakte wonen;
* Vriendelijke straat;
* Parkeervakken voor vergunninghouders;
* Energielabel C
* Cv gas combi ketel (2023);
* Bouwkundig keuringsrapport beschikbaar;
* Leuke starterswoning;
* Zeer gunstige ligging nabij stadscentrum en treinstation;
Aanvaarding: direct
Vraagprijs € 345.000,= k.k.
Kenmerken
Overdracht
- Laatste vraagprijs
- € 345.000 kosten koper
- Vraagprijs per m²
- € 2.974
- Status
- Verkocht
Bouw
- Soort woonhuis
- Eengezinswoning, tussenwoning
- Soort bouw
- Bestaande bouw
- Bouwjaar
- 1895
- Specifiek
- Gedeeltelijk gestoffeerd en kluswoning
- Soort dak
- Schilddak bedekt met pannen
Oppervlakten en inhoud
- Gebruiksoppervlakten
- Wonen
- 116 m²
- Overige inpandige ruimte
- 3 m²
- Perceel
- 102 m²
- Inhoud
- 445 m³
Indeling
- Aantal kamers
- 5 kamers (3 slaapkamers)
- Aantal badkamers
- 1 badkamer en 1 apart toilet
- Badkamervoorzieningen
- Douche en wastafel
- Aantal woonlagen
- 2 woonlagen
- Voorzieningen
- Natuurlijke ventilatie
Energie
- Energielabel
- C
- Isolatie
- Gedeeltelijk dubbel glas
- Verwarming
- Cv-ketel
- Warm water
- Cv-ketel
- Cv-ketel
- Hr Combi ketel Vailant (gas gestookt combiketel uit 2023, eigendom)
Kadastrale gegevens
- ZWOLLE G 5268
- Kadastrale kaart
- Oppervlakte
- 102 m²
- Eigendomssituatie
- Volle eigendom
Buitenruimte
- Ligging
- In woonwijk
- Tuin
- Achtertuin
- Achtertuin
- 25 m² (5,00 meter diep en 5,00 meter breed)
- Ligging tuin
- Gelegen op het noordwesten
Parkeergelegenheid
- Soort parkeergelegenheid
- Betaald parkeren, openbaar parkeren en parkeervergunningen
Foto's 35
© 2001-2025 funda


































