Dit huis op Funda: https://www.funda.nl/detail/recreatie/breskens/huis-schoneveld-126/43154457/

Schoneveld 1264511 HV BreskensVerspreide huizen Breskens
€ 365.000 k.k.
Omschrijving
Gelegen op bungalowpark Schoneveld, op korte afstand van de Zeeuwse kust, mogen wij u deze ruime vrijstaande recreatiewoning (type Zeemeeuw) aanbieden. De woning staat op een perceel van 344 m² eigen grond en biedt dankzij de aanwezigheid van een slaapkamer en badkamer op de begane grond de mogelijkheid tot gelijkvloers wonen.
Bent u op zoek naar een vakantiehuis dichtbij het centrum, het strand en de zee? Dan is dit dé kans, plan snel een bezichtiging!
Begane grond:
Binnenkomst in de hal met toegang tot de toiletruimte, trapopgang en de lichte woonkamer met grote raampartijen. De open keuken is uitgerust met een 4-pits gaskookplaat met afzuigkap, magnetron, koelkast en vaatwasser. Via schuifdeuren bereikt u de achtertuin. Verder vindt u op de begane grond een slaapkamer en een badkamer met ligbad en wastafelmeubel.
Verdieping:
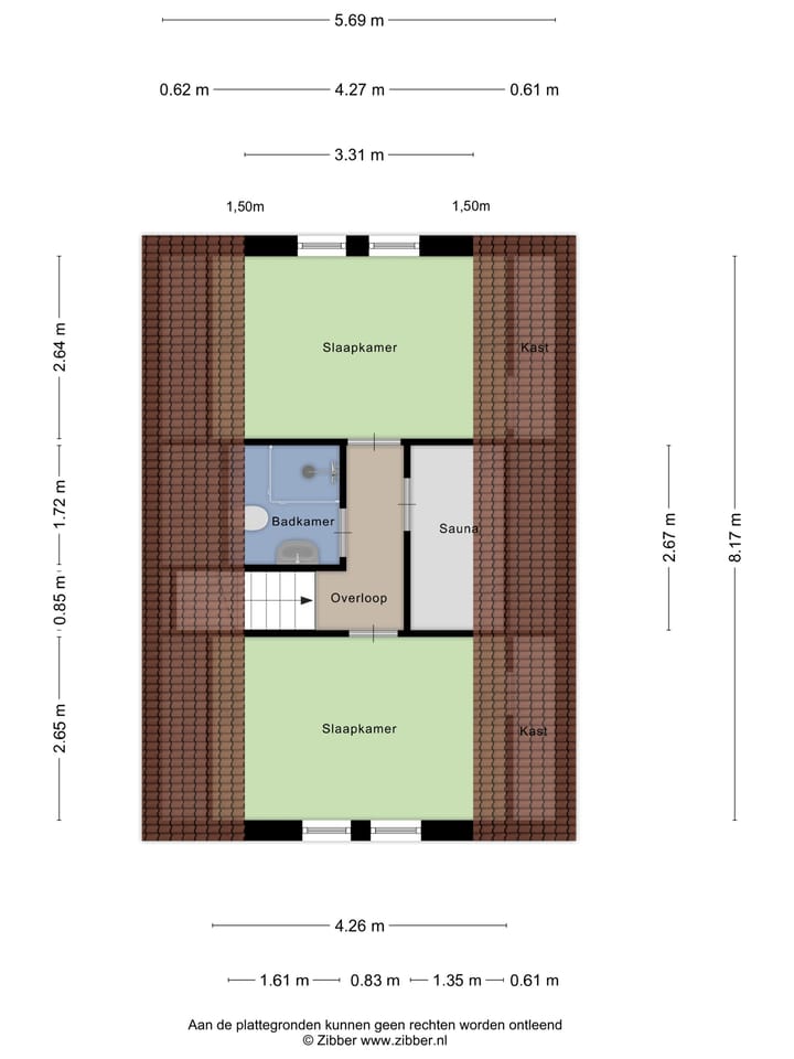
Op de eerste verdieping treft u een overloop, twee slaapkamers en een badkamer met douche, wastafel en toilet. Daarnaast is er op deze verdieping een sauna, ideaal voor ontspanning na een dag aan zee.
Tuin:
De royale tuin rondom biedt veel privacy en is voorzien van een terras met een elektrisch zonnescherm. Er is volop ruimte om meerdere zit- en/of eethoeken te creëren. Verder beschikt de tuin over een tuinhuis, een berging met wasmachineaansluiting en parkeergelegenheid op eigen terrein.
Bouwjaar: 1996
Verwarming: cv-ketel uit 2016
Kozijnen: houten kozijnen met dubbel glas
Bijzonderheden:
* tuinhuis vernieuwd in 2018;
* keuken nieuw geplaatst in 2018;
* de tuin beschikt over een elektrisch zonnescherm;
* de woning wordt gestoffeerd en gemeubileerd aangeboden;
* gelijkvloers wonen mogelijk door badkamer en slaapkamer op de begane grond;
* de woning wordt recreatief verhuurd, vraag ons naar de voorwaarden;
* parkkosten 2025 € 848,72;
* energielabel C.
Kenmerken
Overdracht
- Aangeboden sinds
- Aanvaarding
- Per direct beschikbaar
- Vraagprijs
- € 365.000 kosten koper
- Status
- Beschikbaar
- Permanente bewoning
- Permanente bewoning is niet toegestaan
Bouw
- Soort woonhuis
- Eengezinswoning, vrijstaande woning
- Soort bouw
- Bestaande bouw
- Bouwjaar
- 1996
- Specifiek
- Gemeubileerd en gestoffeerd
- Soort dak
- Zadeldak bedekt met pannen
Oppervlakten en inhoud
- Gebruiksoppervlakten
- Wonen
- 74 m²
- Overige inpandige ruimte
- 5 m²
- Perceel
- 344 m²
- Inhoud
- 292 m³
Indeling
- Aantal kamers
- 4 kamers (3 slaapkamers)
- Aantal badkamers
- 2 badkamers en 1 apart toilet
- Badkamervoorzieningen
- Ligbad, 2 wastafels, douche, en toilet
- Aantal woonlagen
- 2 woonlagen
- Voorzieningen
- Schuifpui
Energie
- Energielabel
- C
- Isolatie
- Dubbel glas en volledig geïsoleerd
- Verwarming
- Cv-ketel
- Warm water
- Cv-ketel
- Cv-ketel
- Gas gestookt combiketel uit 2016, eigendom
Kadastrale gegevens
- OOSTBURG EL 903
- Kadastrale kaart
- Oppervlakte
- 344 m²
- Eigendomssituatie
- Volle eigendom
Buitenruimte
- Ligging
- Aan park, aan rustige weg en in recreatiepark
- Tuin
- Tuin rondom
Bergruimte
- Schuur/berging
- Aangebouwde stenen berging
Parkeergelegenheid
- Soort parkeergelegenheid
- Op eigen terrein
Foto's 28
Plattegronden 2
© 2001-2025 funda





























