
Zonneoordlaan 47-R896718 TL EdeDriesprong/Ginkel
€ 165.000 k.k.
BlikvangerVerrassend royaal chalet vol sfeer, comfort en gezelligheid!
Omschrijving
Een ultiem vakantiegevoel gegarandeerd! Met een woonoppervlak van circa 67 m² biedt dit royale chalet een perfecte combinatie van sfeer, comfort en gezelligheid! Voorzien van een royale L-vormige woonkamer, halfopen keuken, twee fijne slaapkamers, badkamer, separaat toilet en een praktische bijkeuken heb je binnen alles wat je nodig hebt terwijl buiten een leuke tuin zorgt voor een fijne plek om te ontspannen. De fantastische locatie in het groen van de Edese bossen biedt prachtige wandel- en fietstochten. De mooie omgeving biedt voor ieder wat wils. Culturele hotspots zijn hier ook genoeg te vinden. Hierbij kun je denken aan het Kröller Müller Museum. Daarnaast is Jachthuis Sint Hubertus ook een aanrader. Ben jij op zoek naar een mooie plek die centraal gelegen is en waar je ook tot rust kan komen? Pak dan nu je kans!
Locatie
Midden in het bos vind je het gezellige vakantiepark 'Bospark' in Ede. Hier vind je diverse faciliteiten zoals een sportveld, een buitenzwembad, een cafetaria en fietsverhuur. Natuurliefhebbers zullen genieten van de nabijheid van het Edesche bos, perfect voor ontspannende wandelingen. Voor de dagelijkse boodschappen hoef je niet ver. De dorpen Ede en Lunteren zijn binnen 10 minuten te bereiken. Hier vind je diverse winkels voor de dagelijkse boodschappen, horecagelegenheden en modewinkels. Meer zin in de gezelligheid van het stadsleven? Dankzij de gunstige ligging van de uitvalswegen en de A30 zijn ook andere plaatsen binnen handbereik op het moment dat je dit wenst.
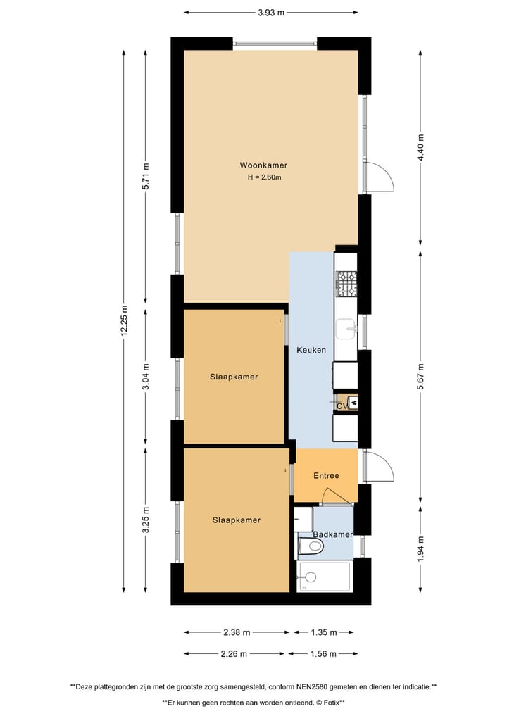
Indeling
Bij binnenkomst in het chalet word je verwelkomd in een uitnodigende entree, die toegang biedt tot alle vertrekken van het chalet. De indeling is functioneel en slim ontworpen, waardoor de ruimte optimaal wordt benut voor comfortabel recreëren.
De keuken is ingericht in een slimme U-opstelling, waardoor je over veel werkruimte beschikt. Dankzij deze indeling blijf je tijdens het koken gemakkelijk in contact met jouw gasten aan tafel. Met een gasfornuis, afzuigkap, vaatwasser, koel-vriescombinatie en combi-oven is de keuken van alle gemakken voorzien om heerlijke maaltijden te bereiden. De woonkamer is een sfeervolle ruimte met volop ruimte om een knusse zithoek in te richten, ideaal voor ontspannen momenten! Naast de grote raampartijen zorgt een raam in het dak voor een mooie lichtinval.
Bij mooi weer kun je de schuifdeur openen, waardoor binnen en buiten naadloos in elkaar overlopen. Dit geeft je de mogelijkheid om buiten te dineren of gewoon te genieten van de frisse lucht. Bovendien zorgt de airco ervoor dat het heerlijk koel blijft tijdens warme dagen!
De hoofdslaapkamer is ruim genoeg voor een tweepersoonsbed en is voorzien van een ingebouwde kast, waar je al jouw kleding en accessoires stijlvol kunt opbergen! Dit zorgt voor een georganiseerde en opgeruimde uitstraling. Naast de hoofdslaapkamer is er een extra kamer die eenvoudig kan worden ingericht als tweede slaapkamer. De badkamer is voorzien van lichte tinten, wat zorgt voor een frisse uitstraling. De ruimte is uitgerust met een douchecabine, en een wastafelmeubel met spiegel, perfect voor jouw dagelijkse verzorging. Verder is er nog een bijkeuken wat bijdraagt aan de praktische indeling van het chalet.
Exterieur
Parkeer de auto eenvoudig op jouw eigen perceel, zodat je niet ver hoeft te lopen met de weekendtassen. De tuin is fraai aangelegd met een aantrekkelijke mix van gazon, groene beplanting en bestrating, en biedt toegang tot het terras, waar je heerlijk kunt ontspannen.
Kenmerken
Bouwjaar: 2000
Soort grond: eigen grond
Parkkosten (2025): € 2.495,52 per jaar
Internet (2025): € 300,- per jaar
Cai (2025): € 180,- per jaar
Videma (2025): € 51- per jaar
Afvalstoffenheffing (2025): 253 per jaar
BTW van toepassing: nee
BTW belaste levering: nee
Huisdieren toegestaan: ja (maximaal twee honden)
Inventaris: gestoffeerd en gemeubileerd
Voorkeursrecht van toepassing: ja
Verhuurmogelijkheden: ja via park
Inschrijving op dit adres en permanente bewoning zijn niet toegestaan
Hoewel de documentatie met de grootste zorgvuldigheid is samengesteld, aanvaarden wij geen enkele aansprakelijkheid voor onjuistheden, vergissingen, zet- of drukfouten.
Kenmerken
Overdracht
- Aangeboden sinds
- Aanvaarding
- In overleg
- Vraagprijs
- € 165.000 kosten koper
- Status
- Beschikbaar
- Permanente bewoning
- Permanente bewoning is niet toegestaan
Bouw
- Soort woonhuis
- Bungalow, vrijstaande woning
- Soort bouw
- Bestaande bouw
- Bouwjaar
- 2000
- Specifiek
- Gemeubileerd en gestoffeerd
- Soort dak
- Zadeldak bedekt met bitumineuze dakbedekking
- Keurmerken
- Energie Prestatie Advies
Oppervlakten en inhoud
- Gebruiksoppervlakten
- Wonen
- 67 m²
- Perceel
- 356 m²
- Inhoud
- 241 m³
Indeling
- Aantal kamers
- 3 kamers (2 slaapkamers)
- Aantal badkamers
- 1 badkamer en 1 apart toilet
- Badkamervoorzieningen
- Douche en wastafelmeubel
- Aantal woonlagen
- 1 woonlaag
- Voorzieningen
- Mechanische ventilatie, natuurlijke ventilatie, en schuifpui
Energie
- Energielabel
- Isolatie
- HR-glas
- Verwarming
- Cv-ketel
- Warm water
- Cv-ketel
- Cv-ketel
- Remeha (gas gestookt combiketel uit 2021, eigendom)
Kadastrale gegevens
- EDE A 1935
- Kadastrale kaart
- Oppervlakte
- 356 m²
- Eigendomssituatie
- Volle eigendom
Buitenruimte
- Ligging
- Aan park, in bosrijke omgeving en in recreatiepark
- Tuin
- Tuin rondom
Parkeergelegenheid
- Soort parkeergelegenheid
- Op eigen terrein
Foto's 35
Plattegronden
© 2001-2026 funda



































