
Omschrijving
In de zomer heerlijk varen en zwemmen op de plas, in de winter schaatsen op het prachtige ijs. ’s Avonds afsluiten met een wijntje bij een prachtige zonsondergang. Kortom, een werkelijk unieke gezinsplek voor heerlijke dagen.
Op een van de mooiste locaties van Caravanpark Stille Plas, direct gelegen aan de Stille Plas, staat dit goed verzorgde vrijstaande recreatiechalet (ruim 43 m2) op ruim perceel en beschikt over 5 slaapplaatsen. Vanuit het chalet is er een geweldig uitzicht over de Stille Plas. Bouwjaar 2003.
Het perceel (geen eigen grond) heeft een prachtig wijds uitzicht (met ondergaande zon) over de Stille Plas een aanlegsteiger aan de achterzijde met uitvaartmogelijkheid naar de Stille Plas.
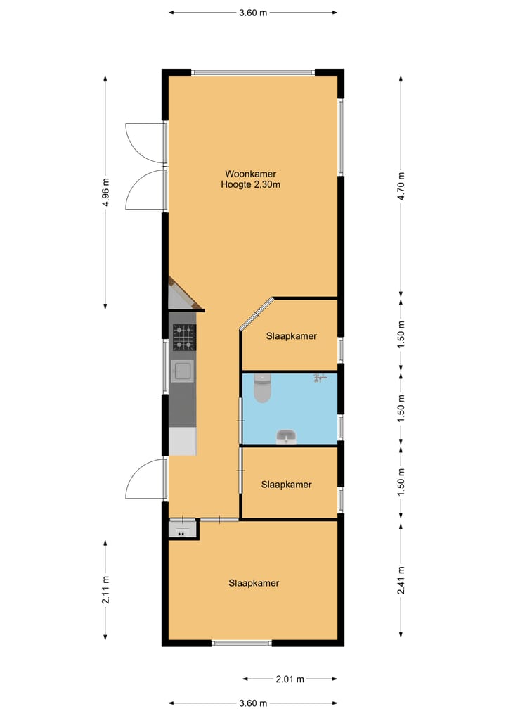
Het chalet beschikt over een ruime woonkamer, 3 slaapkamers en een badkamer. Daarnaast is er nog een berging aan de achterzijde van het chalet. De woonkamer en de keuken zijn voorzien van elektrische vloerverwarming.
De steiger is in 2018 vernieuwd, in 2020 is de dakbedekking vervangen, het windscherm is in 2021 geplaatst en de keuken is in 2021 gemoderniseerd. Alle ramen zijn voorzien van horren.
Caravanpark Stille Plas is een zeer ruim en mooi opgezet park, met een unieke ligging direct aan de unieke Stille Plas en een natuurgebied. Het park is autoluw, heeft een eigen strandje met ligplaatsen en boothelling en beschikt over eigen
vuilafvoer plaats. Vanaf de Stille Plas is er met de boot toegang tot de grote plas en vijfde plas.
Het chalet wordt inclusief een deel van de inboedel opgeleverd, de Lijst van zaken is beschikbaar.
Oplevering op korte termijn mogelijk.
Bijzonderheden:
Het park is het gehele jaar geopend, het gebruik van het chalet is echter recreatief. Buiten het seizoen is gedeeltelijk
gebruik toegestaan. Buiten het seizoen is gedeeltelijk gebruik toegestaan.
Permanente bewoning, verhuur en honden zijn niet toegestaan.
De huur van de standplaats over 2025 bedraagt € 5.620,70 inclusief BTW, elektra, water en overige kosten.
De huur van de standplaats is voldaan en wordt verrekend per overdrachtsdatum.
Kenmerken
Overdracht
- Oorspronkelijke vraagprijs
- € 170.000 vrij op naam
- Laatste vraagprijs
- € 155.000 vrij op naam
- Status
- Verkocht
- Permanente bewoning
- Permanente bewoning is niet toegestaan
Bouw
- Soort woonhuis
- Bungalow, vrijstaande woning
- Soort bouw
- Bestaande bouw
- Bouwjaar
- 2003
- Soort dak
- Zadeldak
Oppervlakten en inhoud
- Gebruiksoppervlakten
- Wonen
- 43 m²
- Externe bergruimte
- 6 m²
- Inhoud
- 127 m³
Indeling
- Aantal kamers
- 4 kamers (3 slaapkamers)
- Aantal badkamers
- 1 badkamer
- Badkamervoorzieningen
- Douche, toilet, en wastafel
- Aantal woonlagen
- 1 woonlaag
Energie
- Energielabel
- Niet verplicht
- Verwarming
- Gedeeltelijke vloerverwarming
- Warm water
- Geiser
Kadastrale gegevens
- LOOSDRECHT A 1
- Kadastrale kaart
- Oppervlakte
- 1 m²
Buitenruimte
- Ligging
- Aan water
- Tuin
- Achtertuin en zijtuin
- Zijtuin
- 60 m² (12,00 meter diep en 5,00 meter breed)
- Ligging tuin
- Gelegen op het zuiden
Bergruimte
- Schuur/berging
- Vrijstaande houten berging
- Voorzieningen
- Elektra
Parkeergelegenheid
- Soort parkeergelegenheid
- Op eigen terrein
Foto's 33
© 2001-2026 funda
































