
Bos Lodge (Bouwnr. 6.40)5993 PB MaasbreeBuitengebied Lange Heide-'t Rooth
€ 295.000 v.o.n.
Omschrijving
De Bos Lodge valt op door het moderne en natuurlijke ontwerp, dat een combinatie is van strakke lijnen en hout en zink. Deze eigentijdse uitstraling wordt benadrukt door de grote ramen die van de vloer tot het plafond reiken en veel natuurlijk licht binnenlaten, waardoor er een gevoel van ruimte ontstaat.
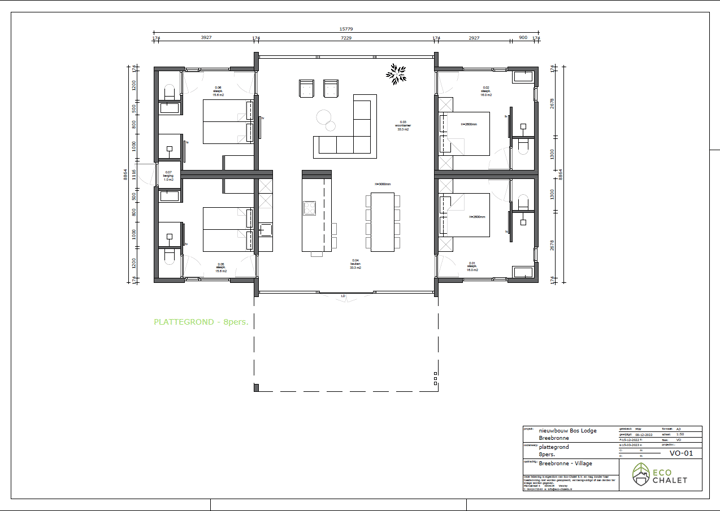
Duurzaamheid staat hoog in het vaandel bij de Bos Lodge. Het gebruik van hout als bouwmateriaal zorgt voor een aangename temperatuur binnen en past perfect in de natuurlijke omgeving van Vakantiepark BreeBronne. De Bos Lodge is op een lichte fundering geplaatst, waardoor de impact op het terrein minimaal is. Voor extra ruimte zijn er verschillende uitbreidingsmogelijkheden beschikbaar, zoals een 8 persoonsuitvoering.
Functionele indeling
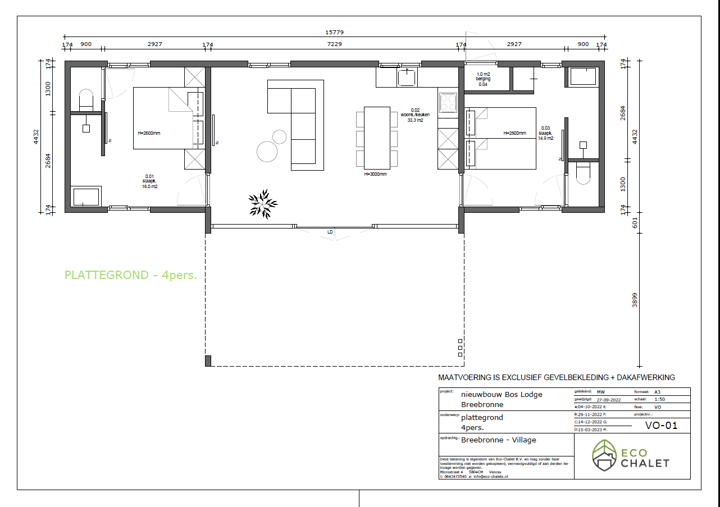
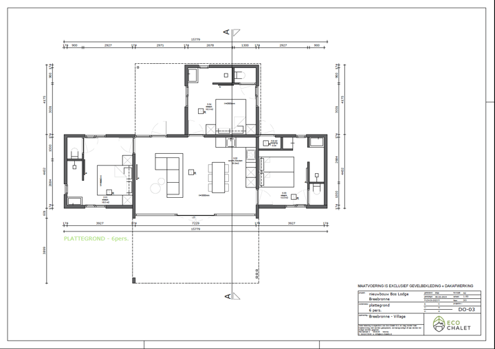
De Bos Lodge biedt standaard ruimte aan zes personen en beschikt standaard over een woonkamer en keuken aan de voorzijde van de woning. De grote glazen oppervlakken en dubbele deuren die toegang bieden tot het terras geven de Bos Lodge een moderne en lichte uitstraling. Er zijn drie slaapkamers in de standaarduitvoering van de Bos Lodge, met bij elke slaapkamer een badkamer en suite en toilet. Dankzij de royale raampartijen en het terras met overkapping voelt de binnenruimte van de Bos Lodge als één geheel met de buitenomgeving.
Kenmerken
Overdracht
- Aangeboden sinds
- Aanvaarding
- In overleg
- Vraagprijs
- € 295.000 vrij op naam
- Status
- Beschikbaar
- Permanente bewoning
- Permanente bewoning is niet toegestaan
Bouw
- Soort object
- Bouwgrond
- Bouwrijp
- Nee
Indeling
- Perceel
- 83 m²
Buitenruimte
- Ligging
- Aan bosrand en in bosrijke omgeving
Foto's 16
© 2001-2026 funda















