Dit huis op Funda: https://www.funda.nl/detail/recreatie/petten/huis-strandweg-3-l4ck/89530884/

Strandweg 3-L4CK1755 LA PettenPetten-Centrum en Korfwater
€ 532.000 v.o.n.
Omschrijving
* Speciaal ontworpen 4-persoons kindvriendelijke loft
* Een stijlvolle woning zwevend boven een wadi met speelplaatsen
* Gelegen op slechts 200 meter van het strand
Echt even ontspannen als gezin? Welkom bij de Duyn Loft Comfort Kids, waarbij je zorgeloos op vakantie kan met het hele gezin. Alle acht Duyn Loft Comfort Kids woning liggen bij elkaar, zwevend boven een wadi. De woning is speciaal voor kinderen ontworpen, met een oog op comfort, veiligheid en duurzaamheid. Groene innovatie gecombineerd met optimaal woongenot.
Landal Pettemer Duynen
Luxe, natuur en kustbeleving in perfect evenwicht. Landal Pettemer Duynen is een exclusief recreatiepark die perfect hoogwaardige architectuur, duurzaamheid en een ongedwongen kustsfeer combineert. De woningen zijn zorgvuldig ontworpen om harmonieus op te gaan in het duinlandschap en bieden een ongeëvenaarde mix van comfort en rust.
Het park is autoluw, waardoor je in alle stilte kunt genieten van de natuur en de ruimte.In het centraal gelegen hoofdgebouw vind je niet alleen een receptie en parkshop, maar ook een stijlvol horecaconcept verspreid over twee verdiepingen met meerdere terrassen. Een bijzondere toevoeging is het Discovery Centre, waar interactieve exposities van hightech bedrijven te bewonderen zijn.
Ontdek de woning
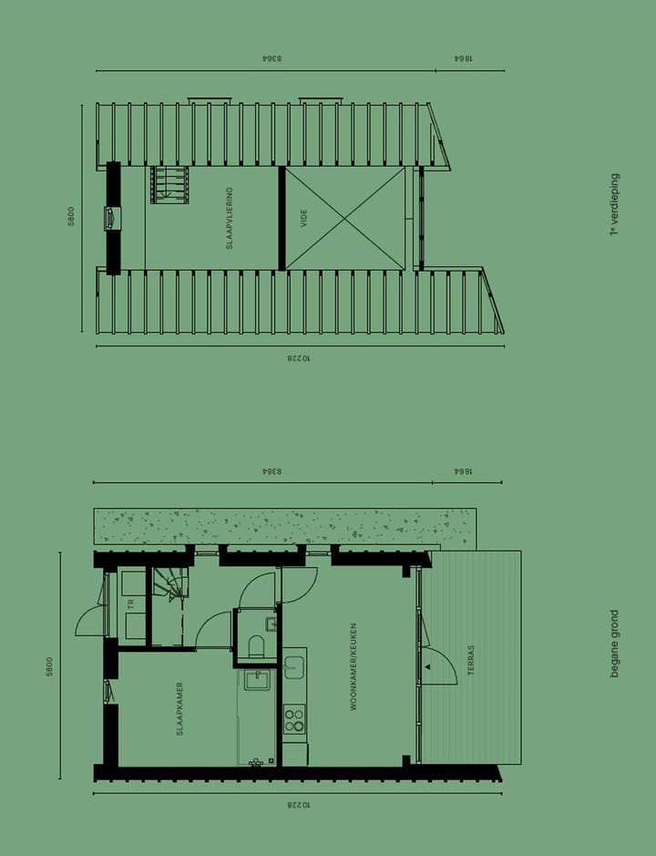
De 4-persoons Duyn Loft Comfort Kids is een unieke, eigentijdse lodge die comfort en natuur naadloos met elkaar verbindt. De Loft combineert een strak, modern design met de natuurlijke schoonheid van de kust. De hoge glazen gevel in de woonkamer met vide zorgt voor een naadloze verbinding met het omliggende duinlandschap, waardoor binnen en buiten in elkaar overlopen. De begane grond beschikt over een stijlvolle tweepersoonsslaapkamer met een ensuite badkamer, bestaande uit een inloopdouche en wastafel.
De vide van de woning is gemaakt als kinderslaapkamer, die speciaal is ingericht voor kinderen. Daarnaast is er in de woonkamer ook gedacht aan de kleinste gasten van het park. Zo is de hele woning gebouwd en gefocust op een ideaal verblijf met het hele gezin.
Het deels zwevende terras boven de wadi biedt een unieke plek om in alle rust van de natuur te genieten. In de wadi bevinden zich houten speeltoestellen, waarbij kinderen in zowel droog als nat weer kunnen ravotten. De mix van materialen in de gevelbekleding zorgt voor een moderne look, met als blikvanger de achterzijde, waar gebrand hout een warme, karaktervolle touch geeft.
Verhuur, rendement en eigen gebruik
Bij Pettemer Duynen is het verplicht om de woning in de verhuur aan te bieden. Dit wordt gerealiseerd door Landal, zij nemen de verhuur volledig op zich, zodat jij als eigenaar zorgeloos kan genieten zonder omkijken naar. Als eigenaar behoud je de mogelijkheid om jaarlijks tot 90 dagen zelf van je woning te genieten, waarvan 14 dagen in het hoogseizoen (juli, augustus). Download de brochure en bekijk alle kosten en opbrengsten.
Kenmerken
Overdracht
- Aangeboden sinds
- Aanvaarding
- In overleg
- Vraagprijs
- € 532.000 vrij op naam
- Status
- Beschikbaar
- Permanente bewoning
- Permanente bewoning is niet toegestaan
Bouw
- Soort woonhuis
- Eengezinswoning, vrijstaande woning
- Soort bouw
- Nieuwbouw
- Bouwjaar
- 2025
- Specifiek
- Gemeubileerd en gestoffeerd
Oppervlakten en inhoud
- Gebruiksoppervlakten
- Wonen
- 44 m²
- Inhoud
- 223 m³
Indeling
- Aantal kamers
- 3 kamers (2 slaapkamers)
- Aantal badkamers
- 1 apart toilet
- Aantal woonlagen
- 2 woonlagen
Energie
- Energielabel
- Niet verplicht
Kadastrale gegevens
- PETTEN
- Kadastrale kaart
- Eigendomssituatie
- Erfpacht
Buitenruimte
- Ligging
- Landelijk gelegen en vrij uitzicht
- Tuin
- Tuin rondom
Garage
- Soort garage
- Parkeerplaats
Foto's 4
© 2001-2026 funda



