This house on Funda: https://www.funda.nl/en/detail/43060327/

Vrijstaande woningen Linnerpark (E01) (Bouwnr. 10)6067 GP LinneLinne
€ 709,000 v.o.n.
Description
Wil jij vrijstaand wonen? En droom je van meer ruimte voor je gezin? Of van een grote woonkeuken met openslaande deuren naar de tuin? En heb je zin om mee te denken over het ontwerp van je eigen woning? Deze droom kun je realiseren in nieuwbouwplan Linnerpark in Linne!
In het dorp Linne nabij uitgestrekte weilanden en landbouwgronden, zijn we gestart met de verkoop van verschillende woningen op vrijstaande kavels.
Hier koop je niet zomaar een huis — je koopt een kavel mét woning die je volledig kunt afstemmen op jouw woonwensen. Welke woning wordt jouw nieuwe thuis?
Ontdek de mogelijkheden in Linnerpark en maak van elke dag een bijzondere woonervaring!
Wonen zoals jij wilt
Elke woning is volledig aan te passen aan jouw persoonlijke wensen. Of je nu droomt van een extra uitbouw, een royale slaapkamer, een tweede badkamer of liever een slaapkamer met badkamer op de begane grond — het is allemaal mogelijk. Er zijn talloze indelingsopties beschikbaar. De afmetingen en ruimten kunnen flexibel worden ingedeeld, zodat jouw woning perfect aansluit op jouw manier van leven. Samen creëren we jouw ideale thuis.
Duurzame kwaliteit
Alle woningontwerpen zijn zorgvuldig ontwikkeld met oog voor kwaliteit, zodat ze niet alleen vandaag de dag voldoen aan de wensen van de nieuwe bewoners, maar ook in de toekomst relevant blijven.
Linne ligt ten zuiden van Roermond, onderdeel van de gemeente Maasgouw en vlakbij Maasbracht en Echt. De ligging van dit dorp aan de Maas is ideaal. Door de nabijheid van de snelwegen A2 en A73 zijn Eindhoven, Venlo en Maastricht prima bereikbaar. Aan de zuid-oost kant van Linne, op een voormalig voetbalveld, komt nieuwbouwplan Linnerpark tot leven, waar het grootste gedeelte van in totaal 224 woningen inmiddels is gerealiseerd.
De rivier de Maas biedt naast waterrecreatie veel mogelijkheden tot ontspanning in een prachtige omgeving voor jong en oud. Het landschap tussen het dorp Linne en de Maas, de Linnerweerd, is een uiterwaardengebied ten westen van Linne, gelegen op het laagterras van de Maas. Het gebied kenmerkt zich door uitgestrekte weilanden en landbouwgronden. In deze omgeving kun je naar hartelust wandelen en fietsen. Leuk detail is dat het dorp Linne een actief verenigingsleven heeft. Ook voor de dagelijkse boodschappen hoef je het dorp niet uit, die doe je gewoon in het dorp!
Ontvang bij aankoop van een woning een sanitaircheque t.w.v. € 10.000,-
Bij aankoop van een Brummelhuiswoning in Linnerpark ontvang je van ons een sanitaircheque* t.w.v. maar liefst € 10.000,-! Deze cheque kun je vrij besteden aan sanitair of tegels voor jouw nieuwe woning.
Features
Transfer of ownership
- Listed since
- Acceptance
- Available in consultation
- Asking price
- € 709,000 vrij op naam
- Asking price per m²
- € 4,958
- Status
- Available
Construction
- Kind of house
- Single-family home, detached residential property
- Building type
- New property
- Year of construction
- 2025
- Quality marks
- Woningborg Garantiecertificaat
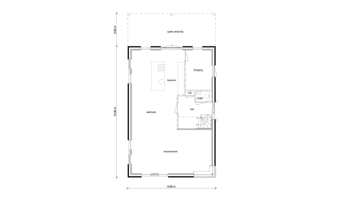
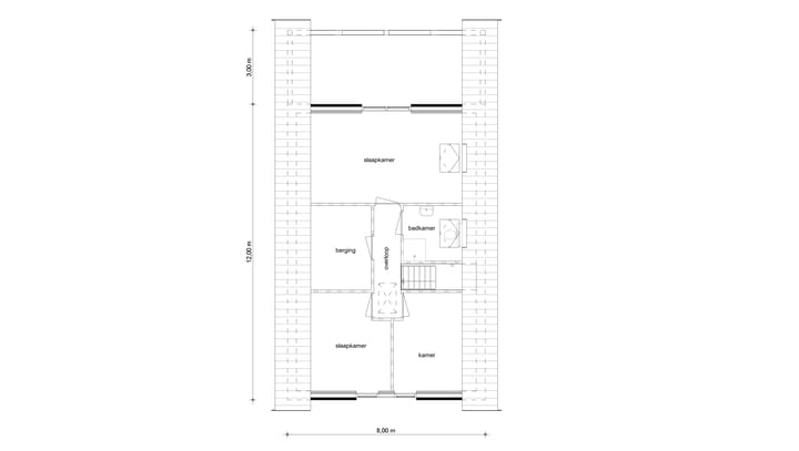
Surface areas and volume
- Areas
- Living area
- 143 m²
- Plot size
- 653 m²
- Volume in cubic meters
- 584 m³
Layout
- Number of rooms
- 6 rooms (3 bedrooms)
- Number of stories
- 2 stories and an attic
Energy
- Energy label
- A+++
Cadastral data
- MAASGOUW
- Cadastral map
- Area
- 653 m²
Exterior space
- Location
- In residential district
Photos 7
© 2001-2025 funda






