This house on Funda: https://www.funda.nl/en/detail/43153286/

Description
Ahornstraat 54, Bomenbuurt
Sfeervol en compleet gerenoveerd (in 2013) en zo te betrekken 3-kamer parterreappartement voorzien van een riante, fraai aangelegde en zonnig gelegen achtertuin van ruim 100 m² met vrijstaande houten berging en veranda. Gelegen op eigen grond.
Centraal gelegen in een rustige straat in de gewilde Bomenbuurt op loopafstand van winkels en horeca van Fahrenheitstraat en Frederik Hendriklaan, openbaar vervoer, diverse uitvalswegen, scholen (o.a. Europese School) en sportfaciliteiten, Bosjes van Poot, Haven van Scheveningen, strand, zee en duinen.
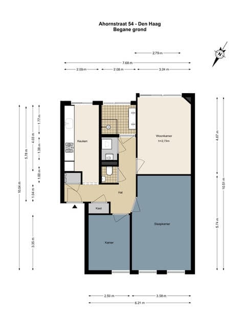
INDELING
Via "Haagsch portiek" met fraaie granitovloer en klassieke voordeur is de entree van het appartement. De ruime overloop geeft toegang tot alle vertrekken en is voorzien van een fraaie houten parketvloer die is doorgelegd door de woning. Vanuit de overloop zijn de meterkast, vaste kast, modern toilet met fontein en een separate wasruimte met opstelplaats cv-ketel bereikbaar.
Lichte woon-/eetkamer aan de achterzijde gelegen met openslaande deuren naar de riante, fraai aangelegde en zonnig gelegen (zuidoosten/westen) achtertuin voorzien van terras met fraaie composiet vloerdelen en een vrijstaande houten berging met elektra en veranda.
Twee slaapkamers, te weten een tussengelegen voorslaapkamer en een tweede, ruime voorslaapkamer (welke eventueel ook als woonkamer kan worden gebruikt).
Ruime moderne keuken in rechte opstelling voorzien van composiet aanrechtblad, Quooker (uit 2025), 6-pits gasfornuis met grote oven (Boretti), afzuigkap, koel/vriescombinatie (2-laden), vaatwasser en veel opbergruimte. Ook hier geven openslaande deuren toegang tot de tuin.
Moderne zwart wit betegelde badkamer voorzien van douchecabine, dubbel wastafelmeubel, designradiator en tevens deur naar de achtertuin.
Voor de afmetingen van de kamers verwijzen wij u naar de plattegronden.
BIJZONDERHEDEN
Het appartement is gelegen op eigen grond.
Aanvaarding in overleg (eind 2025/begin 2026).
Rioolheffing 2025 € 191,15 per jaar.
1/3e aandeel in de gemeenschap.
Actieve Vereniging van Eigenaren, bijdrage € 90,-- per maand.
Elektra 6 groepen met aardlekschakelaar.
Verwarming middels c.v.-combiketel, merk AWB HR107, bouwjaar 2011.
Warmwatervoorziening middels c.v.-combiketel en elektrische boiler (eigendom).
De onderhoudssituatie van het sanitair en de keuken is goed tot uitstekend.
De onderhoudssituatie binnen is goed tot uitstekend en buiten goed.
Het dak is vernieuwd in 2021.
Het gehele appartement is voorzien van kunststof kozijnen met HR++ glas.
Koper is vrij in notariskeuze, echter wel in regio Haaglanden.
De lood- /asbest- en ouderdomsclausules zijn van toepassing.
Bouwjaar ca. 1924.
Woonoppervlakte ca. 73 m².
De inhoud van het appartement is ca. 239 m³.
Het appartement is bouwkundig gekeurd.
Model NVM-koopakte van toepassing.
NABIJ
Om de hoek van winkels aan het Fahrenheitstraat en Goudsbloemlaan en in de buurt van de Weimarstraat, Reinkenstraat, Frederik Hendriklaan en Haagse binnenstad. Openbaar vervoer, (RandstadRail lijn 3 en tramlijn 12), uitvalswegen via Hubertustunnel en Westlandroute. Nabij European School of The Hague, basisscholen en diverse sportfaciliteiten. Boulevard van Kijkduin, “Bosjes van Poot en Bosjes van Pex”, op fietsafstand van strand, zee en duinen.
KADASTRALE INFORMATIE
Gemeente : ’s-Gravenhage
Sectie : AN
Nummer : 5732
Appartementsindex : -3
De Meetinstructie is gebaseerd op de NEN2580. De Meetinstructie is bedoeld om een meer eenduidige manier van meten toe te passen voor het geven van een indicatie van de gebruiksoppervlakte. De Meetinstructie sluit verschillen in meetuitkomsten niet volledig uit, door bijvoorbeeld interpretatieverschillen, afrondingen of beperkingen bij het uitvoeren van de meting.
Interesse in dit huis? Schakel direct uw eigen NVM-aankoopmakelaar in. Uw NVM-aankoopmakelaar komt op voor uw belang en bespaart u tijd, geld en zorgen. Adressen van collega NVM-aankoopmakelaars in Haaglanden vindt u op Funda.
######################################################
Charming and completely renovated (in 2013), this 3-room ground floor apartment is ready to move into and features a spacious, beautifully landscaped, and sunny back garden of over 100 m² with a detached wooden shed and veranda. Situated on private land.
Centrally located on a quiet street in the desirable Bomenbuurt neighborhood, within walking distance of the shops and restaurants of Fahrenheitstraat and Frederik Hendriklaan, public transport, various arterial roads, schools (including the European School) and sports facilities, Bosjes van Poot, Scheveningen Harbor, the beach, sea, and dunes.
LAYOUT
Through the "Haagsch porch" with its beautiful granite floor and classic front door, you enter the apartment, spacious landing with access to all rooms with a beautiful wooden parquet flooring throughout the house. From the landing you can reach the meter cupboard, cupboard, modern toilet with handbasin and a separate laundry room with the central heating boiler.
Bright living/dining room located at the rear with French doors leading to the spacious, beautifully landscaped and sunny (southeast/west) back garden with terrace with beautiful composite floorboards, and a detached wooden shed with electricity and veranda.
Two bedrooms, a intermediate front bedroom and the other a spacious front bedroom (which can also be used as a break-through into the living room).
Spacious, modern kitchen with a straight layout featuring composite countertops, a Quooker (2025), a 6-burner gas stove with a large Boretti oven, an extractor hood, a 2-drawer fridge/freezer, a dishwasher and ample storage space. Here too, French doors provide access to the garden.
Modern, black-and-white tiled bathroom with a shower, double vanity, designer radiator, and a door to the back garden.
- For the dimensions of the rooms please refer to the floor plans.
SPECIAL FEATURES
The property is freehold.
Acceptance in consultation (end of 2025/beginning of 2026).
Sewerage charges 2025 € 191,15 per year.
1/3rd share in the community.
Active Owners Association, contribution € 90,-- each month.
Electricity 6 groups with circuit breaker.
Central heating system, brand AWB HR107, built in 2011.
Hot water supply by central heating system and electric water heater (owned).
The condition of the bathroom and the kitchen is good/excellent.
The condition of the interior is good/excellent and the exterior good.
The roof was renewed in 2021.
The apartment has synthetic window frames with HR++ glazing.
The buyer is free to choose a notary, but must be located in the Haaglanden region.
The lead-/asbestos and age clauses will be applied.
Built in approx. 1924.
Living surface approx. 73 m².
The volume of the apartment approx. 239 m³.
Technical survey available.
NVM model deed applicable.
NEAR
Around the corner from shops on Fahrenheitstraat and Goudsbloemlaan and near Weimarstraat, Reinkenstraat, Frederik Hendriklaan and The Hague city centre.
Public transport, (RandstadRail line 3 and tram line 12), access roads via Hubertustunnel and Westlandroute.
Near European School of The Hague, primary schools and various sports facilities. Boulevard of Kijkduin, "Bosjes van Poot and Bosjes van Pex", within cycling distance of beach, sea and dunes.
The measurement instruction is based on NEN2580. The measurement instruction is intended to apply a more uniform way of measuring for giving an indication of the use surface. The measurement instruction can not completely close differences in measurement results, for example by differences in interpretation, rounding or limitations in the performance of the measurement.
Features
Transfer of ownership
- Last asking price
- € 495,000 kosten koper
- Asking price per m²
- € 6,781
- Status
- Sold
- VVE (Owners Association) contribution
- € 90.00 per month
Construction
- Type apartment
- Ground-floor apartment (apartment)
- Building type
- Resale property
- Year of construction
- 1924
- Type of roof
- Flat roof covered with asphalt roofing
- Quality marks
- Bouwkundige Keuring
Surface areas and volume
- Areas
- Living area
- 73 m²
- External storage space
- 6 m²
- Volume in cubic meters
- 239 m³
Layout
- Number of rooms
- 3 rooms (2 bedrooms)
- Number of bath rooms
- 1 bathroom and 1 separate toilet
- Bathroom facilities
- Shower and washstand
- Number of stories
- 1 story
- Located at
- Ground floor
Energy
- Energy label
- D
- Insulation
- Energy efficient window
- Heating
- CH boiler
- Hot water
- CH boiler and electrical boiler
- CH boiler
- AWB HR107 (gas-fired combination boiler from 2011, in ownership)
Cadastral data
- 'S-GRAVENHAGE AN 5732
- Cadastral map
- Ownership situation
- Full ownership
Exterior space
- Location
- Alongside a quiet road and in residential district
- Garden
- Back garden
- Back garden
- 107 m² (13.90 metre deep and 7.68 metre wide)
- Garden location
- Located at the southeast
Storage space
- Shed / storage
- Detached wooden storage
- Facilities
- Electricity
Parking
- Type of parking facilities
- Paid parking and resident's parking permits
VVE (Owners Association) checklist
- Registration with KvK
- Yes
- Annual meeting
- Yes
- Periodic contribution
- Yes (€ 90.00 per month)
- Reserve fund present
- Yes
- Maintenance plan
- Yes
- Building insurance
- Yes
Photos 36
© 2001-2025 funda



































