This house on Funda: https://www.funda.nl/en/detail/43459579/

't Pontje | De Stolpboerderij (Bouwnr. 2)1921 CC AkerslootAkersloot West
€ 539,000 v.o.n.
Description
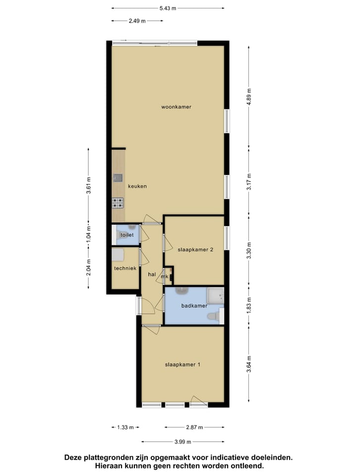
S02 bevindt zich op de begane grond en heeft zowel een eigen voortuin op het zuidoosten als een ruime achtertuin op het noordwesten. Het appartement beschikt over 86,9 m² gebruiksoppervlakte, een ruime woonkamer, twee slaapkamers en een berging die bereikbaar is vanuit de eigen tuin. Het appartement wordt opgeleverd incl. sanitair- en tegelwerk, pv-panelen en een warmtepomp. Kortom; het appartement voldoet aan de meest recente duurzaamheidseisen en biedt hiermee veel gemak en comfort voor de toekomst.
DE STOLPBOERDERIJ
De Stolpboerderij kenmerkt zich door het piramidevormige dak en de authentieke houten gevels. Hier zijn vier appartementen in gebouwd, welke zijn verdeeld over de beneden- en de bovenverdieping. De appartementen op de bovenverdieping(en) type 6 (S03 en S04) beschikken over 61,9 m² gebruiksoppervlakte, een ruime woonkamer, twee slaapkamers, een extra kamer op de tweede verdieping en een buitenpandige berging.
PROJECT ’T PONTJE
Wonen in een groene oase, uitzicht over het Noord-Hollands kanaal en toch vlakbij steden als Haarlem, Alkmaar en Amsterdam. Het is niet voor niks dat Akersloot onder verschillende huishoudens sterk aan populariteit heeft gewonnen in de afgelopen decennia. Tussen de weilanden en langs de oevers vind je een idyllisch, authentiek dorp; dát is wonen in Akersloot. Een droom om te wonen. In totaal worden in het nieuwbouwproject 't Pontje tien appartementen gerealiseerd, omgeven door duingebied, weilanden en een geweldig vaargebied. Bezoek de jachthaven of maak een wandeling door het natuurgebied de Hempolder. Ontdek het best bewaarde geheim van Castricum. Ontdek Akersloot.
KENMERKEN
- Bouwnummer S02 (Stolpboerderij)
- Oppervlakte van 87 m²
- Voor- en achtertuin;
- Fraai uitzicht over water en landerijen;
- Energielabel A+++;
- Individuele berging;
- Inclusief sanitair- en tegelwerk;
- Koopsom € 539.000,- v.o.n.
- Oplevering (indicatie): eind 2025.
Features
Transfer of ownership
- Listed since
- Acceptance
- Available in consultation
- Asking price
- € 539,000 vrij op naam
- Asking price per m²
- € 6,195
- Status
- Available
Construction
- Type apartment
- Ground-floor apartment (apartment)
- Building type
- New property
- Year of construction
- 2025
- Type of roof
- Gable roof covered with roof tiles
- Quality marks
- Woningborg Garantiecertificaat
Surface areas and volume
- Areas
- Living area
- 87 m²
- Exterior space attached to the building
- 96 m²
- External storage space
- 5 m²
- Volume in cubic meters
- 280 m³
Layout
- Number of rooms
- 3 rooms (2 bedrooms)
- Number of bath rooms
- 1 bathroom and 1 separate toilet
- Bathroom facilities
- Walk-in shower, toilet, underfloor heating, and sink
- Number of stories
- 1 story
- Facilities
- Mechanical ventilation, sliding door, TV via cable, and solar panels
- Located at
- Ground floor
Energy
- Energy label
- A+++
- Insulation
- Completely insulated
- Heating
- Partial floor heating, heat recovery unit and heat pump
- Hot water
- Electrical boiler
Exterior space
- Location
- Alongside waterfront, outside the built-up area and unobstructed view
- Garden
- Back garden and front garden
- Back garden
- 72 m² (12.00 metre deep and 6.00 metre wide)
- Garden location
- Located at the northwest
Storage space
- Shed / storage
- Storage box
- Facilities
- Electricity
Parking
- Type of parking facilities
- Public parking
VVE (Owners Association) checklist
- Registration with KvK
- Yes
- Annual meeting
- Yes
- Periodic contribution
- Yes
- Reserve fund present
- Yes
- Maintenance plan
- Yes
- Building insurance
- Yes
Photos 6
© 2001-2025 funda





