This house on Funda: https://www.funda.nl/en/detail/43893089/

Description
Droom je van vrij wonen met alle ruimte om je heen, maar wil je toch de gezelligheid van een dorp dichtbij? Dan is deze vrijstaande woning in Waskemeer precies wat je zoekt! Een huis met karakter, volop mogelijkheden en een perceel waar je ú tegen zegt: maar liefst 8.625 m² eigen grond, met een ruime tuin, kwalitatief uitstekende oprit, vrijstaande schuren en een weids uitzicht over de landerijen en het Blauwe Bos. Hier ervaar je vrijheid op zijn best!
Wonen met ruimte en karakter?
De woning heeft een praktische en sfeervolle indeling. Op de begane grond vind je een knusse woonkamer, die door prachtige glas-in-loodramen gescheiden is van de keuken. De lichte keuken biedt voldoende ruimte om heerlijk te koken en samen te genieten van een maaltijd. Verder is er op de begane grond een slaap/ hobbykamer, een badkamer, een apart toilet en een fijne en koele kelder. In de royale aanbouw bevindt zich nog een extra slaapkamer: ideaal als master bedroom, werkkamer of hobbyruimte.
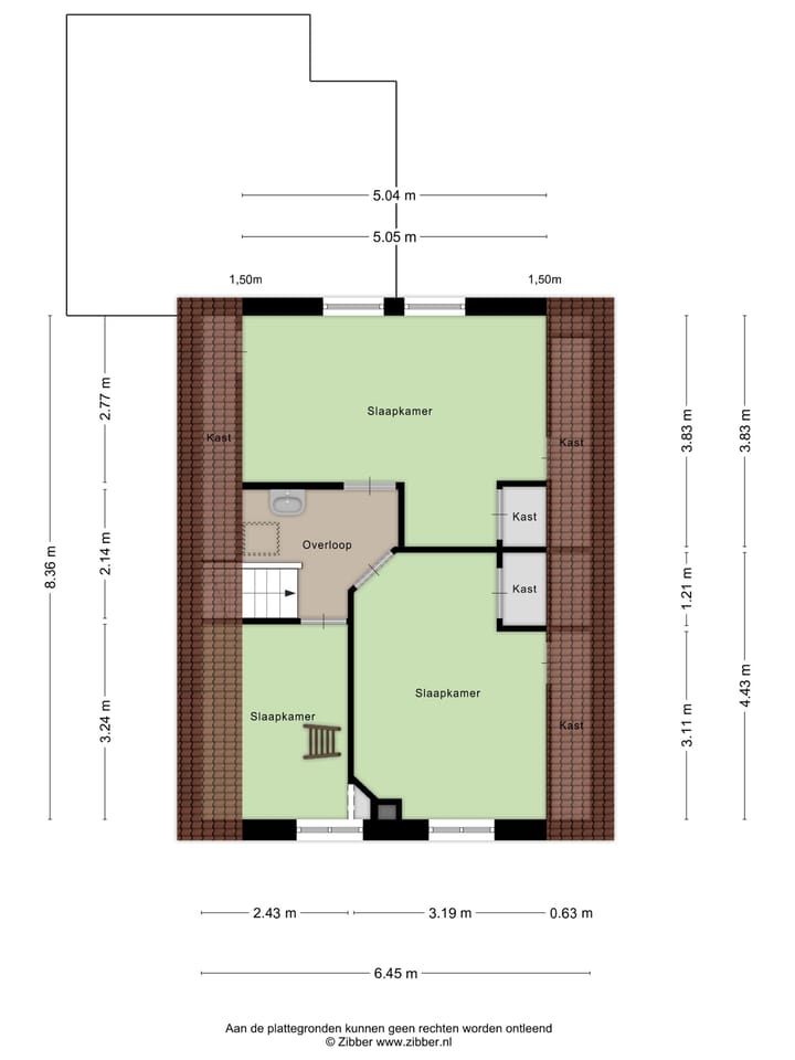
Op de eerste verdieping bevinden zich drie slaapkamers en een overloop. Perfect voor een gezin, logés of om extra ruimte te creëren voor je hobby's of een thuiskantoor.
Ruime bijgebouwen voor eindeloze mogelijkheden?
Naast de woning bevinden zich royale vrijstaande schuren met een totale oppervlakte van ruim 289 m². Ideaal voor wie extra opslagruimte nodig heeft, een dierenverblijf, een werkplaats zoekt of droomt van een eigen praktijkruimte. De mogelijkheden zijn eindeloos!
Een buitenleven om van te dromen?
Wat dit huis echt bijzonder maakt, is het perceel. Rondom de woning ligt een ruime tuin, waar je heerlijk kunt genieten van de natuur. De brede oprit is van uitstekende kwaliteit en geschikt voor zwaar materieel. Aan de achterzijde ligt een groot perceel weiland, perfect voor paardenliefhebbers, het houden van kleinvee of misschien wel je eigen moestuin. De ruiterpaden zijn op korte afstand bereikbaar, dus een ritje door de natuur is zo gemaakt!
Waskemeer: gemoedelijk en groen?
Deze prachtige plek ligt tegen de dorpskern van het vriendelijke Waskemeer, een gezellig dorp in een bosrijke omgeving. Hier geniet je van rust en natuur. In het dorp vind je een basisschool, een professionele kinderopvang en zelfs een middelbare school, een actief verenigingsleven en diverse sportvoorzieningen. Voor de dagelijkse boodschappen ben je in een mum van tijd in omliggende dorpen zoals Haulerwijk en Oosterwolde, en grotere steden zoals Drachten en Assen zijn goed bereikbaar.
Pak deze unieke kans!?Ben jij op zoek naar een woning met karakter, rust en volop mogelijkheden? Dan is dit jouw kans om het landelijke leven te omarmen, zonder de verbinding met het dorp te verliezen. Maak een afspraak voor een bezichtiging en ervaar zelf de ruimte en vrijheid die deze woning te bieden heeft!
Features
Transfer of ownership
- Last asking price
- € 515,000 kosten koper
- Asking price per m²
- € 4,440
- Status
- Sold
Construction
- Kind of house
- Single-family home, detached residential property
- Building type
- Resale property
- Year of construction
- 1957
- Type of roof
- Hip roof covered with roof tiles
Surface areas and volume
- Areas
- Living area
- 116 m²
- Other space inside the building
- 7 m²
- External storage space
- 289 m²
- Plot size
- 8,625 m²
- Volume in cubic meters
- 457 m³
Layout
- Number of rooms
- 6 rooms (5 bedrooms)
- Number of bath rooms
- 1 bathroom and 1 separate toilet
- Bathroom facilities
- Shower and sink
- Number of stories
- 2 stories, a loft, and a basement
- Facilities
- Passive ventilation system and TV via cable
Energy
- Energy label
- Insulation
- Partly double glazed
- Heating
- Gas heaters
- Hot water
- Gas water heater
Cadastral data
- DONKERBROEK K 1836
- Cadastral map
- Area
- 3,285 m²
- Ownership situation
- Full ownership
- DONKERBROEK K 1838
- Cadastral map
- Area
- 5,340 m²
- Ownership situation
- Full ownership
Exterior space
- Location
- Alongside a quiet road, in wooded surroundings, in centre and rural
- Garden
- Surrounded by garden
Storage space
- Shed / storage
- Detached brick storage
- Facilities
- Electricity
Photos 91
© 2001-2025 funda


























































































