This house on Funda: https://www.funda.nl/en/detail/43912115/

Verandawoning (Bouwnr. 54)9207 BK DrachtenDe Folgeren centrum
€ 535,000 v.o.n.
Description
WENJE FOAR ELKENIEN | NIJ WENWILLE
DE BOUW VAN FASE 1 (DE RIJWONINGEN EN DE VERANDAWONINGEN) GAAT STARTEN IN Q1 2026!!
Kijk voor alle informatie op: nij-wenwille.nl!
TUINLANDSCHAP DAT KLEUR GEEFT AAN ALLE JAARGETIJDEN
Als bewoner van Nij Wenwille geniet je van een tuinlandschap dat in alle seizoenen tot leven komt. Slingerende wandelpaden leiden je langs kleurrijke planten en siergrassen. Op de centrale ontmoetingsplek nodigen comfortabele zitbanken uit tot een praatje met de buren, terwijl kinderen zich vermaken in de natuurlijke speeltuin. Aan de rand van de buurt dient het water aan de Wetterwille als natuurlijke wadi's met oeverplanten, die het regenwater opvangen en aantrekkelijke elementen in het landschap vormen.
VERANDAWONINGEN: FLEXIBEL WONEN MET KARAKTER
Van de 12 verandawoningen liggen er 6 aan het water langs de Wetterwille. De andere 6 woningen grenzen aan het groene binnen gebied. De tweelaagse woningen beschikken standaard over drie slaapkamers op de verdieping. De begane grond biedt ruimte aan de woonkamer en een berging. Optioneel kun je op de begane grond een slaapkamer en badkamer creëren en de woning levensloopgeschikt maken. Je auto parkeer je op je eigen parkeerplaats, terwijl het binnen gebied autovrij blijft.
VERANDAWONING - BOUWNUMMER 54
- Kleur baksteen: grijs
- Gebruiksoppervlakte van 157 m2 (inclusief inpandige berging)
- Perceelgrootte van 202 m2
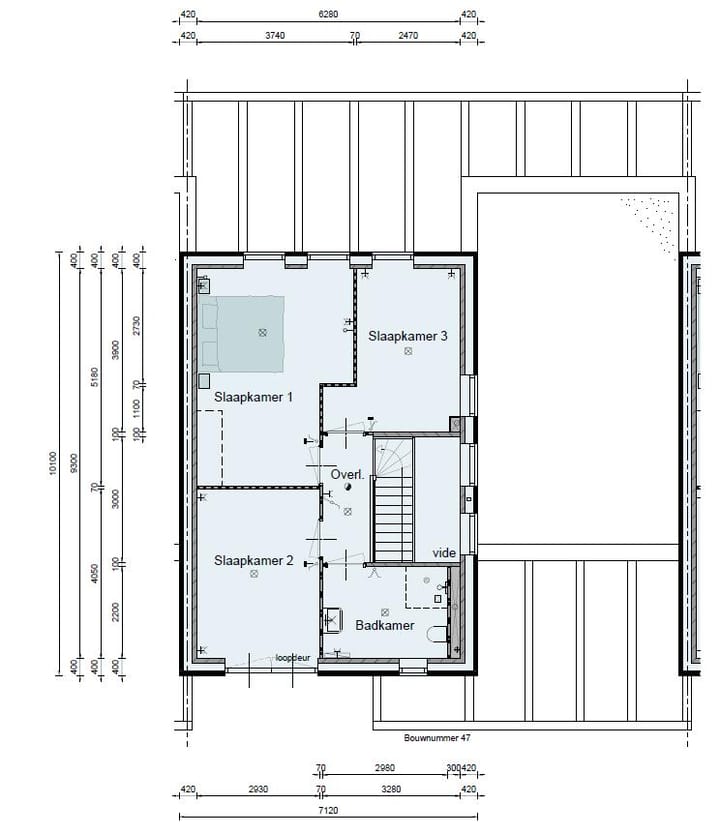
- 3 slaapkamers
- Energielabel A+++
- Warmtepomp en vloerverwarming
- 2 Parkeerplaatsen op eigen terrein
- Optioneel: slaapkamer en badkamer op begane grond (levensloopgeschikt)
**Let op: voor de verandawoningen zijn verplichte meerwerkopties gekozen. Hieraan zijn tevens ook kosten aan verbonden. Neem contact op met de makelaar om deze opties te bespreken en de prijzen op te vragen.
DRACHTEN: EEN BRUISEND DORP ALS JE ACHTERTUIN
Vanuit je woning in Nij Wenwille spring je op de fiets en ben je binnen tien minuten in het gezellige centrum van Drachten. Even snel boodschappen doen, een terrasje pakken met vrienden of winkelen - alles ligt binnen handbereik. In cultureel centrum De Lawei geniet je van theater, muziek en exposities, en in de Bios zie je de nieuwste films in één van de moderne filmzalen. Of breng je met de kinderen een ontspannen bezoekje aan kinderboerderij De Naturij?
Daarmee geniet je in Nij Wenwille van het beste van twee werelden: de rust van wonen in het groen én alle gemakken van de stad binnen handbereik. Het hart van de wijk wordt gevormd door een prachtig tuinlandschap. Of je nu starter bent, een gezin hebt of op zoek bent naar een levensloopgeschikte woning - in Nij Wenwille vind je een thuis dat bij je past.
WOONGEREED
Deze fraaie, duurzame nieuwbouwwoningen worden door de ontwikkelaar zeer compleet opgeleverd. Desgewenst kun je via WoonGereed jouw gloednieuwe huis verhuisklaar afwerken en inrichten, tot en met de erfafscheiding en tuinaanleg aan toe. Kijk voor meer informatie op: woongereed.nl.
Deze online presentatie en eventuele bijlagen zijn samengesteld aan de hand van de ons bekende gegevens en afbeeldingen. Samen met de artist impressies geven zij een indruk van de toekomstige situatie. Zij pretenderen niet een exacte weergave te zijn van het uiteindelijke product. Rechten kunnen dan ook niet aan deze presentatie of bijlagen ontleend worden. Eventueel genoemde of getoonde afmetingen zijn indicatief.
Let op: het door de ontwikkelaar opgegeven gebruiksoppervlak kan afwijken van het daadwerkelijke woonoppervlak! Bij het gebruiksoppervlak kunnen ook bergzolders, bergingen of andere ruimten zijn gerekend, terwijl deze volgens de NEN2580 niet als woonoppervlak zijn aan te merken. Afhankelijk van de mogelijkheden kunt u bijvoorbeeld voor een bergzolder een dakraam toepassen, waardoor deze ruimte eventueel alsnog als woonoppervlak kan worden gerekend. Vraag de makelaar voor meer informatie en eventuele mogelijkheden.
Features
Transfer of ownership
- Listed since
- Acceptance
- Available in consultation
- Asking price
- € 535,000 vrij op naam
- Asking price per m²
- € 3,408
- Status
- Available
Construction
- Kind of house
- Single-family home, semi-detached residential property
- Building type
- New property
- Year of construction
- 2026
- Type of roof
- Flat roof covered with asphalt roofing
- Quality marks
- Woningborg Garantiecertificaat
Surface areas and volume
- Areas
- Living area
- 157 m²
- Plot size
- 202 m²
- Volume in cubic meters
- 622 m³
Layout
- Number of rooms
- 4 rooms (3 bedrooms)
- Number of bath rooms
- 1 separate toilet
- Number of stories
- 2 stories
- Facilities
- Mechanical ventilation
Energy
- Energy label
- Insulation
- Completely insulated
- Heating
- Complete floor heating and heat pump
- Hot water
- Central facility
Exterior space
- Location
- In residential district and open location
- Garden
- Back garden and front garden
Storage space
- Shed / storage
- Attached brick storage
- Facilities
- Electricity and running water
- Insulation
- Completely insulated
Parking
- Type of parking facilities
- Parking on private property
Photos 11
Floorplans 2
© 2001-2026 funda












