This house on Funda: https://www.funda.nl/en/detail/43913513/

Description
Ruim 3-kamer appartement van ca. 89 m² met balkon, berging en eigen parkeerplaats in Nijmegen.
Welkom in dit ruime en lichte 3-kamer appartement, gelegen op de 3de verdieping van een goed onderhouden complex, met een ruim balkon op het zuidwesten, een eigen berging in het souterrain en parkeerplaats in de afgesloten parkeergarage, is dit de perfecte plek voor wie op zoek is naar ruimte en gemak.
Indeling:
Je stapt binnen in de gezamenlijke hal met intercom, waar je direct de zorg en aandacht voor veiligheid en comfort vindt. Met een lift en trappenopgang heb je eenvoudig toegang tot de parkeergarage, berging en natuurlijk jouw appartement.
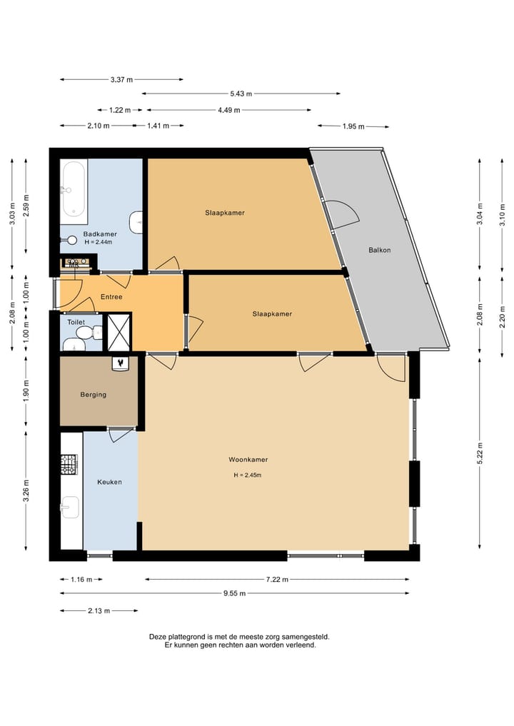
Bij binnenkomst in het appartement betreed je de ruime entree/hal, die toegang biedt tot alle vertrekken. Vanuit de woonkamer en één van de slaapkamers stap je zo het ruime balkon op. Gelegen op het zuidwesten, is dit de ideale plek om te genieten van de middag en avondzon. De tweede slaapkamer heeft openslaande deuren naar de woonkamer, wat deze ruimte extra flexibel maakt. Of je deze kamer nu gebruikt als tweede slaapkamer, werkkamer of hobbyruimte, de keuze is aan jou. De ruime badkamer is voorzien van een ligbad, inloopdouche en een wastafelmeubel. Daarnaast is er een inpandige berging, direct naast de keuken, met aansluitingen voor de wasmachine, cv-opstelling en het mechanische ventilatiesysteem. Hier is voldoende ruimte voor al je opslagbehoeften.
Dit appartement biedt een comfortabele en flexibele indeling met voldoende ruimte en moderne voorzieningen; perfect voor een zorgeloos en plezierig woongenot.
Ligging en locatie.
Het appartementencomplex ligt op een perfecte locatie, met alles wat je nodig hebt binnen handbereik. Op slechts een paar minuten lopen vind je het overdekte winkelcentrum Dukenburg, waar je terecht kunt bij meer dan 100 winkels. Van een Albert Heijn voor je dagelijkse boodschappen tot een apotheek, opticien, drogisterijen en zelfs een fysiotherapiepraktijk, alles is aanwezig om aan al je behoeften te voldoen. Voor wie vaak gebruikmaakt van het openbaar vervoer, is de ligging ideaal. Het trein- en busstation Dukenburg bevinden zich op korte loopafstand, waardoor je snel en eenvoudig de rest van de stad of regio kunt bereiken. Daarnaast biedt de locatie gemakkelijke toegang tot de snelwegen, zodat je binnen 10 minuten in het centrum van Nijmegen, Wijchen of Beuningen kunt zijn. Voor natuurliefhebbers is het recreatiegebied De Berendonck een groot pluspunt. Dit prachtige gebied ligt op slechts 10 minuten fietsen en is perfect voor een ontspannende wandeling, golfen, een sportieve fietstocht of gewoon om even tot rust te komen in de natuur. Ook voor je woon- en interieurbehoeften hoef je niet ver te gaan. De woonboulevard, met een breed scala aan winkels, ligt op loopafstand. Hier kun je alles vinden om je nieuwe appartement naar jouw smaak in te richten en te decoreren. Kortom, dit appartement biedt een ideale combinatie van comfort, gemak en een uitstekende ligging, met alle voorzieningen die je maar kunt wensen binnen handbereik.
Kenmerken:
• Bouwjaar 1998
• Gebruiksoppervlak woonruimte ca. 89 m²;
• Afgesloten parkeergarage met eigen parkeerplaats en berging in souterrain.
• Gunstige en centrale ligging;
• VvE; bijdrage € 213,- per maand;
• Cv-ketel 2014;
• Energielabel B;
• Overdracht op korte termijn.
• Projectnotaris van toepassing.
Features
Transfer of ownership
- Last asking price
- € 340,000 kosten koper
- Asking price per m²
- € 3,820
- Status
- Sold
- VVE (Owners Association) contribution
- € 213.00 per month
Construction
- Type apartment
- Apartment with shared street entrance (apartment)
- Building type
- Resale property
- Year of construction
- 1998
- Type of roof
- Flat roof covered with asphalt roofing
- Accessibility
- Accessible for people with a disability and accessible for the elderly
Surface areas and volume
- Areas
- Living area
- 89 m²
- Exterior space attached to the building
- 12 m²
- External storage space
- 4 m²
- Volume in cubic meters
- 283 m³
Layout
- Number of rooms
- 3 rooms (2 bedrooms)
- Number of bath rooms
- 1 bathroom and 1 separate toilet
- Bathroom facilities
- Walk-in shower, bath, and washstand
- Number of stories
- 1 story
- Facilities
- Elevator and mechanical ventilation
- Located at
- 3rd floor
Energy
- Energy label
- B
- Insulation
- Completely insulated
- Heating
- CH boiler
- Hot water
- CH boiler
- CH boiler
- Intergas HRE 28/24 CW4 (gas-fired combination boiler from 2014, in ownership)
Cadastral data
- NEERBOSCH K 4463
- Cadastral map
- Ownership situation
- Full ownership
- NEERBOSCH K 4463
- Cadastral map
- Ownership situation
- Full ownership
- NEERBOSCH K 4463
- Cadastral map
- Ownership situation
- Full ownership
Exterior space
- Location
- Alongside a quiet road
- Balcony/roof terrace
- Balcony present
Storage space
- Shed / storage
- Built-in
- Facilities
- Electricity
Garage
- Type of garage
- Parking place
Parking
- Type of parking facilities
- Parking garage
VVE (Owners Association) checklist
- Registration with KvK
- Yes
- Annual meeting
- Yes
- Periodic contribution
- Yes (€ 213.00 per month)
- Reserve fund present
- Yes
- Maintenance plan
- Yes
- Building insurance
- Yes
Photos 36
© 2001-2025 funda



































