This house on Funda: https://www.funda.nl/en/detail/43999751/

Description
Welkom bij dit 3-kamerappartement met een tweetal slaapkamers, Energielabel A+, een moderne keuken en badkamer en een riant balkon op het oosten gelegen met mooi vrij uitzicht!
De woning bevindt zich op de 5e verdieping en is eenvoudig per lift of trap te bereiken.
Je loopt zo naar de Jumbo, Lidl of het stadscentrum; alles is eenvoudig binnen handbereik!
Daarnaast heeft het appartement een eigen parkeerplaats en een inpandige berging met elektra.
Indeling:
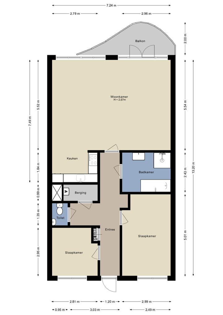
Entree, meterkast, toilet, video-intercom, hal vanwaar ieder vertrek te bereiken is. Er bevinden zich een tweetal slaapkamers in het appartement die allebei aan de galerij zijde zijn gesitueerd.
De woonkamer is bijzonder licht te noemen door de mooie glaspartijen en kijkt heerlijk weg. Tezamen met de keuken is dit een hele fijne leefruimte. De keuken is voorzien van een koelkast met vriesvak, vaatwasser, oven, magnetron, gaskookplaat, afzuigkap en bergruimte. Via de woonkamer is middels openslaande deuren het balkon te bereiken.
De badkamer is voorzien van een ligbad, separate douchecabine, wastafel en is grotendeels betegeld. Aan de overzijde van de badkamer is de witgoedruimte met opstelling CV (2017 / eigendom), WTW-installatie en is ideaal als voorraad -/ bergkast. Het toilet bevindt zich ernaast en is voorzien van een fonteintje.
De Kranshof / Tiel:
De Kranshof is een aangenaam en veilig appartementencomplex. Er zijn grote algemene ruimten met videofoon-installatie in de hal en een lift die je naar de juiste etage brengt van uw appartement, de parkeergarage en de berging. Ook is er een gezamenlijke, goed onderhouden binnentuin met volop zit mogelijkheden.
Op de begane grond van het appartementencomplex zijn verschillende supermarkten (Jumbo en Lidl) gevestigd. Het levendige centrum van Tiel ligt op loopafstand, net als rivier De Waal. Hier vind je de ideale combinatie van gemak van voorzieningen, levendigheid van het centrum en rust en ruimte langs de rivier.
Bijzonderheden:
- Woonoppervlakte 95 m²;
- Twee slaapkamers;
- Balkon op het oosten met mooi vrij uitzicht;
- Moderne keuken en badkamer;
- Nefit combiketel uit 2017 en warmte terugwin installatie;
- Energielabel A+;
- Servicekosten circa € 180,04,- per maand;
- Jaarlijkse VvE -bijdrage Beheervereniging circa € 267,16,-;
- Mooie groene binnentuin;
- Centrum en rivier de Waal op loopafstand;
- Boodschappen doen op de begane grond (Jumbo en Lidl);
- Eigen parkeerplaats en berging;
- Oplevering: in overleg, kan snel.
BIJZONDERHEDEN TEN AANZIEN VAN DE TRANSACTIE
- In de koopovereenkomst worden extra artikelen opgenomen, hieronder een opsomming van de belangrijkste bepalingen. De model-koopovereenkomst die door verkoper wordt gebruikt, vindt u in uw MOVE account;
- Het object wordt geleverd in de staat waarin het zich op dit moment bevindt ('As is, Where is'), wat onder andere inhoudt dat het object wordt opgeleverd in de huidige gebruikte, bouwkundige, technische en milieukundige staat.
- Verkoper heeft zelf nooit gebruik gemaakt van de woning, om deze reden is er geen vragenlijst en lijst van zaken aan de documentatie toegevoegd.
- De notariële eigendomsoverdracht van dit object dient plaats te vinden bij de daartoe aangewezen projectnotarissen: NL Notariaat te Etten-Leur in samenwerking met Hoffspoor notarissen. De volmacht voor de levering alsmede de hypotheekakte wordt getekend bij Koch & Compaijen te Utrecht.
- Indien er voordeel overdrachtsbelasting van toepassing is komt deze ten gunste van verkoper.
Interesse in deze woning? Kom gerust eens kijken samen met uw NVM aankoopmakelaar!
Features
Transfer of ownership
- Last asking price
- € 425,000 kosten koper
- Asking price per m²
- € 4,474
- Status
- Sold
- VVE (Owners Association) contribution
- € 180.04 per month
Construction
- Type apartment
- Galleried apartment (apartment)
- Building type
- Resale property
- Year of construction
- 2007
- Type of roof
- Flat roof
- Accessibility
- Accessible for people with a disability and accessible for the elderly
Surface areas and volume
- Areas
- Living area
- 95 m²
- Exterior space attached to the building
- 7 m²
- External storage space
- 7 m²
- Volume in cubic meters
- 299 m³
Layout
- Number of rooms
- 3 rooms (2 bedrooms)
- Number of bath rooms
- 1 bathroom and 1 separate toilet
- Bathroom facilities
- Walk-in shower, bath, sink, and washstand
- Number of stories
- 1 story
- Facilities
- Balanced ventilation system, elevator, mechanical ventilation, passive ventilation system, and TV via cable
Energy
- Energy label
- Insulation
- Completely insulated
- Heating
- CH boiler
- Hot water
- CH boiler
- CH boiler
- Nefit (gas-fired combination boiler from 2017, in ownership)
Cadastral data
- TIEL C 7900
- Cadastral map
- Ownership situation
- Full ownership
- TIEL C 7900
- Cadastral map
- Ownership situation
- Full ownership
- TIEL C 7900
- Cadastral map
- Ownership situation
- Full ownership
Exterior space
- Location
- Alongside a quiet road, in residential district and unobstructed view
- Balcony/roof terrace
- Balcony present
Storage space
- Shed / storage
- Storage box
- Facilities
- Electricity
Garage
- Type of garage
- Underground parking
Parking
- Type of parking facilities
- Parking on gated property
VVE (Owners Association) checklist
- Registration with KvK
- Yes
- Annual meeting
- Yes
- Periodic contribution
- Yes (€ 180.04 per month)
- Reserve fund present
- Yes
- Maintenance plan
- Yes
- Building insurance
- Yes
Photos 38
© 2001-2026 funda





































