This house on Funda: https://www.funda.nl/en/detail/89353406/

Description
Deze sfeervolle jaren ’30 tussenwoning ademt karakter en biedt verrassend veel ruimte. Met maar liefst vier slaapkamers, twee badkamers (waarvan één en suite), een privacy volle achtertuin én authentieke elementen zoals glas-in-loodramen en sfeervolle tegelvloeren is dit een woning die je gezien móét hebben.
Pluspunten op een rij:
- 6 zonnepanelen
- 4 Slaapkamers
- 2 Badkamers, waarvan één en suite
- En suite woonkamer met openslaande tuindeuren
- Dichte keuken + bijkeuken
- Zonnige en privacy volle achtertuin
- Authentieke jaren ’30 details: glas-in-lood, paneeldeuren, tegelvloeren
Indeling
Kelder:
- Vanuit de hal is de droge kelder (ca. 10m2) met stahoogte bereikbaar – ideaal voor provisie en meer!
Begane grond:
- Via de karakteristieke voordeur betreed je de hal met originele tegelvloer en fraaie paneeldeuren.
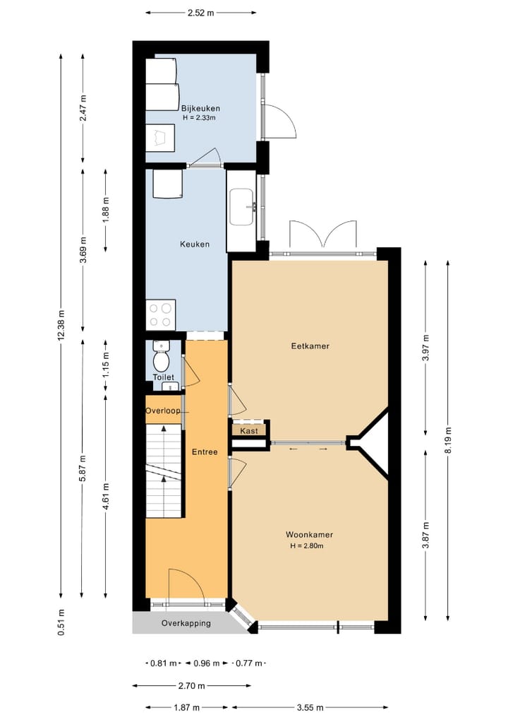
- De en suite woonkamer (ca. 29m2) is typisch jaren ’30 stijl: met openslaande deuren naar de tuin die zorgen voor veel licht, twee schouwen met fraaie houtkachel (gasaansluiting aanwezig), houten vloer en glas-in-loodramen geven de ruimte extra allure.
- Aan de achterzijde bevindt zich de dichte keuken (ca. 8m2), uitgevoerd in landelijke stijl. Vanuit hier is er toegang tot de handige bijkeuken (ca. 6m2) met extra bergruimte en witgoedaansluiting.
Eerste verdieping:
- Op deze verdieping vind je drie slaapkamers (ca. 14m2, ca. 12m2 en ca. 4m2), allen met grote raampartijen en authentieke details als muurkasten of wastafels. De Master bedroom heeft handmatig te bedienen rolluiken.
- De badkamer (ca. 5,5m2) is modern en praktisch ingericht met een inloopdouche (2017), wastafelmeubel en tweede toilet. Een deur geeft toegang tot het plat dak.
Zolderverdieping:
- De verrassend ruime zolderverdieping is een volwaardige verdieping met een royale vierde slaapkamer (ca. 13m2) voorzien van een dakkapel, vliering en een badkamer en suite. Ideaal als master bedroom of gastenverblijf.
Tuin:
- De zonnige achtertuin heeft voldoende privacy middels de nieuwe royale houten overkapping (2024).
- De vrije achterom komt uit op de Herungerstraat.
Goed om te weten:
- Het dak is bekleed met 9 zonnepanelen, waarvan 3 in eigendom en 6 die gehuurd worden via de gemeente Venlo.
- De cv-ketel is van het Merk Nefit (Ecomline), heeft in 2025 een laatste onderhoud gehad en is naar alle waarschijnlijkheid toe aan vervanging.
- Er is een recht van overpad aanwezig waarmee de buren middels de tuin gebruik mogen maken van de vrije achterom.
Ligging:
Op een steenworp afstand van het centrum van Venlo, bevindt zich deze woning aan een rustig hofje. Hier woont u op loopafstand van diverse voorzieningen als: de bakker, slager, scholen en andersoortige voorzieningen. Het station, uitvalswegen en de Duitse grens liggen allemaal op korte afstand. Met een abonnement parkeert u eenvoudig voor de deur. Kortom, een perfecte combinatie van rust, gemak en uitstekende bereikbaarheid!
Features
Transfer of ownership
- Last asking price
- € 389,000 kosten koper
- Asking price per m²
- € 2,992
- Status
- Sold
Construction
- Kind of house
- Single-family home, row house
- Building type
- Resale property
- Year of construction
- 1938
- Type of roof
- Gable roof
Surface areas and volume
- Areas
- Living area
- 130 m²
- Other space inside the building
- 14 m²
- Plot size
- 108 m²
- Volume in cubic meters
- 500 m³
Layout
- Number of rooms
- 5 rooms (4 bedrooms)
- Number of bath rooms
- 2 separate toilets
- Number of stories
- 4 stories
- Facilities
- Rolldown shutters and solar panels
Energy
- Energy label
- C
- Insulation
- Roof insulation, double glazing, energy efficient window and secondary glazing
- Heating
- CH boiler and fireplace
- Hot water
- CH boiler
Cadastral data
- VENLO C 1898
- Cadastral map
- Area
- 108 m²
Exterior space
- Location
- Alongside a quiet road and in residential district
- Garden
- Back garden
- Back garden
- 1 m² (1.00 metre deep and 1.00 metre wide)
- Garden location
- Located at the southeast with rear access
Storage space
- Shed / storage
- Built-in
Photos 35
© 2001-2025 funda


































