
Admiraal De Ruijterweg 264-21055 MP AmsterdamLandlust-Zuid
€ 3,750 p/mo.
Description
*** Interesse enkel via e-mail kenbaar maken! / Express interest by email only! ***
Nieuw te huur! Wij mogen u aanbieden dit dubbele bovenhuis met eigen opgang voorzien van 4 slaapkamers!
INDELING
Begane grond
Via eigen trapopgang bereikt u de tweede verdieping.
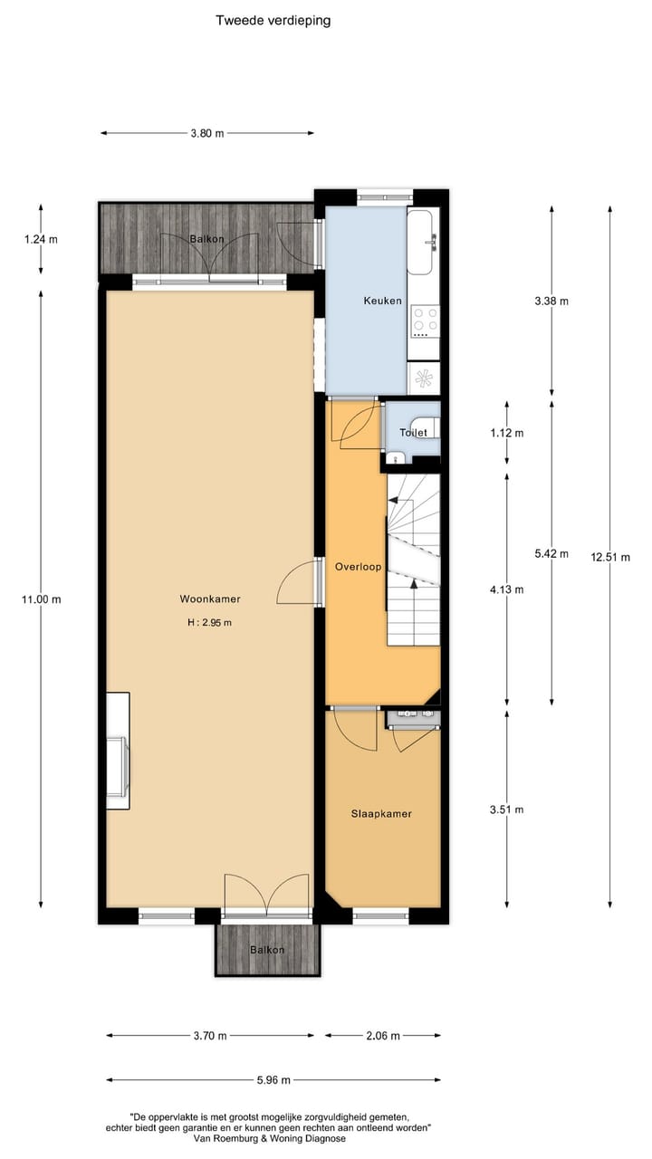
Tweede verdieping
Doorzonwoonkamer van ruim 41 m² met plafondhoogte van ca. 2,95m, Frans balkon aan de voorzijde en verdiept balkon aan de achterzijde (oosten) van ca. 5 m².
Nette half open keuken voorzien van diverse inbouwapparatuur. Overloop met gastentoilet en slaapkamer welke eveneens kan dienen als een kinderspeelkamer of thuiswerkplek.
Derde verdieping
Overloop met toegang tot alle vertrekken. Twee zéér ruime slaapkamers en een kinderkamer. Badkamer voorzien van douche, ligbad en wastafelmeubel. Op de overloop een separate toilet en wasruimte.
Plafondhoogte ca. 2,75m.
LIGGING & BEREIKBAARHEID
De woning is gelegen in de wijk “Bos en Lommer”, om de hoek van de Bos en Lommerweg. De buurt is de laatste jaren enorm aangepakt en daarmee zeer aantrekkelijk geworden. Zo hebben er diverse renovaties plaatsgevonden, zijn er nieuwe hippe trendy (lunch-) cafeetjes en speciaalzaken gevestigd en is de buurt aanzienlijk verjongd. In de nabije omgeving treft men tevens de Food- en Filmhallen, de Ten Katemarkt , theater/restaurant Podium Mozaïek, maar ook speeltuinen, scholen, kinderopvang en natuurlijk het heerlijke Westerpark. Er is vanaf het appartement een zeer goede ontsluiting naar Ringweg A-10. Het openbaar vervoer vindt u om de hoek (bus en tram), en station Sloterdijk is op fietsafstand.
Bijzonderheden:
- Beschikbaar per direct
- Niet geschikt voor studenten en-/of delers
- Verhuur zonder meubilair
- Waarborgsom bedraagt 2 maanden huur
- Huurovereenkomst (ROZ) voor minimaal 12 maanden
- Huurprijs is exclusief kosten voor gas, water, elektriciteit, internet en t.v. (eigen contracten)
- Energielabel D, geldig tot 07-05-2035
- Verhuurder behoudt zich recht van gunning voor
Features
Transfer of ownership
- Listed since
- Acceptance
- Available in consultation
- Rental price
- € 3,750 per month (no service charges)
- Deposit
- € 7,500 one-off
- Rental agreement
- Indefinite duration
- Status
- Available
Construction
- Type apartment
- Upstairs apartment (double upstairs apartment)
- Building type
- Resale property
- Year of construction
- 1912
- Type of roof
- Flat roof covered with asphalt roofing
Surface areas and volume
- Areas
- Living area
- 136 m²
- Exterior space attached to the building
- 6 m²
- Volume in cubic meters
- 387 m³
Layout
- Number of rooms
- 6 rooms (4 bedrooms)
- Number of bath rooms
- 1 bathroom and 2 separate toilets
- Bathroom facilities
- Shower, double sink, bath, and washstand
- Number of stories
- 2 stories
- Located at
- 2nd floor
Energy
- Energy label
- Heating
- CH boiler
- Hot water
- CH boiler
- CH boiler
- Gas-fired combination boiler
Exterior space
- Location
- In centre and in residential district
- Balcony/roof terrace
- Balcony present
Parking
- Type of parking facilities
- Paid parking and resident's parking permits
Photos 23
© 2001-2026 funda






















