
Buiten de Veerpoort 812871 CC SchoonhovenSchoonhoven-Oude Stad
€ 2,200 p/mo.
Description
Omschrijving:
Aan Buiten de Veerpoort 81 wordt dit royale nieuwbouwappartement te huur aangeboden!
Het driekamerappartement beschikt over een oppervlakte van circa 105 vierkante meter en is daardoor van een ruim formaat. De woning beschikt over een woonkamer met een open keuken en toegang tot de heerlijke buitenruimte, gelegen op het westen! Door de raampartij aan de westkant is de woonkamer voorzien van een prettig lichtinval. Verder beschikt het appartement over twee slaapkamers, een badkamer met inloopdouche, een los toilet en een technische ruimte.
Het appartement is tevens uitgerust met een externe berging van circa 5 vierkante meter en een eigen parkeerplaats. Daarnaast beschikt het appartement over duurzame voorzieningen zoals een warmtepomp, vloerverwarming en vier zonnepanelen. Dit leidt dan ook tot energielabel A+++!
De woning bevindt zich aan de noordzijde op de derde woonlaag van ‘de Zagerij’; één van de drie gebouwen van nieuwbouwproject ‘Nijverij’. Het project biedt een unieke woonervaring in een groene omgeving met uitzicht op rivier de Lek met de voorzieningen bij de hand!
Op korte afstand bevindt zich de binnenstad van het historische Schoonhoven, een stad met een rijke geschiedenis en karakteristieke elementen. Schoonhoven beschikt over supermarkten, winkels, restaurants, sport- en recreatiemogelijkheden. Grotere steden als Gouda (20 minuten rijafstand), Rotterdam en Utrecht (30 minuten rijafstand) zijn gemakkelijk te bereiken.
De verhuurder heeft een voorkeur voor een huurperiode van 24 tot 30 maanden.
Bijzonderheden:
- Driekamerappartement met fijne buitenruimte;
- Riante woonkamer met open keuken;
- Twee slaapkamers;
- Badkamer met inloopdouche, wastafel en tweede toilet;
- Fijne buitenruimte op het westen;
- Eigen parkeerplaats;
- Externe berging (circa 5 vierkante meter);
- Vier zonnepanelen aanwezig;
- De servicekosten bedragen 132 euro per maand;
- Energielabel A+++;
- Oplevering per 1 april 2026.
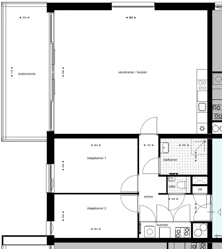
Indeling:
Appartement:
Men betreedt het gebouw via de gemeenschappelijke ingang. Via de trap of de lift is de derde woonlaag gemakkelijk te betreden. De voordeur van het appartement biedt toegang tot de entree. Hier bevinden zich het toilet met fonteintje, de meterkast, de technische ruimte, de wasmachine-aansluiting en ruimte voor een kapstok/schoenenkast.
Via de entree bereikt men de woonkamer met open keuken. De woonkamer biedt voldoende ruimte voor een fijne zithoek en een eethoek. De open keuken is voorzien van een keukenwand en een spoeleiland en beschikt over een RVS spoelbak, een eenhendelmengkraan, een inductiekookplaat, een afzuigkap, een combi-oven, een vaatwasser en een koel-vriescombinatie.
In het appartement zijn twee slaapkamers aanwezig, beiden gelegen op het westen. Tegenover de slaapkamers bevindt zich de badkamer, welke is uitgerust met een ruime inloopdouche met een stortdouche, een wastafel, een handdoekradiator en een tweede toilet.
Het appartement is tevens voorzien van een buitenruimte, gelegen op het westen. Deze beschikt over een oppervlakte van circa 19 vierkante meter en biedt de mogelijkheid om verschillende zitgelegenheden te creëren.
De woonkamer, de slaapkamers en de entree zijn voorzien van een houtlook PVC-vloer. De badkamer en het toilet beschikken over een tegelvloer. Het gehele appartement beschikt over vloerverwarming.
Berging en parkeerplaats:
Het appartement beschikt over een externe bergruimte op de begane grond. Deze heeft een oppervlakte van circa 5 vierkante meter. Daarnaast behoort bij de woning één eigen parkeerplaats op het parkeerterrein.
Algemeen:
De huur wordt maandelijks vooruitbetaald. De huurprijs en servicekosten worden jaarlijks geïndexeerd. Ter zekerheidsstelling wordt er gevraagd om een waarborgsom van twee keer de maandhuur.
Er wordt een huurcontract opgesteld conform het ROZ-model. Roken in het appartement(sgebouw) is niet toegestaan. Het houden van huisdieren is in overleg en op voorafgaande schriftelijke toestemming van de verhuurder. Huisdieren mogen geen overlast veroorzaken.
Verhuurder behoudt zich het recht van gunning voor. Elke transactie behoeft de goedkeuring van de verhuurder. Een huurderscheck kan onderdeel zijn van de gunning.
Bent u geïnteresseerd in de huurwoning of heeft u vragen, neem dan contact met ons op!
* De woning is ingemeten conform de branchebrede meetinstructies (BBMI), afgeleid van de NEN 2580 normering. De meetinstructie is bedoeld om een meer eenduidige manier van meten toe te passen voor het geven van een indicatie van de gebruiksoppervlakte. De meetinstructie sluit verschillen in meetuitkomsten niet volledig uit, door bijvoorbeeld interpretatieverschillen, afrondingen of beperkingen bij het uitvoeren van de meting.
* De verstrekte informatie is met de nodige zorgvuldigheid samengesteld. Onzerzijds wordt echter geen enkele aansprakelijkheid aanvaard voor enige onvolledigheid, onjuistheid of anderszins, dan wel de gevolgen daarvan. Alle opgegeven maten en oppervlakten zijn indicatief.
Features
Transfer of ownership
- Listed since
- Acceptance
- Available on 4/1/2026
- Rental price
- € 2,200 per month (no service charges)
- Deposit
- € 4,400 one-off
- Rental agreement
- Temporary rent
- Status
- Available
Construction
- Type apartment
- Upstairs apartment (apartment)
- Building type
- New property
- Year of construction
- 2025
- Type of roof
- Flat roof covered with asphalt roofing
- Quality marks
- Woningborg Garantiecertificaat
Surface areas and volume
- Areas
- Living area
- 105 m²
- External storage space
- 5 m²
- Volume in cubic meters
- 340 m³
Layout
- Number of rooms
- 3 rooms (2 bedrooms)
- Number of bath rooms
- 1 bathroom and 1 separate toilet
- Bathroom facilities
- Walk-in shower, toilet, underfloor heating, and washstand
- Number of stories
- 1 story
- Facilities
- Sliding door and solar panels
Energy
- Energy label
- Insulation
- Roof insulation, double glazing, insulated walls and floor insulation
- Heating
- Complete floor heating and heat pump
- Hot water
- Electrical boiler
Cadastral data
- SCHOONHOVEN B 2556
- Cadastral map
- Ownership situation
- Full ownership
Exterior space
- Location
- Open location
- Balcony/roof terrace
- Balcony present
Parking
- Type of parking facilities
- Parking on private property
Photos 4
© 2001-2026 funda



