
Steur 422742 ZW WaddinxveenTriangel
€ 600 p/mo.
Description
MULTIFUNCTIONELE GARAGEBOXEN TE HUUR IN WADDINXVEEN
Modern garageboxcomplex in Business Parkrand met 24/7 toegang en zakelijke mogelijkheden
Aan de Zuidelijke Rondweg in Waddinxveen, direct naast de nieuwbouwwijk Park Triangel, is Business ParkRand ontwikkeld: een moderne werkomgeving met hoogwaardige garageboxen die zowel voor zakelijk als particulier gebruik beschikbaar zijn. Of u nu een startende ondernemer bent, een zzp’er met behoefte aan werkruimte, of juist op zoek bent naar veilige en toegankelijke opslag of stalling, hier vindt u de perfecte oplossing.
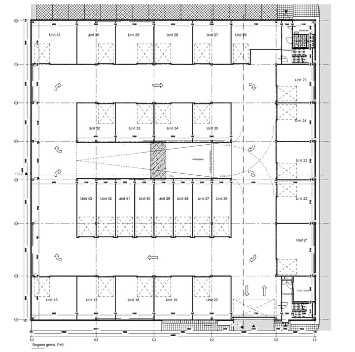
Midden op het terrein van de eerste fase is een gebouw gerealiseerd met in totaal 184 garageboxen, verspreid over vier verdiepingen. De boxen variëren in grootte van circa 15 m² tot 51 m². Dankzij een eigen postadres per unit zijn de garageboxen ook zakelijk inzetbaar, bijvoorbeeld als inschrijfadres.
De boxen zijn 24 uur per dag toegankelijk via een beveiligde elektrische schuifpoort. Elke garagebox is bereikbaar met de auto en voorzien van een (elektrische) overheaddeur, een standaard stroomaansluiting en verlichting. Op iedere etage bevinden zich sanitaire voorzieningen met toilet, voorportaal en wasbak, waardoor de units ook geschikt zijn voor langduriger gebruik als werkruimte.
De ligging van ParkRand is ideaal: nabij de A12 en N207, met uitstekende verbindingen richting Gouda, Boskoop, Zoetermeer en Rotterdam.
Station Waddinxveen Triangel ligt op loopafstand, met elk kwartier een treinverbinding richting Gouda en Alphen a/d Rijn – ideaal voor ondernemers en gebruikers die ook met het openbaar vervoer reizen.
Daarbij sluit de uitstraling van het complex naadloos aan op de architectuur van Park Triangel. Denk aan industriële details, metselwerk en een groene inrichting die is doorgetrokken vanuit de woonwijk. Het maakt van ParkRand de enige werklocatie binnen deze levendige woonomgeving met ruim 2.900 huishoudens.
Indeling
TYPE G17 – 51 m² (BEGANE GROND)
Bouwnummer 21 is gelegen op de begane grond van het complex, direct naast de hoofdentree – een gunstige en goed bereikbare locatie. Met een bruto vloeroppervlakte van circa 51 m² biedt deze unit extra ruimte en flexibiliteit.
De unit heeft een afmeting van circa 8,10 meter breed en 6 meter diep. Voorzien van een handmatig bedienbare overheaddeur met een royale doorrijhoogte en -breedte van circa 3 meter. Daarnaast beschikt de unit over een geïntegreerde loopdeur en krachtstroomaansluiting, wat het gebruiksgemak en de functionele inzetbaarheid verder vergroot. Dankzij de ruime opzet en strategische ligging is bouwnummer 21 ideaal voor opslag, werkruimte of kleinschalige bedrijfsactiviteiten.
Afmetingen:
- Lengte: 6,00 meter
- Breedte: 8,10 meter
Hoogte & doorrijhoogte per verdieping:
- Eerste verdieping: hoogte ca. 3,35 m | doorrijhoogte ca. 3,00 m
- Tweede verdieping: hoogte ca. 2,70 m | doorrijhoogte ca. 2,35 m
- Derde verdieping: hoogte ca. 2,80 m | doorrijhoogte ca. 2,20 m
Op elke verdieping van het gebouw bevindt zich een centrale sanitaire ruimte, voorzien van een toilet, een wastafel met koudwaterkraan en een uitstortgootsteen. Deze faciliteiten maken de garageboxen geschikt voor zowel kort als langer gebruik, bijvoorbeeld als werkruimte of atelier. De sanitaire voorzieningen worden centraal onderhouden via de Vereniging van Eigenaren (VvE), wat bijdraagt aan een nette en verzorgde uitstraling van het complex.
Huurcondities:
Type G17 - 51 m2 BESCHIKBAAR:
Vanaf € 600,- per maand excl. BTW, € 7.200,- per jaar excl. BTW.
Servicekosten:
Bijdrage servicekosten € 90,- per maand per unit.
Huurtermijn:
In overleg.
Huuringangsdatum:
Beschikbaar na oplevering, verwacht in januari 2026.
Huurprijsherziening:
Jaarlijks, voor het eerst één jaar na huuringangsdatum, op basis van de wijziging van het maandprijsindexcijfer volgens de consumentenprijsindex (CPI), reeks CPI-werknemers Laag (2015=100) zoals gepubliceerd door het Centraal Bureau voor de Statistiek (CBS).
Huurbetaling:
Per maand vooruit.
Waarborgsom:
Drie (3) maanden huur incl. BTW.
Huurovereenkomst:
Conform model ROZ.
BTW:
Verhuurder wenst te opteren voor BTW-belaste huur en verhuur. Ingeval huurder de BTW niet kan verrekenen zal de huurprijs worden verhoogd ter compensatie van de gevolgen van het vervallen van de mogelijkheid om te opteren voor BTW-belaste huur.
Bijzonderheden
- 24/7 toegankelijk via een elektrische schuifpoort
- Elke box is bereikbaar met de auto
- Voorzien van (elektrische) overheaddeur, verlichting en stroomaansluiting
- Sanitaire voorzieningen op elke verdieping (toilet, voorportaal, wasbak)
- Elke unit heeft een eigen postadres, dus ook interessant om zakelijk te gebruiken
- Veilig en representatief terrein met cameratoezicht
De verhuur is gestart en de eerste units worden binnenkort opgeleverd. Wil jij verzekerd zijn van een garagebox op deze unieke en goed bereikbare locatie? Neem vandaag nog contact met ons op voor de mogelijkheden!
Deze vrijblijvende objectinformatie is met de meeste zorg samengesteld, maar voor de juistheid daarvan kunnen wij geen aansprakelijkheid aanvaarden. Ook kan aan de vermelde gegevens geen enkel recht worden ontleend. Alle informatie is enkel en alleen bedoeld voor de presentatie van het object en niet meer dan een uitnodiging tot het doen van een bod. Eventueel bijgevoegde plattegronden zijn slechts indicatief.
Features
Transfer of ownership
- Listed since
- Acceptance
- Available in consultation
- Rental price
- € 600 per month (excluding service charges à € 90.00 p/mo.)
- Deposit
- € 1,800 one-off
- Rental agreement
- Indefinite duration
- Status
- Available
Construction
- Type of parking facilities
- Garage
- Building type
- New property
Layout
- Plot size
- 51 m²
- Capacity
- 1
- Dimensions
- 51 m²
Cadastral data
- WADDINXVEEN E 4984
- Cadastral map
- Area
- 51 m²
- Ownership situation
- Full ownership
Photos 8
Floorplans
© 2001-2026 funda








