
Nicolaas Pienemanstraat 173812 SE AmersfoortGerrit van Stellingwerfstraat e.o.
€ 435,000 k.k.
Description
U HEEFT EEN OBJECTCODE NODIG ALS U ONS BELT. DE CODE IS: 8 4 7 4 8
Wonen in het bruisende Soesterkwartier - met ruimte om het helemaal eigen te maken.
In de levendige en karaktervolle wijk Soesterkwartier staat deze tussenwoning te wachten op nieuwe bewoners met oog voor mogelijkheden. Hier woon je op een plek waar sfeer en ligging samenkomen, met het stadsleven dichtbij én alle ruimte om van dit huis een eigentijdse, warme thuisbasis te maken. De basis is solide, het comfort deels al verduurzaamd - en de binnenzijde nodigt uit tot jouw eigen invulling.
Het Soesterkwartier - stads, stoer en verrassend groen
Wonen in het Soesterkwartier betekent wonen in een wijk met karakter. Op een steenworp van het Eemplein, de historische binnenstad en station Amersfoort Centraal. Je fietst zo naar winkels, horeca en het park, terwijl je aan de andere kant ook snel in het groen bent - denk aan bos Birkhoven, het Bosbad en DierenPark Amersfoort. Scholen, speeltuinen en sportvelden liggen om de hoek. Hier woon je stads én rustig tegelijk.
Indeling van de woning
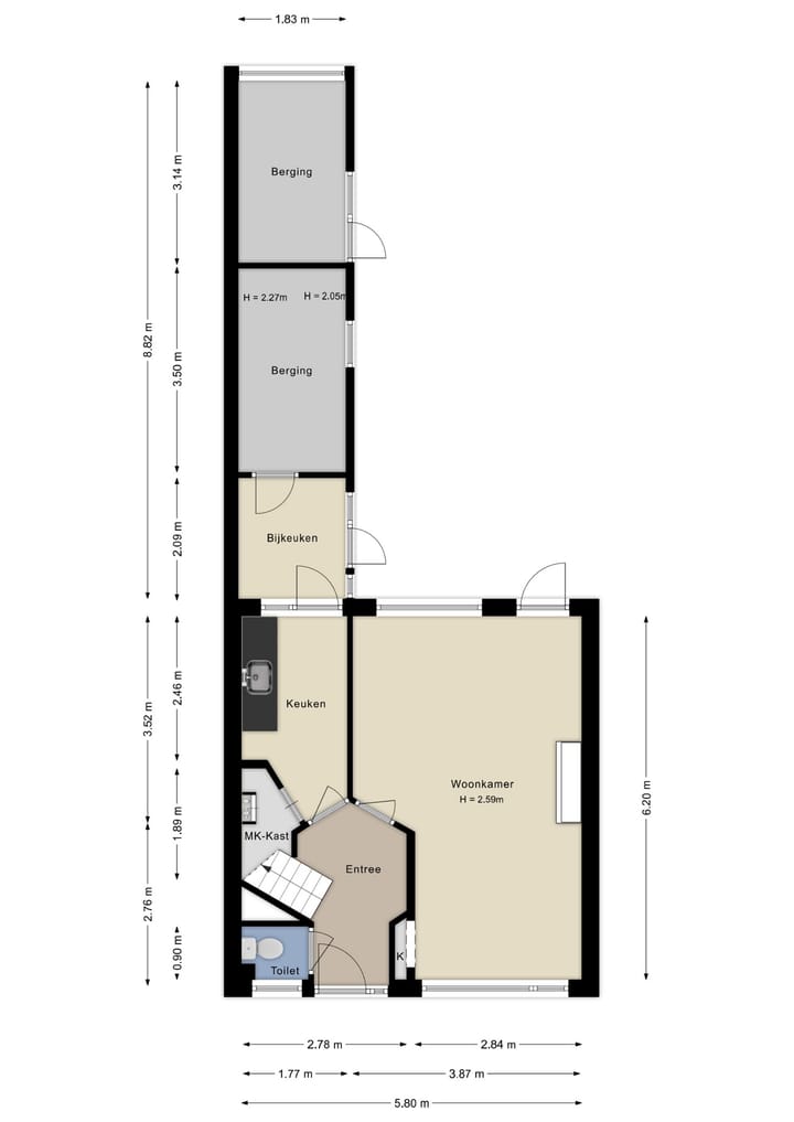
Begane grond
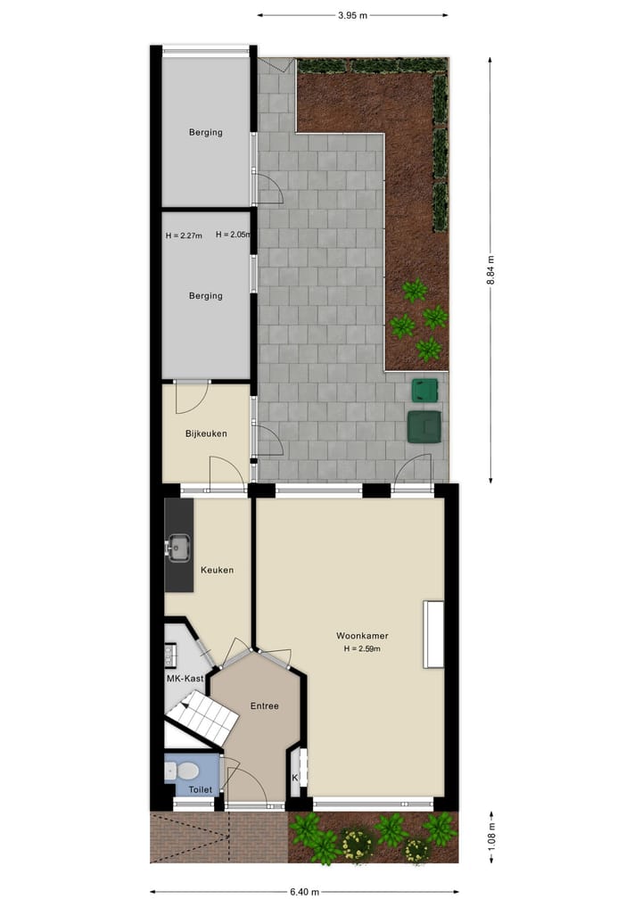
Je komt binnen via de hal, waar zich het toilet bevindt. Vanuit hier stap je de lichte doorzonwoonkamer in, met aan de voorzijde een sfeervolle haard en aan de achterzijde toegang naar de achtertuin. Een vaste kast biedt praktische bergruimte.
De dichte keuken is eenvoudig en voorzien van drie losse keukenblokken. Onder de trap bevindt zich een kelderkast met de meterkast. Vanuit de keuken is de aangebouwde bijkeuken (matige staat) bereikbaar - hier vind je de aansluiting voor de wasmachine en toegang tot zowel de oorspronkelijke berging als de achtertuin.
Eerste verdieping
De vaste trap brengt je naar de overloop met toegang tot drie slaapkamers. Twee kamers liggen aan de achterzijde, de derde aan de voorzijde. Alle slaapkamers beschikken over een vaste kast. Vanuit de voorslaapkamer leidt een vlizotrap naar de bergzolder. De badkamer is volledig betegeld en uitgerust met een douche en wastafel.
Vliering
De bergzolder is bereikbaar via een vlizotrap en beschikt over een dakraam. Ideaal voor opslag.
Bijzonderheden
- Gelegen in het geliefde Soesterkwartier.
- Doorzonwoonkamer met haard en toegang tot de tuin.
- Bijkeuken én twee bergingen.
- Achtertuin op het zuidoosten met achterom.
- Drie slaapkamers, allemaal voorzien van HR++ glas (2023).
- Vlizotrap naar bergzolder met dakraam.
- Remeha Avanta cv-ketel (bouwjaar ca. 2017).
- 6 zonnepanelen voor extra duurzaamheid.
- Grotendeels verduurzaamd.
- Gelegen in het populaire Soesterkwartier nabij station en binnenstad.
- Energielabel A.
- Vaste projectnotaris; De Vries Vellenga Leenknegt notarissen.
- Voorrang sociale huurders gemeente Amersfoort van woningcorporaties Alliantie, Portaal en Omnia Wonen.
Vraagprijs: € 435.000,- k.k.
Wat je verder moet weten:
- Verkoper verkoopt de woning voor eigen gebruik (of gebruik door eerstegraads familielid), welke persoon daar zijn/haar hoofdverblijf gaat hebben;
- Verkoper verkoopt met anti-speculatiebeding (niet verhuren noch verkopen gedurende een periode van 02 jaar);
- Het betreft een voormalige huurwoning van de Alliantie;
- Niet bewoning-, asbest en ouderdomsclausule van toepassing;
- Verkoper behoudt zich het recht van gunning voor tot tekenen van de koopakte;
- Verkoper verkoopt niet aan een belegger of koper met meer onroerend goed op zijn naam;
- Oplevering per direct.
VOORRANGSREGELING DE ALLIANTIE
Als sociale huurder (bij de Alliantie of een andere corporatie) krijg je vaak voorrang op de koopwoningen en/of middensegment huurwoningen die wij aanbieden. Dit doen wij, omdat wij streven naar een passende woning voor zoveel mogelijk mensen. De woning die wordt achtergelaten kan dan weer aangeboden worden aan mensen die op de wachtlijst staan voor een betaalbare huurwoning. Zo krijgen meer mensen de kans om te wonen in een huis die past bij hun situatie.
Zijn er meerdere huurders die hebben geboden? Dan krijgt de huurder met het hoogste bod (in een bepaalde voorrangscategorie) voorrang. Wil je aanspraak maken op de voorrang? Meld je dan aan voor de e-mail updates op ik-zoek.de-alliantie.nl, geef je huidige woonsituatie op bij de bezichtigingsaanvraag en meld het bij het uitbrengen van je bod bij de makelaar. De voorrangsregeling vervalt bij een bod onder de vraagprijs.
Benieuwd naar de complete voorrangsregeling? Kijk op ik-zoek.de-alliantie.nl en zie direct wat de voorrangsregeling voor jou betekent.
Wil je als sociale huurder aanspraak maken op de voorrang? Vergeet niet bij de makelaar te melden dat je een huurder bent van een sociale huurwoning van Alliantie, Portaal en Omnia Wonen in Amersfoort.
De voorrangsregeling vervalt bij een bod onder de vraagprijs. Deze informatie is door ons met de nodige zorgvuldigheid samengesteld. Onzerzijds wordt echter geen enkele aansprakelijkheid aanvaard voor enige onvolledigheid, onjuistheid of anderszins, dan wel de gevolgen daarvan. Alle opgegeven maten en oppervlakten zijn indicatief.
Features
Transfer of ownership
- Listed since
- Acceptance
- Available immediately
- Asking price
- € 435,000 kosten koper
- Asking price per m²
- € 5,724
- Status
- Available
Construction
- Kind of house
- Single-family home, row house
- Building type
- Resale property
- Year of construction
- 1953
Surface areas and volume
- Areas
- Living area
- 76 m²
- Other space inside the building
- 16 m²
- External storage space
- 6 m²
- Plot size
- 104 m²
- Volume in cubic meters
- 355 m³
Layout
- Number of rooms
- 4 rooms (3 bedrooms)
- Number of stories
- 3 stories
- Facilities
- Skylight, optical fibre, mechanical ventilation, passive ventilation system, TV via cable, and solar panels
Energy
- Energy label
- A
- Heating
- CH boiler
- Hot water
- CH boiler
- CH boiler
- Remeha Avanta (gas-fired combination boiler from 2017, in ownership)
Cadastral data
- AMERSFOORT H 4576
- Cadastral map
- Area
- 104 m²
Exterior space
- Location
- In residential district
- Garden
- Back garden
- Back garden
- 35 m² (8.84 metre deep and 3.95 metre wide)
- Garden location
- Located at the southeast with rear access
Photos 39
© 2001-2025 funda






































