
Description
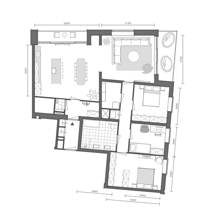
Ervaar de ruimte in dit appartement van 133 m², waar vier kamers perfect zijn voor jouw leef- en werkbehoeften. Met een energielabel A++ ben je verzekerd van een comfortabele en energiezuinige woning. De balkons op het zuiden en westen bieden je de kans om te genieten van de zon, zowel in de ochtend als in de avond.
Een unieke leefruimte die inspireert: Stap binnen in deze woonkamer, het eerste wat je opvalt is het iconische ronde raam – een echte blikvanger – dat een panoramisch uitzicht biedt op het buitenleven in Elzenhagen Zuid en tegelijkertijd een overvloed aan natuurlijk licht binnenlaat. Dit architectonisch statement geeft de ruimte een unieke identiteit en zorgt voor een serene sfeer en maakt dit appartemten bijzonder.
De highlights van deze woning:
- Woningtype: Appartement
- Woonoppervlakte: 133 m²
- Aantal kamers: 4
- 3 slaapkamers
- Energielabel: A++
- Balkonligging: zuid + west
De indeling van het appartement is veelzijdig en biedt mogelijkheden om het in te richten zoals jij dat wilt. Gelegen in de groene en autoluwe Elzenhagen Noordbuurt, heb je de perfecte combinatie van rust en nabijheid tot het bruisende Amsterdam.
De getoonde (basis)plattegrond is van bouwnummer 479.
ERFPACHT
Als eerste koper van de woning heb je de mogelijkheid om te kiezen voor afkoop van de erfpacht (eeuwigdurend) of voor betaling van jaarlijkse indexcanon. Wist je dat de indexcanon fiscaal aftrekbaar is? En dat het kopen op basis van jaarlijkse indexcanon ook andere financiële voordelen zou kunnen? Houd er rekening mee dat de canon verplichting van invloed is op de leencapaciteit. Onze hypotheekadviseur kan je hier meer over vertellen, kijk voor meer informatie op Elzenhagen Zuid - Financiering - Erfpacht.
*De finale bedragen worden door de gemeente Amsterdam vastgesteld bij levering van een definitieve erfpachtaanbieding. Aan deze bedragen kunnen geen rechten worden ontleend.
STALLINGSPLAATS:
** De koopsom voor de stallingsplaats (€ 45.000,- obv eeuwigdurende afgekochte erfpacht) is niet inbegrepen in de v.o.n.-prijs van de appartement. De toegewezen stallingsplaats dient verplicht te worden afgenomen.
Features
Transfer of ownership
- Listed since
- Acceptance
- Available in consultation
- Asking price
- € 800,000 vrij op naam
- Asking price per m²
- € 6,015
- Status
- Under option
Construction
- Year of construction
- After 2020
- Type apartment
- Upstairs apartment (apartment)
- Building type
- New property
Surface areas and volume
- Areas
- Living area
- 133 m²
- Exterior space attached to the building
- 14 m²
- Volume in cubic meters
- 380 m³
Layout
- Number of rooms
- 4 rooms (3 bedrooms)
- Number of bath rooms
- 1 bathroom and 1 separate toilet
- Bathroom facilities
- Shower and sink
- Number of stories
- 1 story
Energy
- Energy label
Photos 14
© 2001-2026 funda













