
Description
Lovely 3-room apartment of 81sqm with sunny balcony, located on the top floor of an historical warehouse named Friday. The lease has been bought off forever.
Warehouse
The warehouse was originally built in 1898 and served as storage for various goods such as nuts, tea and other spices. Around 1990, the building was completely renovated and legally divided into apartments, and equipped with all the comforts such as concrete floors, good insulation, double glass, elevators and a light-flooded atrium. The historic character has been well preserved, including the robust cast iron columns and the beautiful facades.
Area
The house is quietly located at the rear of the building. The bustle of the Dappermarkt and Javastraat can be reached within a few cycling minutes. Also within walking distance of various shops and restaurants such as the Brazil shopping center, the organic fresh market on C. van Eesterenlaan on Wednesdays and nice restaurants on the recently developed Cruquius Island.
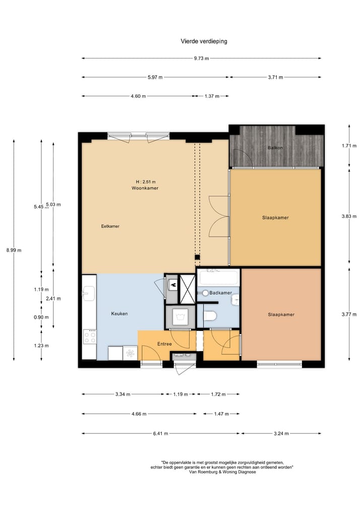
Lay-out apartment
You can reach the top (4th) floor by elevator. Entrance to the apartment: living room with open kitchen and French balcony; large glass doors to the spacious bedroom with south-facing balcony. This makes the living room feel even more spacious. The second bedroom is accessible via the hall, as well as the luxurious bathroom with bath, shower and toilet. Washing machine cupboard in the hall, and a separate storage room on the ground floor of approx. 5m2.
Details:
-The leasehold has already been bought off forever.
-Energy label B
-House renovated in 2019
-Cast floor throughout the house with underfloor heating
-Very active and healthy VvE with maintenance plan, professionally managed by VvE Munnik Beheer.
-Monthly contribution to the VvE is € 254.75
-The living area has been measured in accordance with NEN 2580, measurement report is available.
-Delivery in consultation
Features
Transfer of ownership
- Last asking price
- € 575,000 kosten koper
- Asking price per m²
- € 7,099
- Status
- Sold
- VVE (Owners Association) contribution
- € 255.00 per month
Construction
- Type apartment
- Upstairs apartment (apartment)
- Building type
- Resale property
- Year of construction
- 1989
- Type of roof
- Flat roof
Surface areas and volume
- Areas
- Living area
- 81 m²
- Exterior space attached to the building
- 6 m²
- External storage space
- 5 m²
- Volume in cubic meters
- 203 m³
Layout
- Number of rooms
- 3 rooms (2 bedrooms)
- Number of bath rooms
- 1 bathroom
- Bathroom facilities
- Shower, bath, and toilet
- Number of stories
- 1 story
- Facilities
- Elevator
- Located at
- 4th floor
Energy
- Energy label
- B
- Heating
- CH boiler
- Hot water
- CH boiler
Cadastral data
- AMSTERDAM A 7351
- Cadastral map
- Ownership situation
- Long-term lease
- Fees
- Bought off for eternity
Exterior space
- Location
- In residential district and unobstructed view
- Balcony/roof terrace
- Balcony present
Storage space
- Shed / storage
- Built-in
Parking
- Type of parking facilities
- Public parking
VVE (Owners Association) checklist
- Registration with KvK
- Yes
- Annual meeting
- Yes
- Periodic contribution
- Yes (€ 255.00 per month)
- Reserve fund present
- Yes
- Maintenance plan
- Yes
- Building insurance
- Yes
Photos 28
© 2001-2025 funda



























